Zweifamilienhaus
Lindlestraße 6, 89564 Nattheim
322.000 €










Lindlestraße 6, 89564 Nattheim
Premium-Feature
7 Tage kostenlos TestenLeichte Feuchtigkeitsschäden im Kellerbereich. Sanierungsbedarf an der Außenfassade.
Premium-Feature
7 Tage kostenlos TestenGrundschuld zugunsten der Sparkasse München. Hypothek über 150.000 €.
Premium-Feature
7 Tage kostenlos TestenPremium-Feature
7 Tage kostenlos TestenPremium-Feature
7 Tage kostenlos TestenDas Gebäude befindet sich in einem guten Zustand. Die Fassade wurde vor kurzem renoviert und zeigt keine größeren Mängel. Das Dach ist intakt und wurde 2018 erneuert.
Die Innenräume sind gepflegt und modernisiert. Böden in gutem Zustand, Elektrik entspricht aktuellen Standards. Küche und Badezimmer wurden vor 5 Jahren erneuert.
Die Innenräume sind gepflegt und modernisiert. Böden in gutem Zustand, Elektrik entspricht aktuellen Standards. Küche und Badezimmer wurden vor 5 Jahren erneuert.
Premium-Feature
7 Tage kostenlos TestenMassivbauweise aus dem Jahr 1985. Ziegeldach mit Betondachsteinen. Keller vorhanden und trocken. Fundament in gutem Zustand ohne erkennbare Setzungsrisse.
Regelmäßige Wartung und Pflege erkennbar. Heizungsanlage wurde 2020 gewartet. Fassade in gutem Zustand, letzte Renovierung 2019. Dachrinnen und Fallrohre intakt.
Energetische Sanierung 2018 durchgeführt. Neue Fenster mit Dreifachverglasung installiert. Dämmung der Außenwände nach EnEV-Standard erneuert.
Keine bekannten Baulasten eingetragen. Grundbuch zeigt keine Belastungen bezüglich Baubeschränkungen oder Durchfahrtsrechte.
Premium-Feature
7 Tage kostenlos TestenSatteldach (Pfettendach), Betondachziegel eingedeckt
Gas-Zentralheizung (Baujahr 2011; mit Solarkollektoren für Heizungsunterstützung auf dem Dach)
Warmwasserspeicher 400 Liter
Heizungsleitungen und Heizkörper vermutlich Anfang 1990er Jahre
Elektroinstallation für EG (1993 erneuert) und DG (1985/80er Jahre)
Fenster: überwiegend Kunststoff (1993–2020), teilweise Holzfenster, mit Außenrollläden, Dachflächenfenster, Fenstersimse außen Alu, innen Kunststein
Böden: EG Laminat/Fliesen, DG Teppichboden/PVC, Bäder Fliesen, nicht ausgebauter Dachraum Holzdielen, Keller Beton/Estrich
Sanitärausstattung: Jeweils ein Bad pro Wohnung mit Wanne, Dusche, WC, Waschbecken
Das Objekt, bestehend aus Wohnhaus, Scheune, Garagen und Grundstück, wurde vor Ort besichtigt. Die Bewertung basiert auf der Besichtigung sowie auf Bauunterlagen, Kataster- und Grundbuchdaten, Auskünften der Behörden und Bildern der Innenräume.
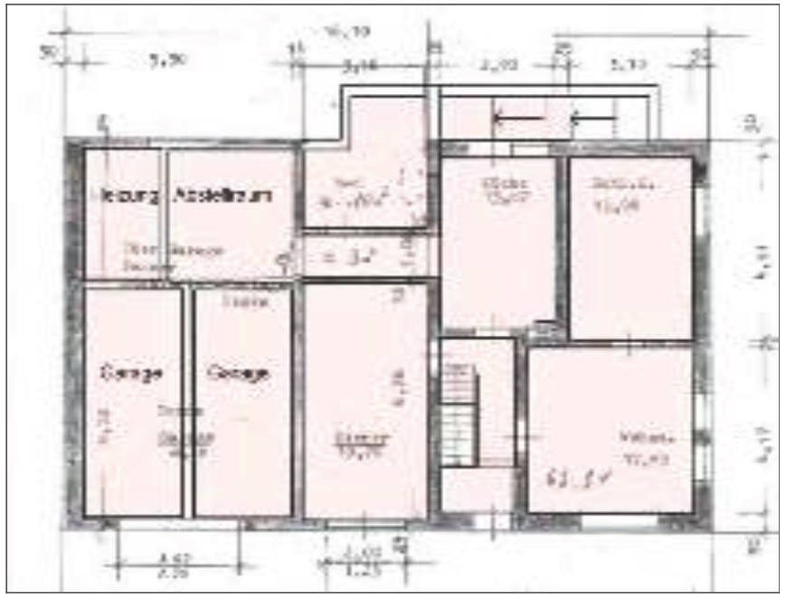
Das Zweifamilienhaus ist ein ein- bis eineinhalbgeschossiges, teils unterkellertes Gebäude mit teils ausgebautem Dachgeschoss sowie angebauter Scheune und integriertem Nebengebäude. Das Ursprungsbaujahr liegt vermutlich vor 1950. Das Gebäude ist in konventioneller Massivbauweise mit verputzten Außenwänden (EG und Giebel ca. 30 cm), Satteldach (Betondachziegel), Holzbalkendecken und Betonboden im Keller errichtet worden. Das Dachgeschoss wurde zu ca. 71 % als Wohnraum ausgebaut. Es gibt Gauben und eine Dachterrasse mit leichter Überdachung. Umfangreiche Umbauten, Erweiterungen und Modernisierungen wurden in den Jahren 1970, 1985 und 1993 vorgenommen. Die Bäder wurden vergrößert und ein Treppenabgang zum Garten ergänzt.
Im Erdgeschoss und Dachgeschoss befinden sich jeweils eigene Wohneinheiten mit zusammen 151,69 m² Wohnfläche (EG: 78,65 m², DG: 73,04 m²). Die Wohnungen teilen sich auf in jeweils drei Zimmer, Küche, Bad, Flure; die Dachgeschosswohnung verfügt zusätzlich über eine Dachterrasse.
Der bauliche Zustand wird insgesamt als altersgemäß bezeichnet, es besteht ein Instandhaltungsstau, u.a. bei Oberflächen, Ausstattung und Garten. Es liegen keine expliziten Hinweise auf Mängel der Bausubstanz vor, das Objekt entspricht nicht mehr aktuellen energetischen Standards.
Zur Immobilie gehören zwei schmale, in der ehemaligen Scheune untergebrachte Garagen (je ca. 13 m², Mauerwerk, Betonboden, Metallschwingtore) sowie ein einfacher gemauerter Gartenschuppen mit Flachdach (mangelhafter Zustand, ohne Restwertansatz).
Zum Wertermittlungs-Stichtag war die Wohnung im Erdgeschoss sowie eine Garage vermietet. Die Dachgeschosswohnung und die zweite Garage waren leerstehend und könnten selbst genutzt werden.
Satteldach (Pfettendach), Betondachziegel eingedeckt
Gas-Zentralheizung (Baujahr 2011; mit Solarkollektoren für Heizungsunterstützung auf dem Dach)
Warmwasserspeicher 400 Liter
Heizungsleitungen und Heizkörper vermutlich Anfang 1990er Jahre
Elektroinstallation für EG (1993 erneuert) und DG (1985/80er Jahre)
Fenster: überwiegend Kunststoff (1993–2020), teilweise Holzfenster, mit Außenrollläden, Dachflächenfenster, Fenstersimse außen Alu, innen Kunststein
Böden: EG Laminat/Fliesen, DG Teppichboden/PVC, Bäder Fliesen, nicht ausgebauter Dachraum Holzdielen, Keller Beton/Estrich
Sanitärausstattung: Jeweils ein Bad pro Wohnung mit Wanne, Dusche, WC, Waschbecken
Verkehrswert: 322.000,00 €
Premium-Feature
7 Tage kostenlos TestenAls Eigentümer können Sie uns zusätzliche Informationen zu Ihrer Immobilie zur Verfügung stellen, die potentiellen Interessenten helfen könnten. Dies kann sich positiv auf das Versteigerungsergebnis auswirken.
Kontaktieren Sie uns per E-Mail unter info@zvgscout.com mit dem Kennzeichen: 2 K 22-24-zweifamilienhaus-mit-garagen-1110926.
(Berechnet auf Basis des Verkehrswerts als Zuschlagswert)
(verzinster Betrag: 289.800 €)
Alle Angaben und Berechnungen von ZvgScout sind ohne Gewähr.
Detaillierte Kostenaufstellung & Rechner
Musterstraße 12, 12345 Musterstadt
Supermarkt
Schulweg 8, 12345 Musterstadt
Schule
Bahnhofsplatz 1, 12345 Musterstadt
ÖPNV
Alle oben gemachten Angaben ohne Gewähr. ZvgScout übernimmt keine Haftung für die Richtigkeit und Vollständigkeit der dargestellten Informationen.
Weitere Zweifamilienhaus in ähnlicher Preisklasse