Zweifamilienhaus
Batzenbergstraße 2, 79238 Ehrenkirchen
433.000 €




























Batzenbergstraße 2, 79238 Ehrenkirchen
Premium-Feature
7 Tage kostenlos TestenLeichte Feuchtigkeitsschäden im Kellerbereich. Sanierungsbedarf an der Außenfassade.
Premium-Feature
7 Tage kostenlos TestenGrundschuld zugunsten der Sparkasse München. Hypothek über 150.000 €.
Premium-Feature
7 Tage kostenlos TestenPremium-Feature
7 Tage kostenlos TestenPremium-Feature
7 Tage kostenlos TestenDas Gebäude befindet sich in einem guten Zustand. Die Fassade wurde vor kurzem renoviert und zeigt keine größeren Mängel. Das Dach ist intakt und wurde 2018 erneuert.
Die Innenräume sind gepflegt und modernisiert. Böden in gutem Zustand, Elektrik entspricht aktuellen Standards. Küche und Badezimmer wurden vor 5 Jahren erneuert.
Die Innenräume sind gepflegt und modernisiert. Böden in gutem Zustand, Elektrik entspricht aktuellen Standards. Küche und Badezimmer wurden vor 5 Jahren erneuert.
Premium-Feature
7 Tage kostenlos TestenMassivbauweise aus dem Jahr 1985. Ziegeldach mit Betondachsteinen. Keller vorhanden und trocken. Fundament in gutem Zustand ohne erkennbare Setzungsrisse.
Regelmäßige Wartung und Pflege erkennbar. Heizungsanlage wurde 2020 gewartet. Fassade in gutem Zustand, letzte Renovierung 2019. Dachrinnen und Fallrohre intakt.
Energetische Sanierung 2018 durchgeführt. Neue Fenster mit Dreifachverglasung installiert. Dämmung der Außenwände nach EnEV-Standard erneuert.
Keine bekannten Baulasten eingetragen. Grundbuch zeigt keine Belastungen bezüglich Baubeschränkungen oder Durchfahrtsrechte.
Premium-Feature
7 Tage kostenlos TestenDas Objekt wurde im Rahmen zweier Ortsbesichtigungen von außen und innen begutachtet. Die Bewertung erfolgte ergänzend auf Basis von Bauunterlagen, Fotodokumentation und behördlichen Auskünften, da die Umbaumaßnahmen teilweise bereits durchgeführt waren.
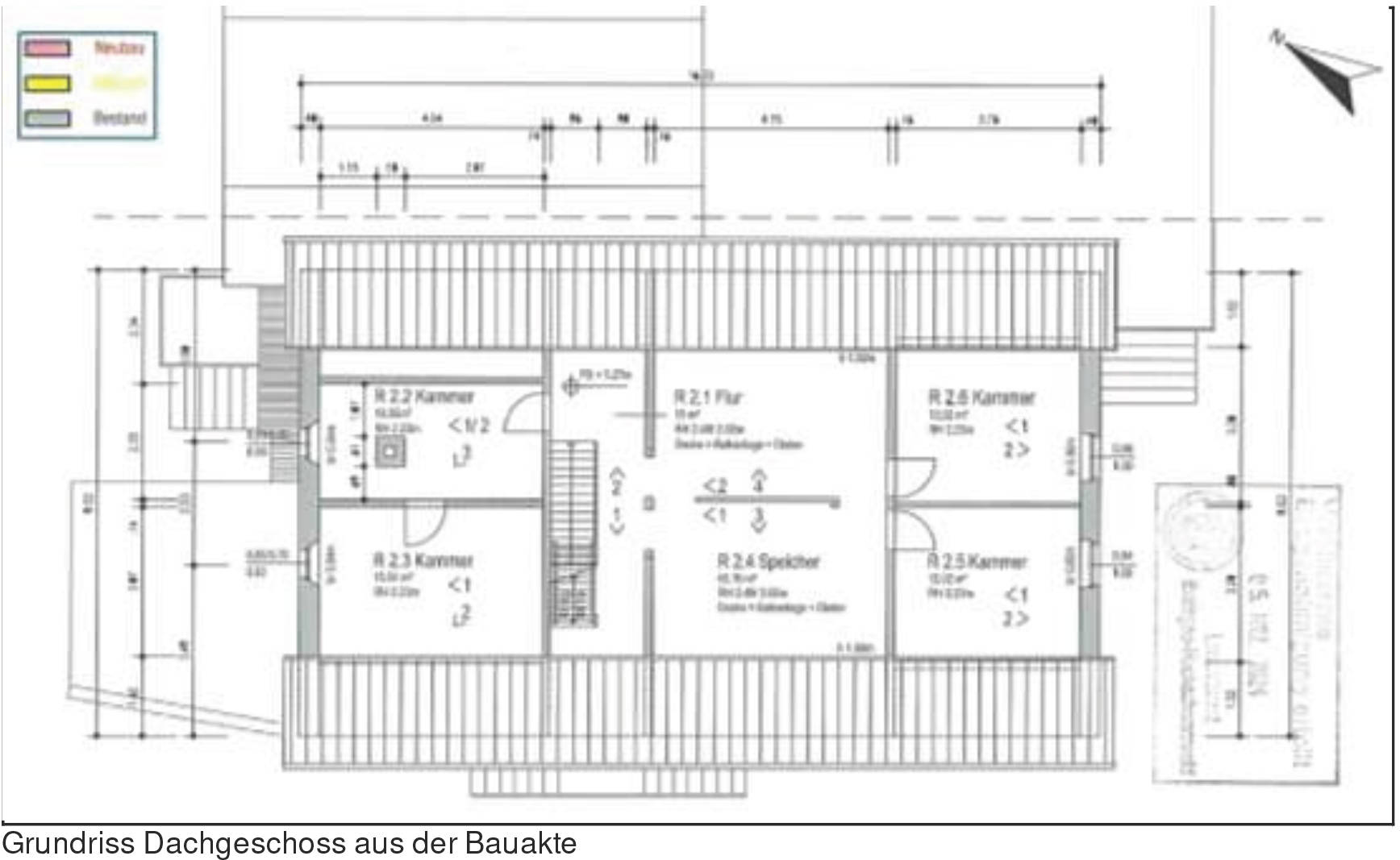
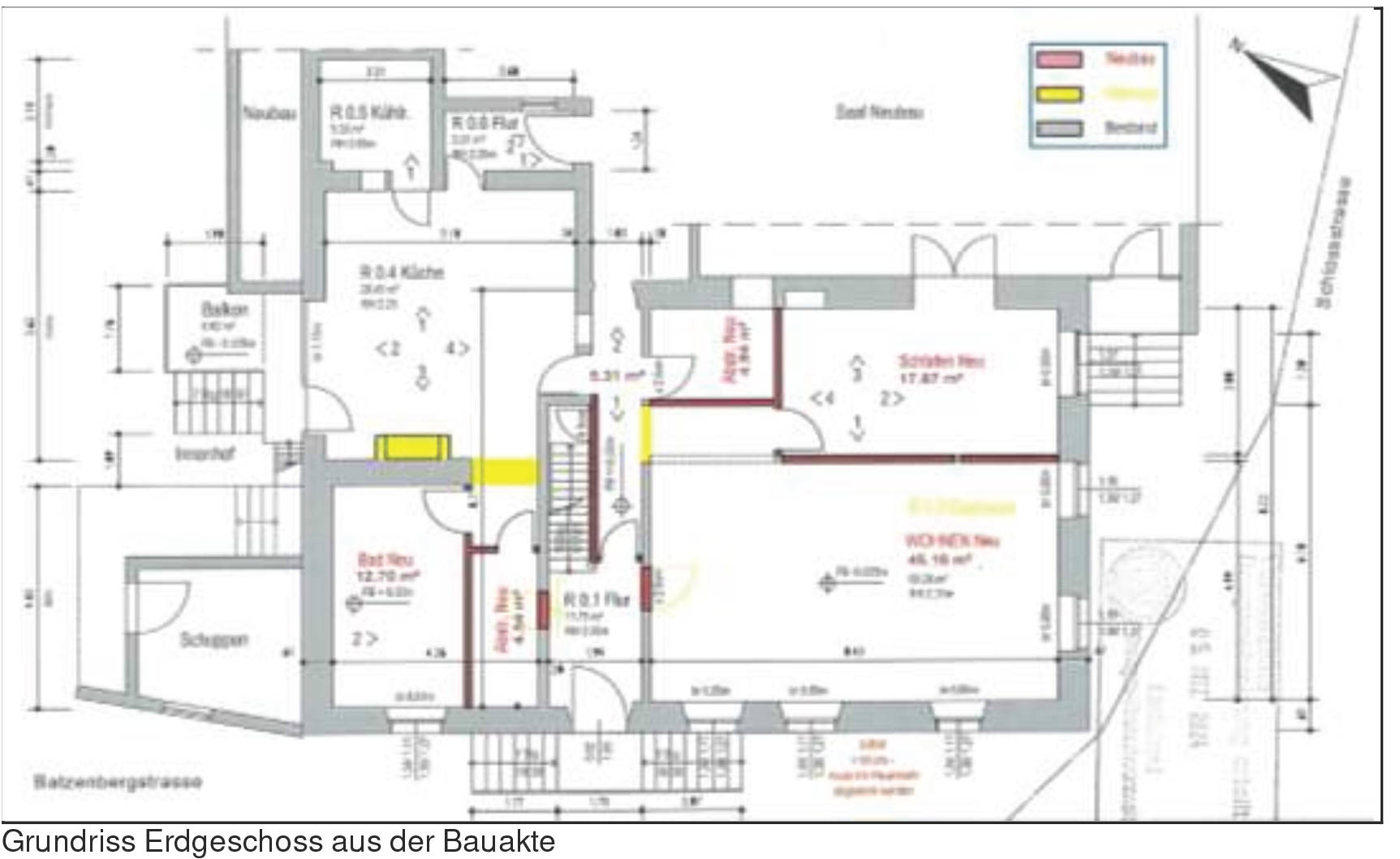
Das freistehende, unterkellerte Wohngebäude wurde ca. 1886 als Gaststätte ("Adler") errichtet. Es besteht aus zwei Vollgeschossen und einem unausgebauten Dachgeschoss. Die genehmigte Umplanung sieht die Umnutzung zum Zweifamilienhaus mit einer Wohnung im Erdgeschoss (128 m²) und einer im Obergeschoss (134 m²) vor; ein Dachgeschossausbau ist nicht vorgesehen. Die aktuelle Wohnfläche beträgt somit ca. 262 m², das Gebäude ist denkmalgeschützt.
Vorausgegangene Sanierungen oder Modernisierungen fanden nicht statt. Der Innenausbau inklusive Elektro, Heizung, Sanitäranlagen, Böden und Innentüren wurde zum Zeitpunkt der Gutachtenerstellung noch nicht abgeschlossen. Das Gebäude ist teilweise entkernt und stand zum Stichtag leer. Es besteht ein hoher Modernisierungsbedarf, insbesondere aufgrund von Denkmalschutzauflagen.
Die Grundrisse sind klassisch rechteckig, mit großzügigen Raumzuschnitten. Das Gebäude ist vollständig unterkellert und bietet dort funktionale, einfache Räume. Die Belichtung ist durch die zahlreichen Fenster in allen Hauptgeschossen gut.
Das Satteldach ist original-Holzkonstruktion mit Falzziegeldeckung. Umfassende Dachsanierungen waren nicht dokumentiert. Die Fassade ist verputzt. Die Außendrainage sowie Fenster stehen unter denkmalgerechter Erhaltungspflicht.
Zum Wertermittlungs-Stichtag war das Gebäude leerstehend und aufgrund des entkernten Zustands unbewohnbar. Die Nutzung als Zweifamilienhaus ist nach Fertigstellung geplant.
Lfd. Nr. 1, Flurstück 64/1 - Verkehrswert: 429.000,00 €
Lfd. Nr. 2, Flurstück 62/1, inkludiert in Flurstück 64/1 - Verkehrswert: 4.000,00 €
Premium-Feature
7 Tage kostenlos TestenAls Eigentümer können Sie uns zusätzliche Informationen zu Ihrer Immobilie zur Verfügung stellen, die potentiellen Interessenten helfen könnten. Dies kann sich positiv auf das Versteigerungsergebnis auswirken.
Kontaktieren Sie uns per E-Mail unter info@zvgscout.com mit dem Kennzeichen: 791 K 88-24-zweifamilienhaus-1126682.
(Berechnet auf Basis des Verkehrswerts als Zuschlagswert)
(verzinster Betrag: 389.700 €)
Alle Angaben und Berechnungen von ZvgScout sind ohne Gewähr.
Detaillierte Kostenaufstellung & Rechner
Musterstraße 12, 12345 Musterstadt
Supermarkt
Schulweg 8, 12345 Musterstadt
Schule
Bahnhofsplatz 1, 12345 Musterstadt
ÖPNV
Alle oben gemachten Angaben ohne Gewähr. ZvgScout übernimmt keine Haftung für die Richtigkeit und Vollständigkeit der dargestellten Informationen.