Zweizimmerwohnung
Merzhauser Straße 145A, 79100 Freiburg-Wiehre
118.000 €











Merzhauser Straße 145A, 79100 Freiburg-Wiehre
Premium-Feature
7 Tage kostenlos TestenLeichte Feuchtigkeitsschäden im Kellerbereich. Sanierungsbedarf an der Außenfassade.
Premium-Feature
7 Tage kostenlos TestenGrundschuld zugunsten der Sparkasse München. Hypothek über 150.000 €.
Premium-Feature
7 Tage kostenlos TestenPremium-Feature
7 Tage kostenlos TestenPremium-Feature
7 Tage kostenlos TestenDas Gebäude befindet sich in einem guten Zustand. Die Fassade wurde vor kurzem renoviert und zeigt keine größeren Mängel. Das Dach ist intakt und wurde 2018 erneuert.
Die Innenräume sind gepflegt und modernisiert. Böden in gutem Zustand, Elektrik entspricht aktuellen Standards. Küche und Badezimmer wurden vor 5 Jahren erneuert.
Die Innenräume sind gepflegt und modernisiert. Böden in gutem Zustand, Elektrik entspricht aktuellen Standards. Küche und Badezimmer wurden vor 5 Jahren erneuert.
Premium-Feature
7 Tage kostenlos TestenMassivbauweise aus dem Jahr 1985. Ziegeldach mit Betondachsteinen. Keller vorhanden und trocken. Fundament in gutem Zustand ohne erkennbare Setzungsrisse.
Regelmäßige Wartung und Pflege erkennbar. Heizungsanlage wurde 2020 gewartet. Fassade in gutem Zustand, letzte Renovierung 2019. Dachrinnen und Fallrohre intakt.
Energetische Sanierung 2018 durchgeführt. Neue Fenster mit Dreifachverglasung installiert. Dämmung der Außenwände nach EnEV-Standard erneuert.
Keine bekannten Baulasten eingetragen. Grundbuch zeigt keine Belastungen bezüglich Baubeschränkungen oder Durchfahrtsrechte.
Premium-Feature
7 Tage kostenlos TestenDas Objekt wurde am 11.03.2025 ausschließlich von außen besichtigt. Eine Innenbegehung der Wohnung und der Tiefgarage war nicht möglich; die Bewertung basiert daher ergänzend auf Bauunterlagen, Planzeichnungen und Informationen der Hausverwaltung.
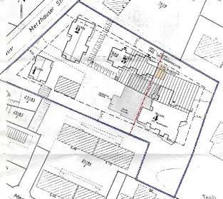
Die Wohnung umfasst etwa 35,51 m² und befindet sich im Erdgeschoss links eines viergeschossigen Mehrfamilienhauses. Sie besteht laut Planunterlagen aus zwei Zimmern, Küche, Bad und einem Balkon mit südwestlicher Ausrichtung. Dem Sondereigentum sind ein Kellerraum sowie das Sondernutzungsrecht an einem Kfz-Einstellplatz in der Tiefgarage zugeordnet.
Die Belichtung der Wohnung erfolgt nach Nordosten und Südwesten. Der Grundriss ist funktional aufgebaut mit Zugang über einen Windfang, die Küche sowie das Schlafzimmer sind vom Wohnzimmer aus erreichbar. Aufgrund fehlender Innenbesichtigung liegen keine gesicherten Angaben zum Zustand der Innenausstattung oder zu möglichen Mängeln oder Modernisierungen vor. Die Wohnung macht von außen einen baujahrtypischen Eindruck, der Balkon ist verwachsen. Die Wohnung befindet sich in einem Gebäude mit insgesamt 12 Einheiten pro Hauseingang, 60 Wohneinheiten gesamt in der Anlage. Die Anschriften lauten Merzhauser Straße 145, 145 a, 147, 147 a, 149, 151.
Das Gebäude wurde ca. 1978 errichtet, ist vollständig unterkellert und verfügt über keine direkte Anbindung zur Tiefgarage. In den vergangenen Jahren wurden einzelne Modernisierungen am Gebäude und der Heizungsanlage vorgenommen (Fassade 2006, Heizung 2009, Kellerdeckendämmung 2015, Haustür erneuert, Fenster teilerneuert). Der Bauzustand ist insgesamt dem Alter entsprechend, einzelne witterungsbedingte Verunreinigungen sind vorhanden. Die Restnutzungsdauer des Gebäudes beträgt rechnerisch ca. 34 Jahre. Geplant ist eine umfassende Sanierung der Tiefgarage inkl. Rückbau und Reduzierung der Stellplätze; hierfür können voraussichtlich Kosten über die Erhaltungsrücklage gedeckt werden. Der Gebäudezugang erfolgt über einen zentralen Erschließungsweg, die Außenanlagen sind teils begrünt.
Zum Wertermittlungs-Stichtag war die Wohnung vermutlich eigengenutzt; konkrete Mietverhältnisse waren nicht bekannt.
Verkehrswert: 118.000,00 €
Premium-Feature
7 Tage kostenlos TestenAls Eigentümer können Sie uns zusätzliche Informationen zu Ihrer Immobilie zur Verfügung stellen, die potentiellen Interessenten helfen könnten. Dies kann sich positiv auf das Versteigerungsergebnis auswirken.
Kontaktieren Sie uns per E-Mail unter info@zvgscout.com mit dem Kennzeichen: 793 K 69-24-zwei-zimmer-wohnung-1100113.
(Berechnet auf Basis des Verkehrswerts als Zuschlagswert)
(verzinster Betrag: 106.200 €)
Alle Angaben und Berechnungen von ZvgScout sind ohne Gewähr.
Detaillierte Kostenaufstellung & Rechner
Musterstraße 12, 12345 Musterstadt
Supermarkt
Schulweg 8, 12345 Musterstadt
Schule
Bahnhofsplatz 1, 12345 Musterstadt
ÖPNV
Alle oben gemachten Angaben ohne Gewähr. ZvgScout übernimmt keine Haftung für die Richtigkeit und Vollständigkeit der dargestellten Informationen.
Weitere Zweizimmerwohnung in ähnlicher Preisklasse