Dreizimmerwohnung
Buchtalstraße 101, 72461 Albstadt-Tailfingen
61.500 €





















Buchtalstraße 101, 72461 Albstadt-Tailfingen
Premium-Feature
7 Tage kostenlos TestenLeichte Feuchtigkeitsschäden im Kellerbereich. Sanierungsbedarf an der Außenfassade.
Premium-Feature
7 Tage kostenlos TestenGrundschuld zugunsten der Sparkasse München. Hypothek über 150.000 €.
Premium-Feature
7 Tage kostenlos TestenPremium-Feature
7 Tage kostenlos TestenPremium-Feature
7 Tage kostenlos TestenDas Gebäude befindet sich in einem guten Zustand. Die Fassade wurde vor kurzem renoviert und zeigt keine größeren Mängel. Das Dach ist intakt und wurde 2018 erneuert.
Die Innenräume sind gepflegt und modernisiert. Böden in gutem Zustand, Elektrik entspricht aktuellen Standards. Küche und Badezimmer wurden vor 5 Jahren erneuert.
Die Innenräume sind gepflegt und modernisiert. Böden in gutem Zustand, Elektrik entspricht aktuellen Standards. Küche und Badezimmer wurden vor 5 Jahren erneuert.
Premium-Feature
7 Tage kostenlos TestenMassivbauweise aus dem Jahr 1985. Ziegeldach mit Betondachsteinen. Keller vorhanden und trocken. Fundament in gutem Zustand ohne erkennbare Setzungsrisse.
Regelmäßige Wartung und Pflege erkennbar. Heizungsanlage wurde 2020 gewartet. Fassade in gutem Zustand, letzte Renovierung 2019. Dachrinnen und Fallrohre intakt.
Energetische Sanierung 2018 durchgeführt. Neue Fenster mit Dreifachverglasung installiert. Dämmung der Außenwände nach EnEV-Standard erneuert.
Keine bekannten Baulasten eingetragen. Grundbuch zeigt keine Belastungen bezüglich Baubeschränkungen oder Durchfahrtsrechte.
Premium-Feature
7 Tage kostenlos TestenFlachdach, Dachkonstruktion aus Beton, Dachdeckung mit Bitumendachbahnen
Öl-Zentralheizung (2015), Wärmeverteilung über konventionelle Heizkörper
Warmwasserversorgung zentral über Heizung
Elektroinstallation einfach, technisch überaltert, Erneuerung empfohlen
Fenster aus Kunststoff, Isolierverglasung, Baujahr 1995
Das Objekt wurde am Wertermittlungsstichtag (17.03.2025) besichtigt. Es konnten alle Räume des Sondereigentums und Teile des Gemeinschaftseigentums in Augenschein genommen werden. Nicht einsehbar waren teilweise Dachflächen und verdeckte Bauteile.
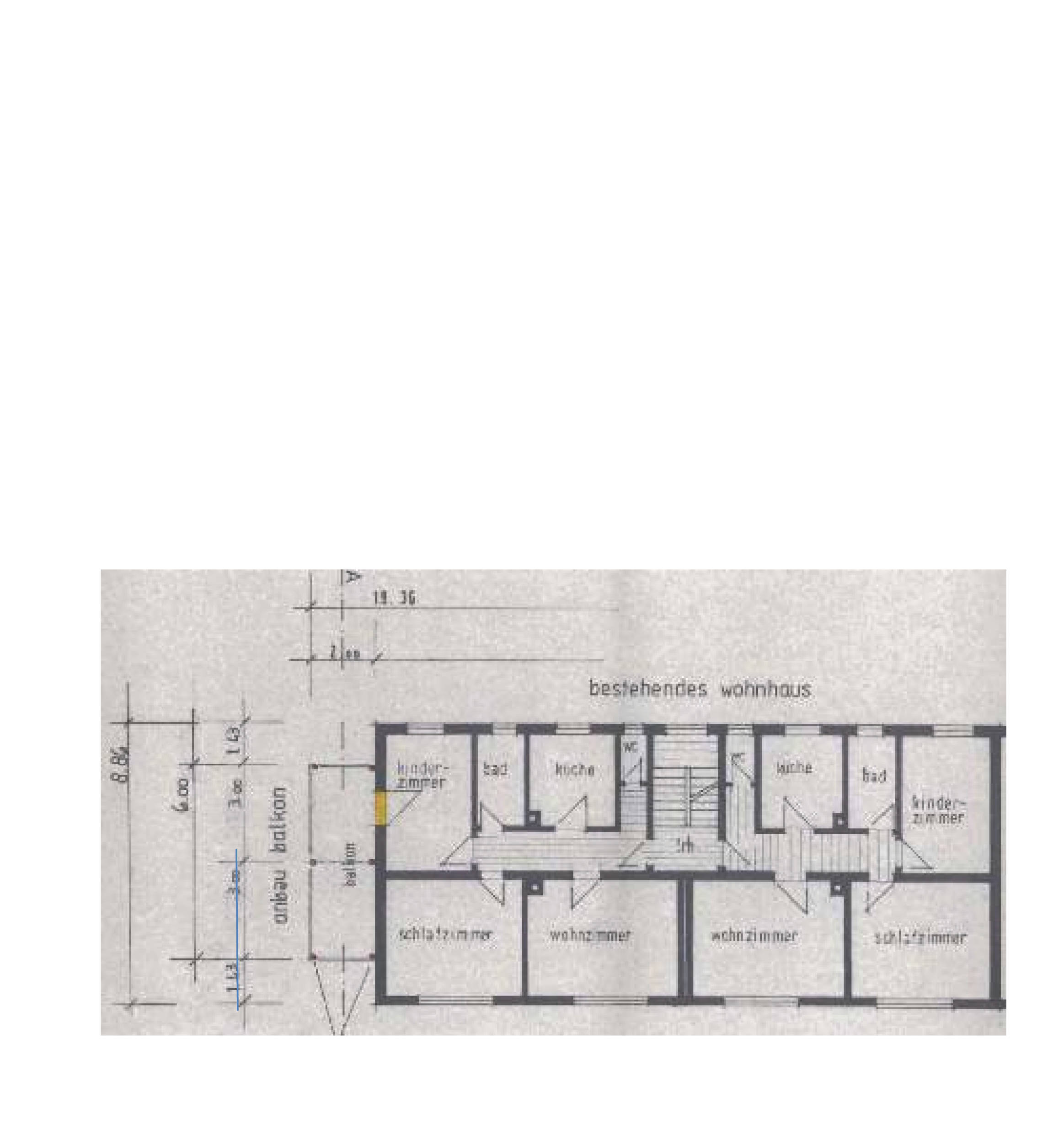
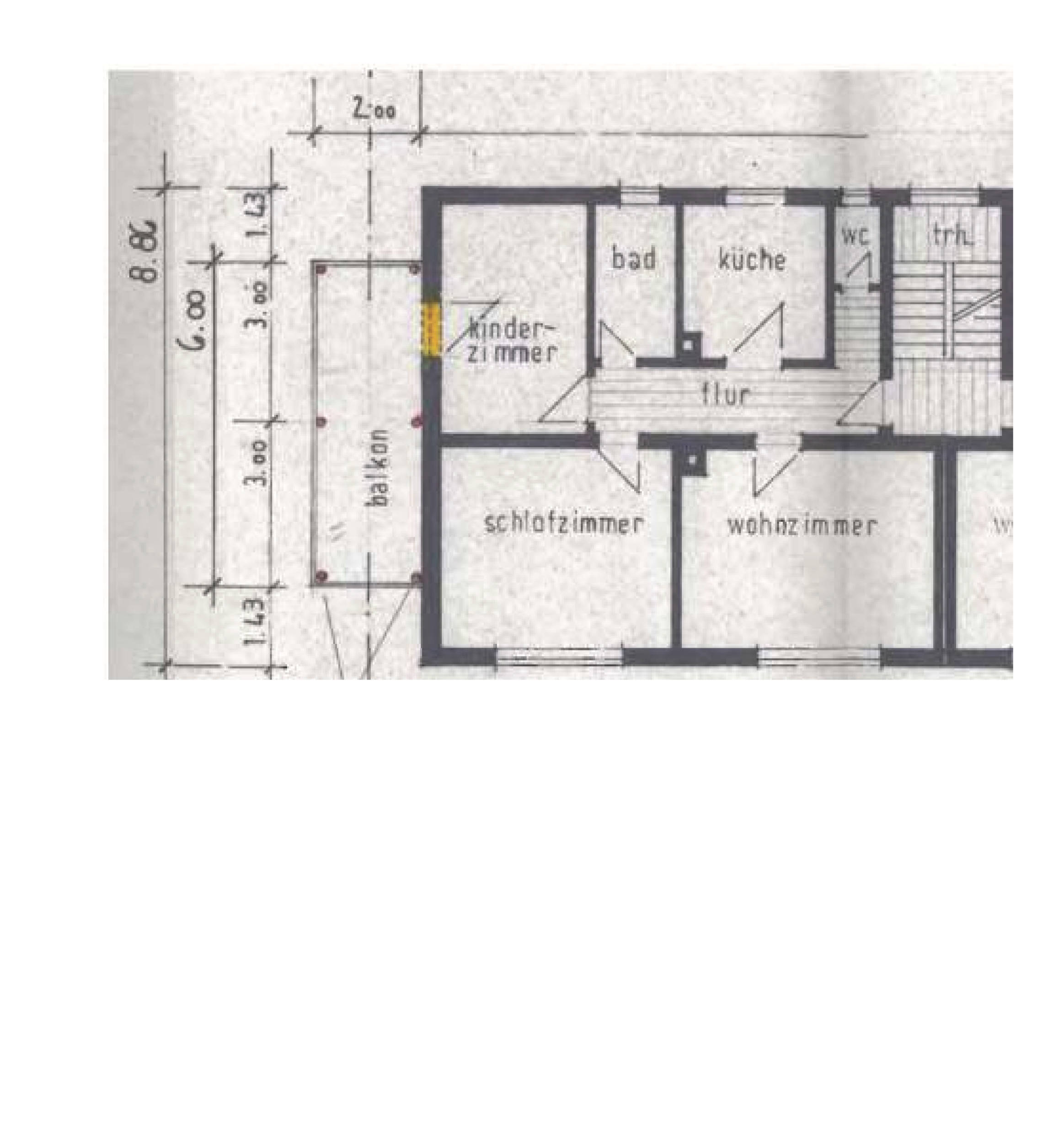
Die Wohnung liegt im 2. Obergeschoss links eines unterkellerten, dreigeschossigen Mehrfamilienhauses mit Flachdach. Die Wohnfläche beträgt ca. 71 m² und verteilt sich auf Wohnzimmer, Schlafzimmer, Kinderzimmer, Küche, Bad, WC, Flur sowie einen nachträglich angebauten Balkon (Loggia). Ein Abstellraum im Erdgeschoss gehört zum Sondereigentum. Die Grundrissgestaltung ist funktional, Zimmer und Loggia sind zu einer Seite (Südwesten) orientiert, was für gute Belichtung und Besonnung sorgt.
Die Wohnung befindet sich überwiegend im Rohbauzustand, eine Komplettsanierung ist erforderlich. Die Fenster (Kunststoff, Isolierglas) stammen aus 1995. Sanitäre Installationen sowie Boden-, Wand- und Deckenbeläge müssen komplett erneuert werden. Es bestehen Feuchtigkeitsschäden und Schimmelbefall.
Das Gebäude wurde 1965 errichtet und 1995 (Fenster, Haustüre, Balkone) sowie 2015 (Heizung) modernisiert. Die Gesamtwohnfläche beträgt ca. 408 m². Im Gemeinschaftseigentum besteht erheblicher Renovierungsbedarf und Unterhaltungsstau, die Ausstattung ist einfach und überaltert. Die allgemeinen technischen Anlagen (Heizung, Elektro usw.) befinden sich ebenfalls in einfachem, z. T. modernisiertem Zustand.
Auf dem Grundstück befindet sich eine Reihengaragenanlage aus fünf Fertiggaragen (Baujahr 1976, Betonboden, Metall-Schwingtore, tlw. elektrischer Antrieb). Die bewertete Garage Nr. 11 ist Bestandteil des Sondereigentums.
Zum Wertermittlungs-Stichtag war das Sondereigentum leerstehend. Die übrigen Wohnungen sind überwiegend vermietet.
Flachdach, Dachkonstruktion aus Beton, Dachdeckung mit Bitumendachbahnen
Öl-Zentralheizung (2015), Wärmeverteilung über konventionelle Heizkörper
Warmwasserversorgung zentral über Heizung
Elektroinstallation einfach, technisch überaltert, Erneuerung empfohlen
Fenster aus Kunststoff, Isolierverglasung, Baujahr 1995
Lfd. Nr. 1: 3-Zimmer-Wohnung - Verkehrswert: 50.000,00 €
Lfd. Nr. 2: Garage - Verkehrswert: 11.500,00 €
Premium-Feature
7 Tage kostenlos TestenAls Eigentümer können Sie uns zusätzliche Informationen zu Ihrer Immobilie zur Verfügung stellen, die potentiellen Interessenten helfen könnten. Dies kann sich positiv auf das Versteigerungsergebnis auswirken.
Kontaktieren Sie uns per E-Mail unter info@zvgscout.com mit dem Kennzeichen: 9 K 19-24-3-zimmer-wohnung-1126805.
(Berechnet auf Basis des Verkehrswerts als Zuschlagswert)
(verzinster Betrag: 55.350 €)
Alle Angaben und Berechnungen von ZvgScout sind ohne Gewähr.
Detaillierte Kostenaufstellung & Rechner
Musterstraße 12, 12345 Musterstadt
Supermarkt
Schulweg 8, 12345 Musterstadt
Schule
Bahnhofsplatz 1, 12345 Musterstadt
ÖPNV
Alle oben gemachten Angaben ohne Gewähr. ZvgScout übernimmt keine Haftung für die Richtigkeit und Vollständigkeit der dargestellten Informationen.