Dreizimmerwohnung
Tailfinger Straße 1, 72459 Albstadt-Pfeffingen
124.000 €





















Tailfinger Straße 1, 72459 Albstadt-Pfeffingen
Premium-Feature
7 Tage kostenlos TestenLeichte Feuchtigkeitsschäden im Kellerbereich. Sanierungsbedarf an der Außenfassade.
Premium-Feature
7 Tage kostenlos TestenGrundschuld zugunsten der Sparkasse München. Hypothek über 150.000 €.
Premium-Feature
7 Tage kostenlos TestenPremium-Feature
7 Tage kostenlos TestenPremium-Feature
7 Tage kostenlos TestenDas Gebäude befindet sich in einem guten Zustand. Die Fassade wurde vor kurzem renoviert und zeigt keine größeren Mängel. Das Dach ist intakt und wurde 2018 erneuert.
Die Innenräume sind gepflegt und modernisiert. Böden in gutem Zustand, Elektrik entspricht aktuellen Standards. Küche und Badezimmer wurden vor 5 Jahren erneuert.
Die Innenräume sind gepflegt und modernisiert. Böden in gutem Zustand, Elektrik entspricht aktuellen Standards. Küche und Badezimmer wurden vor 5 Jahren erneuert.
Premium-Feature
7 Tage kostenlos TestenMassivbauweise aus dem Jahr 1985. Ziegeldach mit Betondachsteinen. Keller vorhanden und trocken. Fundament in gutem Zustand ohne erkennbare Setzungsrisse.
Regelmäßige Wartung und Pflege erkennbar. Heizungsanlage wurde 2020 gewartet. Fassade in gutem Zustand, letzte Renovierung 2019. Dachrinnen und Fallrohre intakt.
Energetische Sanierung 2018 durchgeführt. Neue Fenster mit Dreifachverglasung installiert. Dämmung der Außenwände nach EnEV-Standard erneuert.
Keine bekannten Baulasten eingetragen. Grundbuch zeigt keine Belastungen bezüglich Baubeschränkungen oder Durchfahrtsrechte.
Premium-Feature
7 Tage kostenlos TestenSatteldach, Dachdeckung aus Betondachsteinen
Ölzentralheizung (2018 erneuert) mit zentraler Warmwasserbereitung
Heizkörper (Wärmeübertragung)
Elektrische Anlage im Standard des Baujahrs
Vinylbeläge in Wohnräumen, Fliesen in Sanitärräumen
Holzfenster mit Isolierverglasung (teilweise älteren und teilweise neuerem Datums), Kunststoffrollläden
Sanitärausstattung: Bad mit Wanne, Dusche, Waschbecken (Wände raumhoch gefliest), separates WC (bis 1,60 m gefliest)
Das Objekt wurde im Rahmen eines Ortstermins am 28.03.2025 in Augenschein genommen. Die Feststellungen erfolgten augenscheinlich sowie ergänzend durch Vorlage der relevanten Unterlagen wie Aufteilungsplan, Grundbuchauszug und Wohnflächenberechnung.
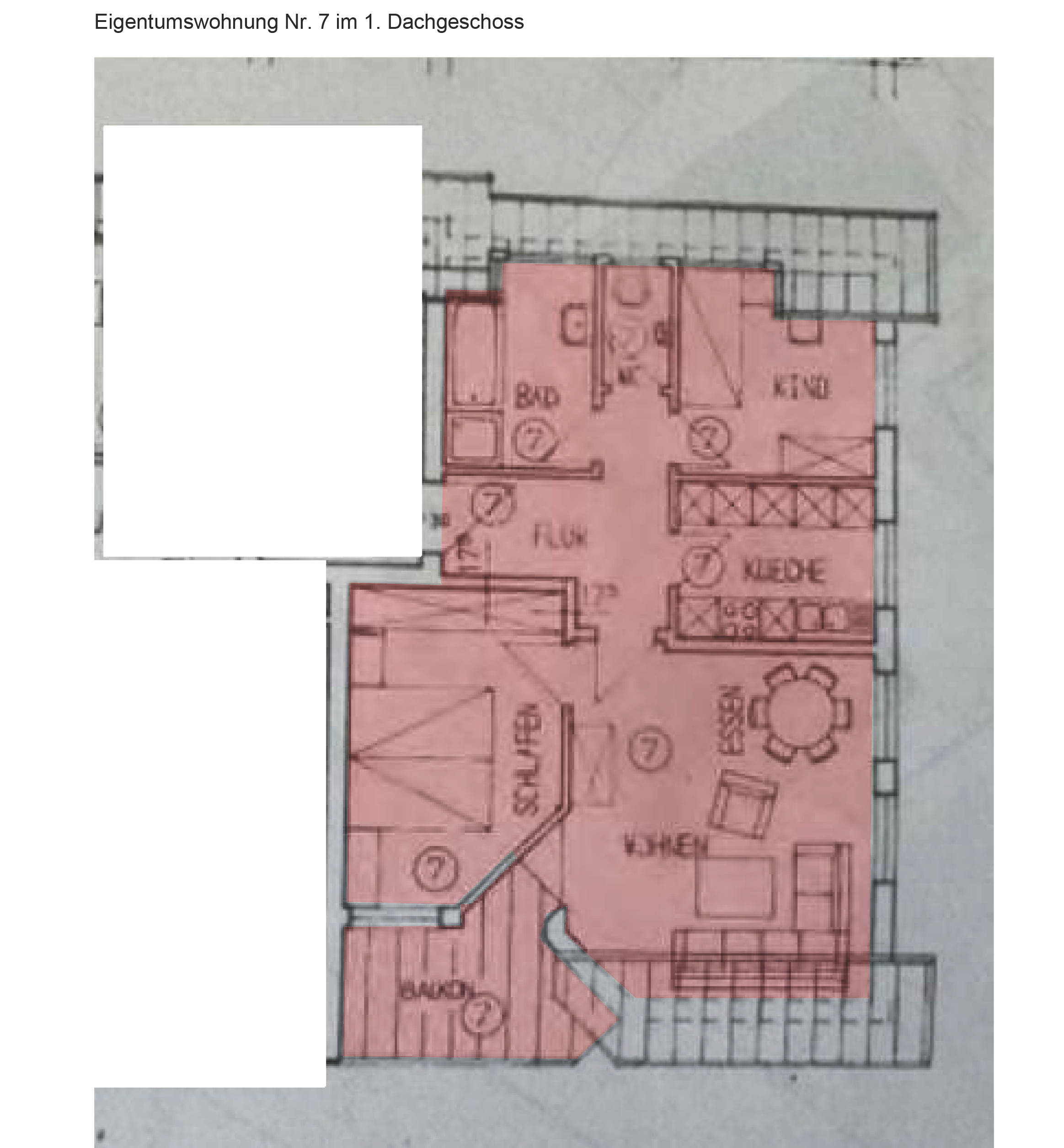
Die Wohnung Nr. 7 befindet sich im 1. Dachgeschoss eines 1994 fertiggestellten Mehrfamilienhauses und umfasst ca. 61 m² Wohnfläche. Sie besteht aus einem Flur, einem Bad mit Badewanne und Dusche, separatem WC, Küche, Kinderzimmer, Wohn- und Schlafzimmer sowie einem Balkon mit ca. 85 cm hohem Geländer. Zugang zum nicht ausgebauten Dachbodenraum (Nutzfläche ca. 35 m² laut Teilungserklärung, nicht als Wohnfläche anrechenbar) besteht über eine Einschubtreppe im Flur. Ein Abstellraum im Keller (Nr. 7.1) ist zugeordnet.
Die Wohnung ist nach Südwesten ausgerichtet und gut belichtet. Der allgemeine Zustand ist gut, ohne wesentlichen Instandhaltungsrückstand; die Ausstattung entspricht dem Baujahr mit zeitgemäßen Oberflächen.
Das Gebäude ist in Massivbauweise erstellt, verfügt über einen zweckmäßigen Grundriss. Ein Aufzug ist nicht vorhanden. Die Wohnanlage hat insgesamt einen durchschnittlichen Instandhaltungszustand. Das Dachgeschoss mit Dachschrägen beeinträchtigt die Funktionalität etwas.
Zum Wertermittlungs-Stichtag war die Wohnung eigengenutzt.
Satteldach, Dachdeckung aus Betondachsteinen
Ölzentralheizung (2018 erneuert) mit zentraler Warmwasserbereitung
Heizkörper (Wärmeübertragung)
Elektrische Anlage im Standard des Baujahrs
Vinylbeläge in Wohnräumen, Fliesen in Sanitärräumen
Holzfenster mit Isolierverglasung (teilweise älteren und teilweise neuerem Datums), Kunststoffrollläden
Sanitärausstattung: Bad mit Wanne, Dusche, Waschbecken (Wände raumhoch gefliest), separates WC (bis 1,60 m gefliest)
Verkehrswert: 124.000,00 €
Premium-Feature
7 Tage kostenlos TestenAls Eigentümer können Sie uns zusätzliche Informationen zu Ihrer Immobilie zur Verfügung stellen, die potentiellen Interessenten helfen könnten. Dies kann sich positiv auf das Versteigerungsergebnis auswirken.
Kontaktieren Sie uns per E-Mail unter info@zvgscout.com mit dem Kennzeichen: 9 K 29-24-3-zimmer-wohnung-1126457.
(Berechnet auf Basis des Verkehrswerts als Zuschlagswert)
(verzinster Betrag: 111.600 €)
Alle Angaben und Berechnungen von ZvgScout sind ohne Gewähr.
Detaillierte Kostenaufstellung & Rechner
Musterstraße 12, 12345 Musterstadt
Supermarkt
Schulweg 8, 12345 Musterstadt
Schule
Bahnhofsplatz 1, 12345 Musterstadt
ÖPNV
Alle oben gemachten Angaben ohne Gewähr. ZvgScout übernimmt keine Haftung für die Richtigkeit und Vollständigkeit der dargestellten Informationen.