Einfamilienhaus, Doppelhaushälfte
Greifenklaustraße 12, 96182 Reckendorf
siehe Beschreibung



















Greifenklaustraße 12, 96182 Reckendorf
Premium-Feature
7 Tage kostenlos TestenLeichte Feuchtigkeitsschäden im Kellerbereich. Sanierungsbedarf an der Außenfassade.
Premium-Feature
7 Tage kostenlos TestenGrundschuld zugunsten der Sparkasse München. Hypothek über 150.000 €.
Premium-Feature
7 Tage kostenlos TestenPremium-Feature
7 Tage kostenlos TestenPremium-Feature
7 Tage kostenlos TestenDas Gebäude befindet sich in einem guten Zustand. Die Fassade wurde vor kurzem renoviert und zeigt keine größeren Mängel. Das Dach ist intakt und wurde 2018 erneuert.
Die Innenräume sind gepflegt und modernisiert. Böden in gutem Zustand, Elektrik entspricht aktuellen Standards. Küche und Badezimmer wurden vor 5 Jahren erneuert.
Die Innenräume sind gepflegt und modernisiert. Böden in gutem Zustand, Elektrik entspricht aktuellen Standards. Küche und Badezimmer wurden vor 5 Jahren erneuert.
Premium-Feature
7 Tage kostenlos TestenMassivbauweise aus dem Jahr 1985. Ziegeldach mit Betondachsteinen. Keller vorhanden und trocken. Fundament in gutem Zustand ohne erkennbare Setzungsrisse.
Regelmäßige Wartung und Pflege erkennbar. Heizungsanlage wurde 2020 gewartet. Fassade in gutem Zustand, letzte Renovierung 2019. Dachrinnen und Fallrohre intakt.
Energetische Sanierung 2018 durchgeführt. Neue Fenster mit Dreifachverglasung installiert. Dämmung der Außenwände nach EnEV-Standard erneuert.
Keine bekannten Baulasten eingetragen. Grundbuch zeigt keine Belastungen bezüglich Baubeschränkungen oder Durchfahrtsrechte.
Premium-Feature
7 Tage kostenlos Testen
Lfd. Nr. 1
Objektbeschreibung/Lage (lt Angabe d. Sachverständigen):
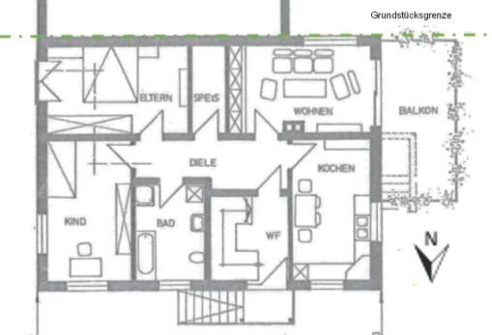
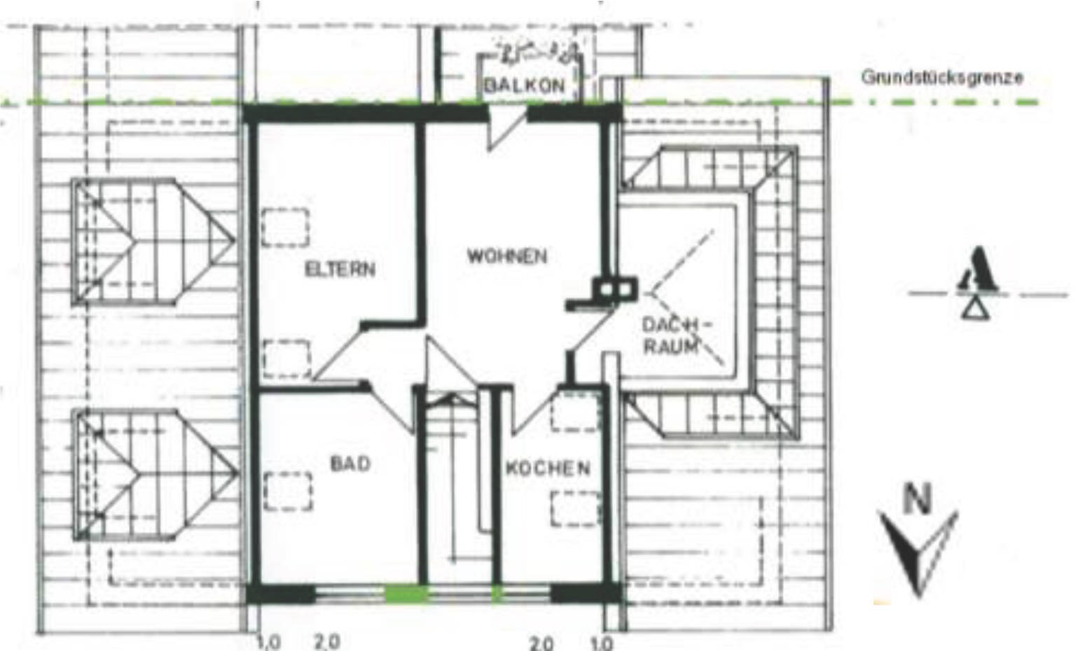
Trapezförmiges Grundstück bebaut mit Einfamilienwohnhaus als südseitige Doppelhaushälfte; Baujahr: 1963; Wohnfläche ca. 134 m²; Heizart: Ölzentralheizung, Kaminofen als Festbrennstoffofen im DG;
Abstellgebäude als Nebengebäude mit Carport; Baujahr 1968 (Carport unbekannt); Abstellfläche ca. 28 m²; vermutlich keine Baugenehmigung für Carportbau;
Wohnhaus und Nebengebäude in ordentlichem Zustand lt. Außenbesichtigung; Innenbesichtigung war nicht möglich;
Verkehrswert:
208.000,00 €
Lfd. Nr. 2
Objektbeschreibung/Lage (lt Angabe d. Sachverständigen):
Dreifamilienwohnanwesen Greifenklaustraße 10 (als nördliche Doppelhaushälfte auf FlurNr. 1287/12 der Gemarkung Reckendorf). Baujahr: nicht genau bekannt (vermutlich vor 1980), Anbau des DG-Balkons 1998, Anbau des EG-Balkons 2005, Errichtung von drei Dachgauben 2007, Ausbau des Dachgeschosses zwischen 2007 und 2011 und Ausbau des 2. Dachgeschosses (Spitzboden) 2011/2012.;
Verkehrswert:
370.000,00 €
Premium-Feature
7 Tage kostenlos TestenAls Eigentümer können Sie uns zusätzliche Informationen zu Ihrer Immobilie zur Verfügung stellen, die potentiellen Interessenten helfen könnten. Dies kann sich positiv auf das Versteigerungsergebnis auswirken.
Kontaktieren Sie uns per E-Mail unter info@zvgscout.com mit dem Kennzeichen: 0001K0117-2024-bamberg.

Musterstraße 12, 12345 Musterstadt
Supermarkt
Schulweg 8, 12345 Musterstadt
Schule
Bahnhofsplatz 1, 12345 Musterstadt
ÖPNV
Alle oben gemachten Angaben ohne Gewähr. ZvgScout übernimmt keine Haftung für die Richtigkeit und Vollständigkeit der dargestellten Informationen.