land-/ forstwirtschtl. Flächen
0000, 00000 Lohe
19.800 €








0000, 00000 Lohe
Premium-Feature
7 Tage kostenlos TestenLeichte Feuchtigkeitsschäden im Kellerbereich. Sanierungsbedarf an der Außenfassade.
Premium-Feature
7 Tage kostenlos TestenGrundschuld zugunsten der Sparkasse München. Hypothek über 150.000 €.
Premium-Feature
7 Tage kostenlos TestenPremium-Feature
7 Tage kostenlos TestenPremium-Feature
7 Tage kostenlos TestenDas Gebäude befindet sich in einem guten Zustand. Die Fassade wurde vor kurzem renoviert und zeigt keine größeren Mängel. Das Dach ist intakt und wurde 2018 erneuert.
Die Innenräume sind gepflegt und modernisiert. Böden in gutem Zustand, Elektrik entspricht aktuellen Standards. Küche und Badezimmer wurden vor 5 Jahren erneuert.
Die Innenräume sind gepflegt und modernisiert. Böden in gutem Zustand, Elektrik entspricht aktuellen Standards. Küche und Badezimmer wurden vor 5 Jahren erneuert.
Premium-Feature
7 Tage kostenlos TestenMassivbauweise aus dem Jahr 1985. Ziegeldach mit Betondachsteinen. Keller vorhanden und trocken. Fundament in gutem Zustand ohne erkennbare Setzungsrisse.
Regelmäßige Wartung und Pflege erkennbar. Heizungsanlage wurde 2020 gewartet. Fassade in gutem Zustand, letzte Renovierung 2019. Dachrinnen und Fallrohre intakt.
Energetische Sanierung 2018 durchgeführt. Neue Fenster mit Dreifachverglasung installiert. Dämmung der Außenwände nach EnEV-Standard erneuert.
Keine bekannten Baulasten eingetragen. Grundbuch zeigt keine Belastungen bezüglich Baubeschränkungen oder Durchfahrtsrechte.
Premium-Feature
7 Tage kostenlos TestenAuszug aus dem
Gutachten
des Sachverständigen über den Verkehrswert für die Ackerfläche in Lohe
Wertermittlungsstichtag: 09.09.2025
Verkehrswert: 19.800€
Grundstücksbeschreibung
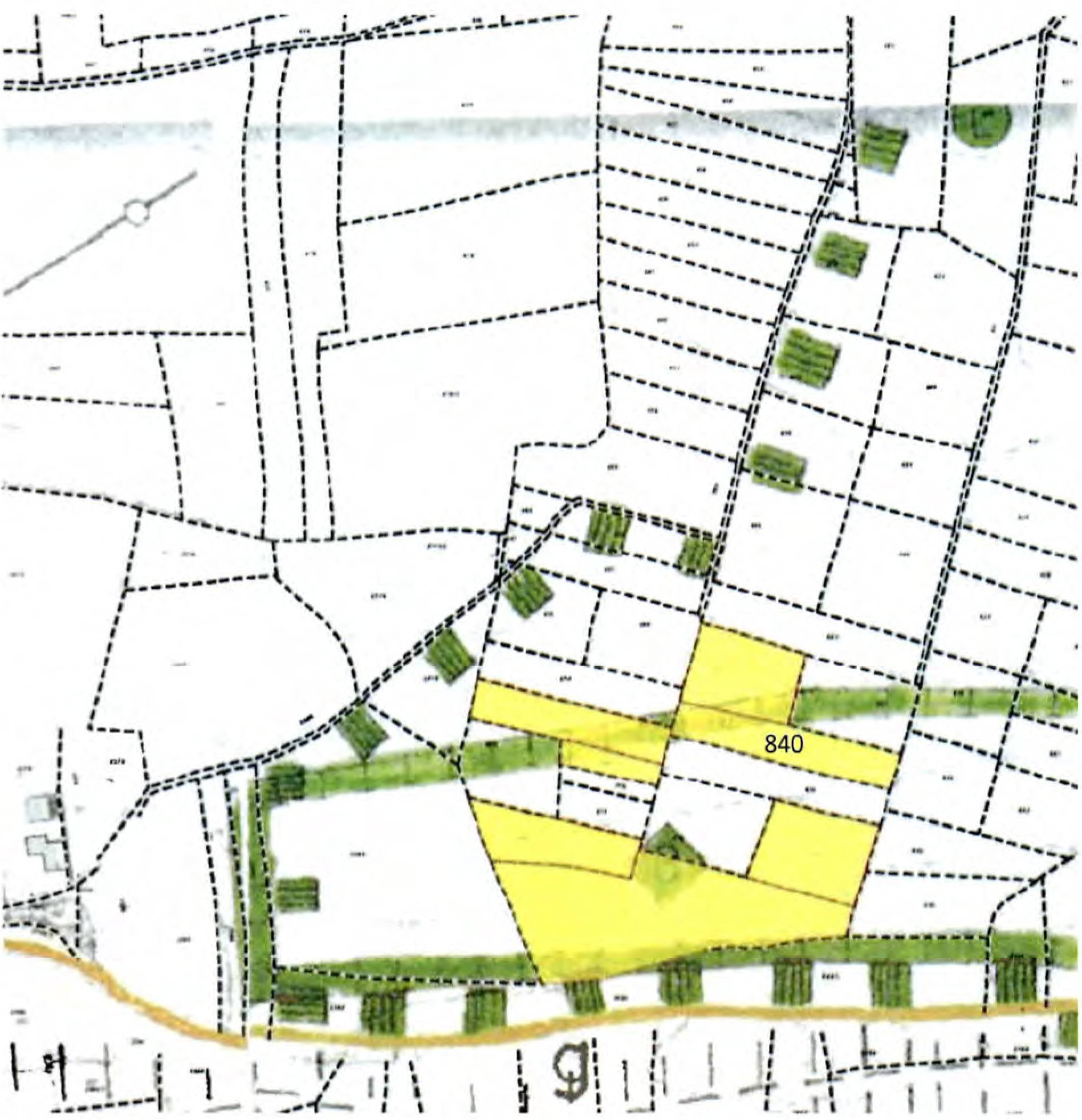
Mikrolage Das Bewertungsgrundstück liegt südlich bis südwestlich von Allershausen und östlich von Laimbach (Lohe). Bei dem Flurstück 840 handelt es sich um einen Teil einer Bewirtschaftungseinheit (Acker). Zur Bewirtschaftungseinheit gehört u.a. das nördlich angrenzende Flurst. Nr. 842 , das sich ebenfalls im Eigentum befindet. Es wird auftragsgemäß in einem separaten Gutachten (Az. L3209) bewertet. Die Bewirtschaftungseinheit kann von Norden über einen Grasweg bzw. von Süden über eine asphaltierte Straße erreicht werden . Die Straße verläuft von Laimbach nach Osten zur FS 56 . Das Bewertungsgrundstück ist umgeben von weiteren Ackerflächen und kann nur über andere Teilflächen der Bewirtschaftungseinheit erreicht werden.
Regionaler Grundstücksmarkt In der Gemeinde Allershausen ist aufgrund der steigenden Bevölkerungsentwicklung mit einer stabilen Nachfrage nach Wohnimmobilien zu rechnen. Der landwirtschaftliche Grundstücksmarkt ist derzeit nicht abschließend einzuschätzen.
Ausformung nahezu regelmäßige, fast rechteckige Ausformung; Länge/Tiefe: ca. 103m; Breite: ca. 16,00 bis 17,50m
Topografie nach Süden geneigt (ggf. Hangneigungsklassen gemäß Düngeverordnung beachten), leicht gewellte Oberfläche
Liegenschaftskataster
Flächennutzungsplan Das Bewertungsgrundstück ist, wie die umliegenden Grundstücke, als Fläche für die Landwirtschaft im planerischen Außenbereich nach § 35 BauGB dargestellt. Laut FNP sind im Bereich des zu bewertenden Grundstücks Bodenmaßnahmen erforderlich , da bei Ackernutzung ansonsten ein Abtrag (Erosion) von 20-30 t/ha und Jahr möglich ist.
Nutzungsmöglichkeit Nach § 11 (1) ImmoWertV ist zu prüfen , ob für die Bewertungsfläche eine anderweitige Nutzung mit hinreichender Sicherheit aufgrund konkreter Tatsachen zu erwarten ist. Laut Schreiben der Gemeinde Allershausen vom 07.03.2025 ist für die zu bewertende Fläche in absehbarer Zeit keine höherwertigere planerische Nutzungsmöglichkeit als die vorhandene zu erwarten.
Bodenverhältnisse
Erschließung, beitrags- und abgabenrechtlicher Zustand Gemäß Auskunft der Gemeinde Allershausen vom 07.03.2025 ist das Flurstück zum Stichtag im abgaben- und beitragsrechtlichen Sinn nicht erschlossen. Erschließungskosten nach BauGB 30 und Herstellungsbeiträge nach KAG wurden nicht erhoben .
Pacht Laut Auskunft im Ortstermin wird das Grundstück bewirtschaftet und ist zum Zeitpunkt des Ortstermins verpachtet. Ein schriftlicher Pachtvertrag liegt allerdings nicht vor. Es handelt sich um ein mündliches Pachtverhältnis (siehe dazu auch § 594a Abs. 1 BGB). Für 8 Grundstücke mit insgesamt ca. 2,04 ha (Acker, Z.T. Grünland) beträgt der Pachtzins laut Auskunft im Ortstermin 900 €/Jahr.
Premium-Feature
7 Tage kostenlos TestenAls Eigentümer können Sie uns zusätzliche Informationen zu Ihrer Immobilie zur Verfügung stellen, die potentiellen Interessenten helfen könnten. Dies kann sich positiv auf das Versteigerungsergebnis auswirken.
Kontaktieren Sie uns per E-Mail unter info@zvgscout.com mit dem Kennzeichen: 1 K 113-24 Amtsgericht Freising.
(Berechnet auf Basis des Verkehrswerts als Zuschlagswert)
(verzinster Betrag: 17.820 €)
Alle Angaben und Berechnungen von ZvgScout sind ohne Gewähr.
Detaillierte Kostenaufstellung & RechnerAlle oben gemachten Angaben ohne Gewähr. ZvgScout übernimmt keine Haftung für die Richtigkeit und Vollständigkeit der dargestellten Informationen.