land-/ forstwirtschtl. Flächen
Lohe, 85391 Allershausen
3.800 €













Lohe, 85391 Allershausen
Premium-Feature
7 Tage kostenlos TestenLeichte Feuchtigkeitsschäden im Kellerbereich. Sanierungsbedarf an der Außenfassade.
Premium-Feature
7 Tage kostenlos TestenGrundschuld zugunsten der Sparkasse München. Hypothek über 150.000 €.
Premium-Feature
7 Tage kostenlos TestenPremium-Feature
7 Tage kostenlos TestenPremium-Feature
7 Tage kostenlos TestenDas Gebäude befindet sich in einem guten Zustand. Die Fassade wurde vor kurzem renoviert und zeigt keine größeren Mängel. Das Dach ist intakt und wurde 2018 erneuert.
Die Innenräume sind gepflegt und modernisiert. Böden in gutem Zustand, Elektrik entspricht aktuellen Standards. Küche und Badezimmer wurden vor 5 Jahren erneuert.
Die Innenräume sind gepflegt und modernisiert. Böden in gutem Zustand, Elektrik entspricht aktuellen Standards. Küche und Badezimmer wurden vor 5 Jahren erneuert.
Premium-Feature
7 Tage kostenlos TestenMassivbauweise aus dem Jahr 1985. Ziegeldach mit Betondachsteinen. Keller vorhanden und trocken. Fundament in gutem Zustand ohne erkennbare Setzungsrisse.
Regelmäßige Wartung und Pflege erkennbar. Heizungsanlage wurde 2020 gewartet. Fassade in gutem Zustand, letzte Renovierung 2019. Dachrinnen und Fallrohre intakt.
Energetische Sanierung 2018 durchgeführt. Neue Fenster mit Dreifachverglasung installiert. Dämmung der Außenwände nach EnEV-Standard erneuert.
Keine bekannten Baulasten eingetragen. Grundbuch zeigt keine Belastungen bezüglich Baubeschränkungen oder Durchfahrtsrechte.
Premium-Feature
7 Tage kostenlos TestenAuszug aus dem
Gutachten
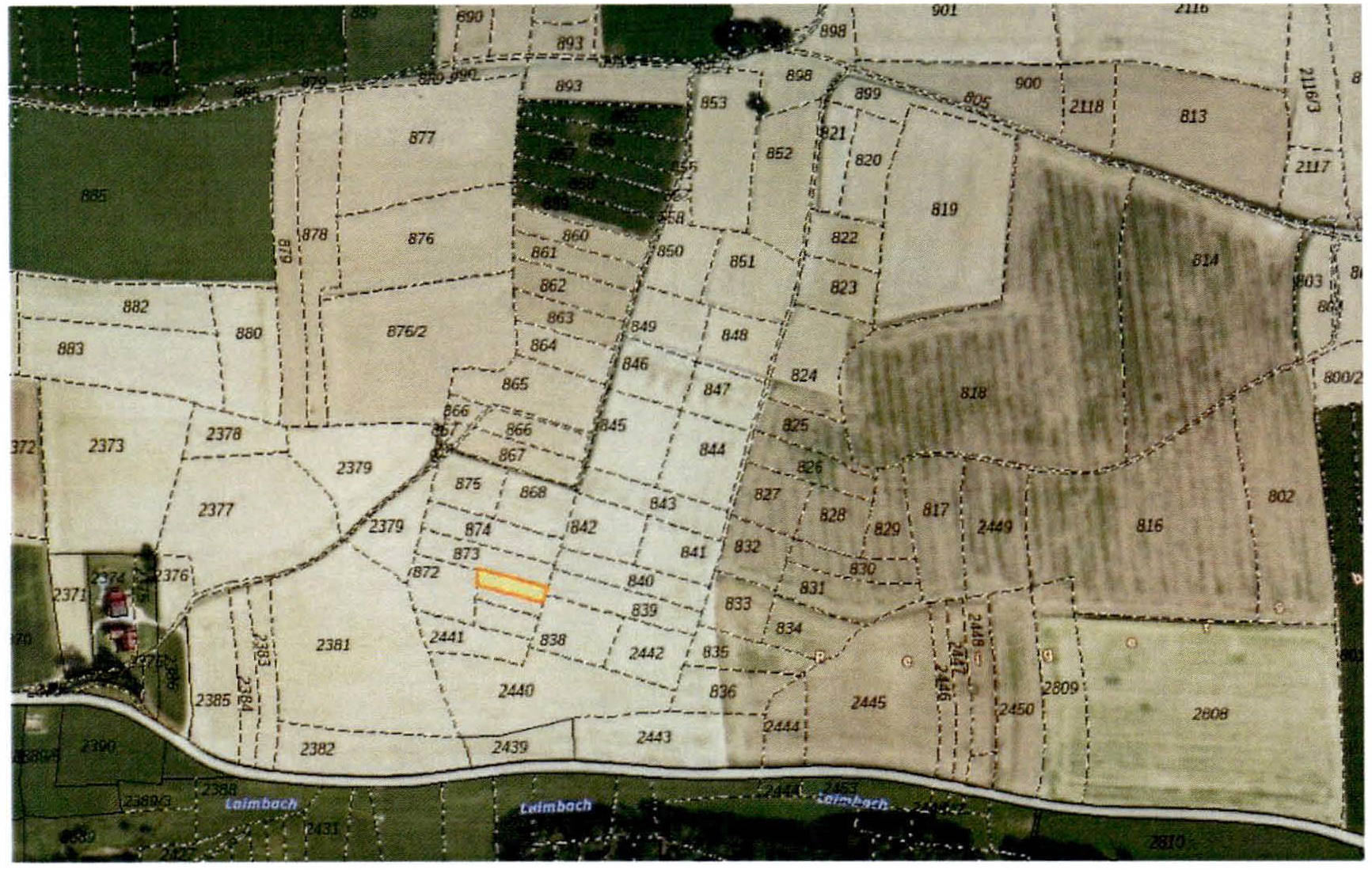
des Sachverständigen über den Verkehrswert für den Acker, Teil einer Bewirtschaftungseinheit in Lohe, 85391 Allershausen
Wertermittlungsstichtag: 24.04.2025
Verkehrswert: 3.800,00 €
Grundstücksbeschreibung
Lage: westlich der BAB A 9, südlich bis südwestlich von Allershausen , östlich von Laimbach , Lohe; Wohnlage : keine; Geschäftslage: keine
Mikrolage: Das Bewertungsgrundstück liegt südlich bis südwestlich von Allershausen und östlich von Laimbach (Lohe). Bei dem Flurstück 869 handelt es sich um einen Teil einer Bewirtschaftungseinheit (Acker). Zur Bewirtschaftungseinheit gehört u.a. das nördlich angrenzende Flurst. Nr. 873, das sich ebenfalls im Eigentum befindet. Es wird auftragsgemäß in einem separaten Gutachten (...) bewertet. Die Bewirtschaftungseinheit kann von Norden über einen Grasweg bzw. von Süden über eine asphaltierte Straße erreicht werden. Die Straße verläuft von Laimbach nach Osten zur FS 56 . Das Bewertungsgrundstück ist umgeben von weiteren Ackerflächen und kann nur über andere Teilflächen der Bewirtschaftungseinheit erreicht werden.
Pacht: It. Auskunft im Ortstermin zum Zeitpunkt der Ortsbesichtigung mündlich zusammen mit anderen Flächen verpachtet
Oberfläche: nach Süden geneigt, leicht gewellte Oberfläche
Zuwegung: über Grasweg von Norden
Naturraum: Unterbayerisches Hügelland und Isar-Inn Schotterplatten, Donau-Isar-Hügelland
Agrargebiet: 5 Tertiär-Hügelland (Nord)
Liegenschaftskataster: Die vorherrschende Bodenart der landwirtschaftlich genutzten Fläche ist Lehm. Die Bonität liegt bei 50 BP , was einer durchschnittlichen natürlichen Ertragsfähigkeit entspricht. Gemäß Bodenschätzung sind Ackerböden nach den Zustandsstufen 1 bis 7 unterteilt. Die Zustandsstufe 1 ist die günstigste und die Zustandsstufe 7 die ungünstigste. Im vorliegenden Fall handelt es sich um die Zustandsstufe 5. Zustand geringerer Ertragsfähigkeit, flach- bis mittel- gründige Böden , scharfes Abgrenzen der 10 bis 20 cm mächtigen Krume vom (rohen) Untergrund , meist infolge einer Bleichzone , erste Anzeichen einer Verdichtung des Untergrunds und beginnende Rostfärbung, häufig zunehmende Entkalkung und Versauerung , bei Lehmböden i.d.R. ein roher und untätiger Untergrund, der meist nur eine geringe Durchwurzelung mit Faserwurzeln zulässt.
Premium-Feature
7 Tage kostenlos TestenAls Eigentümer können Sie uns zusätzliche Informationen zu Ihrer Immobilie zur Verfügung stellen, die potentiellen Interessenten helfen könnten. Dies kann sich positiv auf das Versteigerungsergebnis auswirken.
Kontaktieren Sie uns per E-Mail unter info@zvgscout.com mit dem Kennzeichen: 1 K 114-24 Amtsgericht Freising.
(Berechnet auf Basis des Verkehrswerts als Zuschlagswert)
(verzinster Betrag: 3.420 €)
Alle Angaben und Berechnungen von ZvgScout sind ohne Gewähr.
Detaillierte Kostenaufstellung & Rechner
Musterstraße 12, 12345 Musterstadt
Supermarkt
Schulweg 8, 12345 Musterstadt
Schule
Bahnhofsplatz 1, 12345 Musterstadt
ÖPNV
Alle oben gemachten Angaben ohne Gewähr. ZvgScout übernimmt keine Haftung für die Richtigkeit und Vollständigkeit der dargestellten Informationen.