Eigentumswohnung im Erdgeschoss und Kellergeschoss
Breslauer Straße 2, 87700 Memmingen
577.000 €




























Breslauer Straße 2, 87700 Memmingen
Premium-Feature
7 Tage kostenlos TestenLeichte Feuchtigkeitsschäden im Kellerbereich. Sanierungsbedarf an der Außenfassade.
Premium-Feature
7 Tage kostenlos TestenGrundschuld zugunsten der Sparkasse München. Hypothek über 150.000 €.
Premium-Feature
7 Tage kostenlos TestenPremium-Feature
7 Tage kostenlos TestenPremium-Feature
7 Tage kostenlos TestenDas Gebäude befindet sich in einem guten Zustand. Die Fassade wurde vor kurzem renoviert und zeigt keine größeren Mängel. Das Dach ist intakt und wurde 2018 erneuert.
Die Innenräume sind gepflegt und modernisiert. Böden in gutem Zustand, Elektrik entspricht aktuellen Standards. Küche und Badezimmer wurden vor 5 Jahren erneuert.
Die Innenräume sind gepflegt und modernisiert. Böden in gutem Zustand, Elektrik entspricht aktuellen Standards. Küche und Badezimmer wurden vor 5 Jahren erneuert.
Premium-Feature
7 Tage kostenlos TestenMassivbauweise aus dem Jahr 1985. Ziegeldach mit Betondachsteinen. Keller vorhanden und trocken. Fundament in gutem Zustand ohne erkennbare Setzungsrisse.
Regelmäßige Wartung und Pflege erkennbar. Heizungsanlage wurde 2020 gewartet. Fassade in gutem Zustand, letzte Renovierung 2019. Dachrinnen und Fallrohre intakt.
Energetische Sanierung 2018 durchgeführt. Neue Fenster mit Dreifachverglasung installiert. Dämmung der Außenwände nach EnEV-Standard erneuert.
Keine bekannten Baulasten eingetragen. Grundbuch zeigt keine Belastungen bezüglich Baubeschränkungen oder Durchfahrtsrechte.
Premium-Feature
7 Tage kostenlos TestenAuszug aus dem
Gutachten
des Sachverständigen über den Verkehrswert für den 68,11/100 Miteigentumsanteil an dem Grundstück in der Breslauer Straße 2, 87700 Memmingen, verbunden mit dem Sondereigentum an der Wohnung im Erdgeschoss und Kellergeschoss sowie einem Abstellraum, im Aufteilungsplan bezeichnet mit Nr. 2
Verkehrswert: 577.000 €
Wertermittlungsstichtag: 17.09.2025
Grundstücksbeschreibung
Grundbuchdaten Sondernutzungsrechte sind vereinbart. (siehe Gutachten)
Mietverträge Nach Angaben der Eigentümerin sind einzelne Räume innerhalb der Wohnung Nr. 2 wie folgt
vermietet:
Es bestehen keine schriftlichen Mietverträge.
Kfz-Stellplatzpflicht Die für die Wohnung Nr. 2 erforderlichen Stellplätze sind durch das Sondernutzungsrecht an den 2 Stellplätzen in der Garage bzw. im Bereich des überdachten Garagenvorplatzes nachgewiesen.
Abgabenrechtliche Situation Nach Auskunft der Stadtverwaltung Memmingen sind keine Erschließungsbeiträge nach BauGB zu leisten. Kanalanschluss- und Wasserherstellungsbeiträge nach KAG stehen ebenfalls nicht mehr offen. Das Grundstück ist daher nach derzeit geltender Sach- und Rechtslage abgabenrechtlich als voll erschlossen einzustufen.
Wohn- und Geschäftslage Mittlere Wohnlage, keine Geschäftslage
Grundstückslage Im südwestlichen Bereich von Memmingen, in ca. 1,5 km Entfernung zum Altstadtzentrum (Luftlinie)
Bebauung der Umgebung Dreiseitig Bebauung aus Ein-/Zweifamilienhäusern, im Westen Stadtweiherwald
Beschaffenheit Gelände steigt von der Nordwestecke bis zur Südostecke um ca 2,5 m, Baugrund mit normaler Beschaffenheit, Grundwasserstand unterhalb der Kellergründungssohle
Erschließung Zufahrt über asphaltierte Straße, Abwasserentsorgung in öffentliche Kanalisation mit Klärwerk, Erdgas-, Wasser-, Strom-, Telefon- und Kabelanschluss vorhanden
Immissionen Bei der Ortsbesichtigung habe ich geringe Lärmimmissionen durch den Straßenverkehr von der Autobahn A7 festgestellt. Die Autobahn A7 verläuft in ca. 450 m Entfernung südwestlich vom Grundstück. Zudem bestehen Lärmimmissionen durch den Flugverkehr des Verkehrsflughafens Memmingerberg. Das Objekt befindet sich ca. 4 km westlich von der Start-/Landebahn des Flughafens. Das Grundstück befindet sich jedoch außerhalb der festgesetzten Lärmschutzzonen des Flughafens. Das Gebäude wurde um 1963 als Bungalow mit Flachdach errichtet. Um 1993 wurde auf dem Gebäude ein Satteldach errichtet und um 2007 das Dachgeschoss ausgebaut. Um 1993 wurde auch die Garage an der Westgrenze mit Dachgeschoss erbaut. Die Aufteilung des Gebäudes in Wohnungseigentum erfolgte im Jahr 2007.
Gebäudebeschreibung
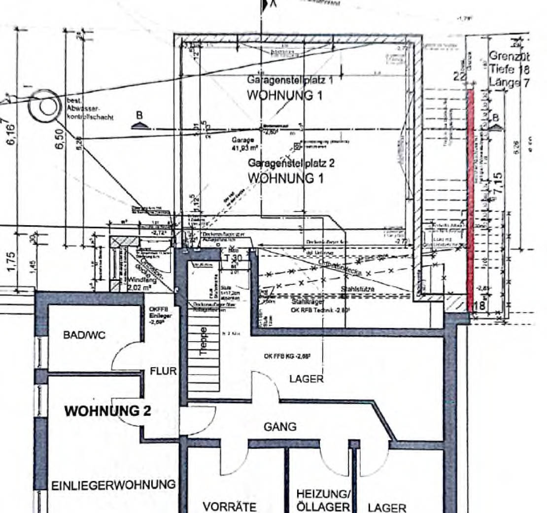
Allgemeines Auf dem Grundstück FlNr. 2147 befindet sich ein Zweifamilienhaus mit 2 Garagen. Das Gebäude besteht aus Untergeschoss, Erdgeschoss und ausgebautem Dachgeschoss und ist in Wohnungseigentum mit 2 Sondereigentumseinheiten aufgeteilt.
Räumlichkeiten
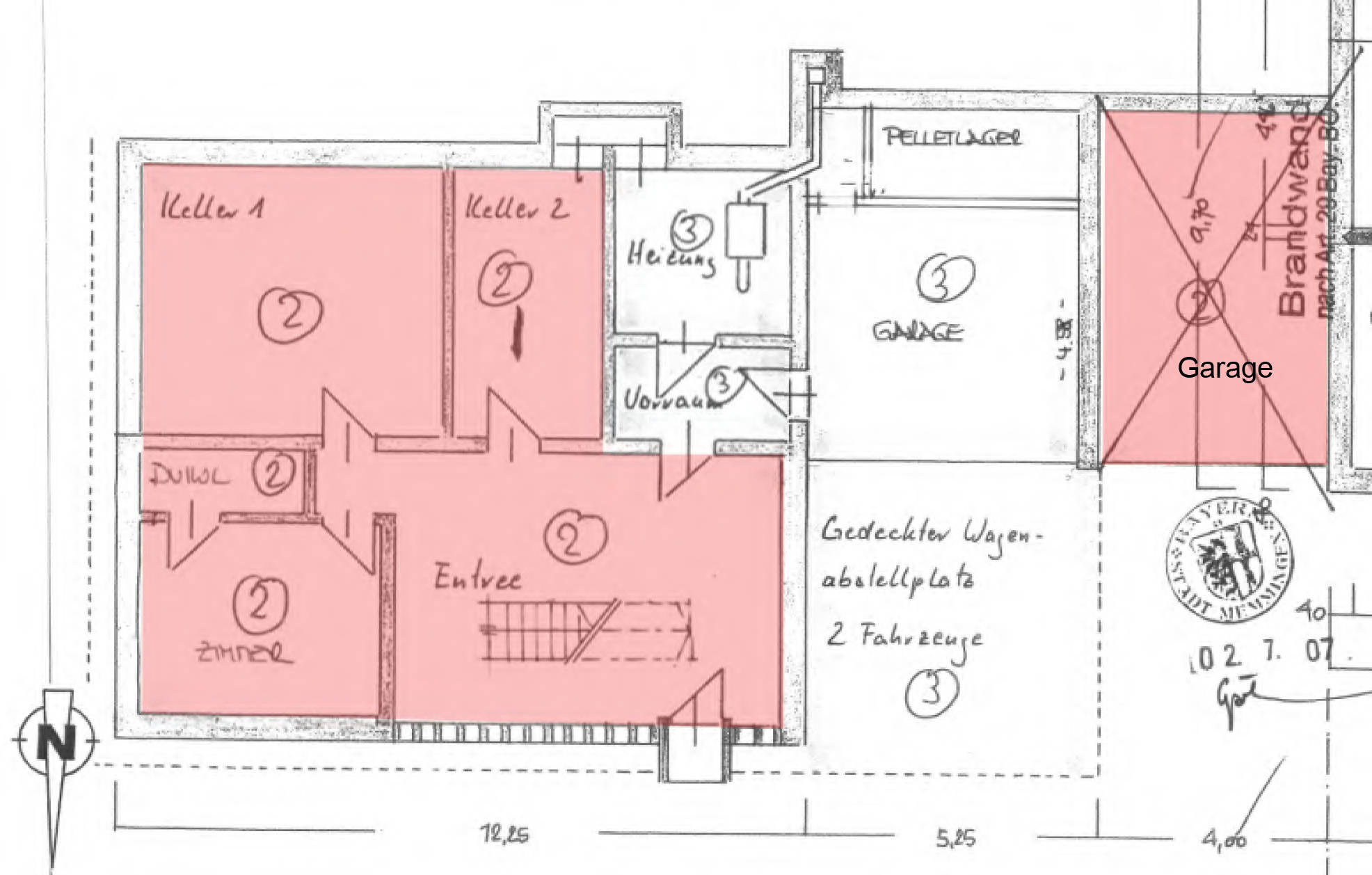
Nutzfläche Kellerräume Wohnung Nr. 2 42 m²
Gemeinschaftseigentum
Rohbau
Geschosse Unter-, Erdgeschoss, ausgebautes Dachgeschoss
Bauweise Massivbau
Fundamente Beton
Kelleraußenwände Beton und Mauerwerk
Außenwände Mauerwerk 36,5 cm, Außenwand Nord im UG im Bereich Eingangsbereich aus Betonformsteinen mit Öffnungen mit Einfachverglasung
Innenwände Mauerwerk
Decken Stahlbetondecke über UG und EG
Treppen im Gemeinschaftseigentum nicht vorhanden
Dach Satteldach in Holzkonstruktion
Dacheindeckung Dachziegel
Rinnen/Fallrohre Kupferblech
Ausbau
Fenster unterschiedliche Ausführung, Holzfenster mit 2-fach-Isolierglas im DG, sonst siehe Beschreibung Wohnung Nr. 2
Türen/Tore Holzeingangstüren, Stahlrahmenkipptor mit Holzbekleidung in der Garage
Innentüren Stahlblechtüre im Heizungsraum, sonst siehe Beschreibung Wohnung Nr. 2
Bodenbeläge Glattstrich in der Garage, PVC-Belag im Heizungsraum und Vorraum
Fassade Westwand und tlw. Nordwand im Untergeschoss mit Verkleidung aus 2 cm dickem Betonplattenbelag (ähnlich Verbundsteinpflaster), Betonteile im Bereich der Nordwand UG und der Ringbalken im Bereich der Decke UG und der Decke EG aus Sichtbeton unbehandelt, sonst Putz und Anstrich
Wandbekleidungen Putz und Anstrich
Deckenbekleidungen Betondecke in der Garage und im Heizungsraum unverputzt mit Anstrich
Besondere Bauteile überdeckter Garagenvorplatz mit Asphaltbelag und Überdeckung durch Überbau Erdgeschoss
Besondere Einbauten nicht vorhanden
Installationen
Sanitäre Einrichtungen im Gemeinschaftseigentum nicht vorhanden
Heizung pelletbefeuerte Zentralheizung mit Warmwasserbereitung und Solarunterstützung, Zweischichtenpufferspeicher 820 l, Vakuumsolarkollektoren (42 Stück) auf südlicher Dachhälfte, Pelletsilo mit ca. 7 Tonnen Befüllmenge aus Holzriegeln mit OSB-Plattenbekeidung, Heizanlagentechnik aus 2008
Elektro einfache bis durchschnittliche Ausstattung
Allgemeinzustand/Unterhaltungszustand Das Satteldach wurde um 1993 auf dem ehemaligen Flachdach errichtet. Die Heizanlagentechnik (Heizkessel, Speicher, Solarkollektoren) wurde 2008 erneuert. Ansonsten stammt die Gebäudeausstattung aus der Bauzeit 1963. Das Gemeinschaftseigentum befindet sich in einem normalen Instandhaltungszustand.
Wohnung Nr. 2
Räumlichkeiten
Wohnfläche 248 m²
Ausbau
Fenster Stahlgitterfenster mit Einfachglas in den Kellerräumen Süd, sonst Holzverbundfenster in den Kellerräumen, Holzalufensterelemente mit 2-fach-Isolierglas im EG auf West-, Nord- und Südseite (aus 2015), raumhohe Holzfensterelemente mit 2-fach-Isolierglas auf Südseite mit Schiebetüren aus Bauzeit 1963
Rollladen/Läden Holzrollläden an Fenstern Schlafzimmer Ostseite
Türen/Tore Holzeingangstüre
Innentüren Holzstockrahmen und furnierte Holztürblätter, im Erdgeschoss Türelement raumhoch
Trennwände Trennwände im Schlafbereich Ost aus Ständerwerk
Bodenbeläge Parkett im Wohn-/Essbereich EG, in den Schlafzimmern und im Bad West EG, Korkbelag im Kochbereich EG und Zimmer West EG, Fliesen im Eingangsbereich UG, in der Dusche UG, im Kellerraum Süd-Mitte UG, im WC EG und im Bad EG, Vinylbelag im Kellerraum Nordost und im Kellerraum Südost, Spanplattenbelag auf Schlafgalerie Zimmer West EG Treppen aufgesattelte Holzteppe UG-EG mit Holzgeländer mit Füllung aus Seilen, Holztreppe mit Holzgeländer im Zimmer West EG zur Schlafgalerie
Wandbekleidungen Wände im Eingangsbereich UG, im Flur EG und im Wohn-/ Essbereich aus Klinkersichtmauerwerk, tlw. mit Anstrich, tlw. Fliesen im WC und im Bad innenliegend, Fliesenschild in der Küche,
Außenwand Nord im EG Eingangsbereich aus Sichtbeton, sonst Gipskarton oder Putz und Anstrich oder Tapeten
Deckenbekleidungen Betondecke im Keller Südwest und im Keller Süd unverputzt mit Anstrich, sonst Gipskarton mit Anstrich im UG, Nut- und Federholzbekleidung mit Anstrich im EG
Dachschrägen Nut- und Federholzbekleidung im Bereich Schlafgalerie Zimmer West EG
Besondere Bauteile teilüberdeckte Terrasse auf Südseite mit Natursteinbelag und Überdachung durch Hauptdachverlängerung
Besondere Einbauten nicht vorhanden
Zubehör Einbauküche aus Bauzeit, abgenutzt und nicht werthaltig, Photovoltaikanlage auf südlicher Dachfläche (siehe Pkt. 7.5)
Installationen
Sanitäre Einrichtungen geflieste Dusche, wandhängendes WC und Waschtisch mit Unterschrank in Dusche/WC UG, wandhängendes WC und Handwaschbecken im WC EG, Badewanne mit Duscheinstieg, 2 Auftischwaschbecken und Anschluss für Bidet im Bad EG innenliegend, freistehende Badewanne, wandhängendes WC mit Unterputzspülkasten und Duschwanne mit Glasduschwand im Bad West EG, Spülenanschluss und Waschmaschinenanschluss im Küchenbereich
Heizung Fußbodenheizung und Handtuchheizkörper im Bad EG innen- liegend, Fußbodenheizung im Keller Nordwest und in der Dusche/WC UG, Heizkörper im Eingangsbereich UG und in allen Räumen im EG
Elektro einfache bis durchschnittliche Ausstattung, Elektroverteilung im Flur EG aus 2014
Allgemeinzustand/Unterhaltungszustand Um 2015 wurden die Fenster auf der West-, Nord- und Ostseite erneuert und das innenliegende Bad teilerneuert. Um 2020 wurde das ehemalige Wohnzimmer zum Koch-Essbereich abgeteilt, ein WC im Flurbereich und ein Bad im nördlichen Bereich des ehemaligen Wohnzimmers eingebaut. Die Wohnung weist, soweit bei der Besichtigung feststellbar, einen allgemeinen Instandhaltungsstau auf. Die Parkett- und Korkversiegelungen im Wohnbereich sind abgenutzt und die Wandanstriche abgenutzt. Das innenliegende Bad ist ungepflegt und insgesamt erneuerungsbedürftig. Das im Bereich des ehemaligen Wohnzimmers ausgebaute Badezimmer ist unfertig, ungepflegt und insgesamt nicht werthaltig. Die raumhohen Fensterelemente entlang der Südfront sind 62 Jahre alt und erneuerungsbedürftig. Die Wohnung bedarf insgesamt einer Modernisierung.
Garage
Nutzfläche Sondernutzungsrecht 28 m²
Die Garage Nr. 2 befindet sich im Untergeschoss an der Westgrenze. Die Garage ist durch einen Wohnraum der Wohnung Nr. 2 überbaut. Die Garage Nr. 2 konnte nicht besichtigt werden. Die in Massivbauweise errichtete Garage besteht aus einem Betonboden mit Glattstrich, Betonwänden mit Putz und Anstrich, einer Betondecke und einem schmalen 2-flg. Holztor. Die Garage wurde um 1993 erbaut und befindet sich soweit von außen ersichtlich in einem normalen Instandhaltungszustand.
Außenanlagen
Zufahrt zur Garage Nr. 2 im Westen mit Betonsteinpflaster belegt, Hauszugang im Norden, Stellplatz nördlich Wohnhaus und Hoffläche vor dem überdeckten Pkw- Abstellplatz im Norden asphaltiert, Zugang zur Außentreppe Wohnung Nr. 1 und in den Garten mit Betonsteinpflaster und Freitreppen mit insgesamt 9 Granitblockstufen, in diesem Zugangsbereich und entlang der Nordgrenze Einfriedung aus Granitpfosten mit Gabionenzaun, 1-flg Türe am Zugang und 2-flg. Tor an Nordgrenze aus Edelstahlrahmen mit geschlossener Füllung, Gartenweg östlich Wohnhaus aus Waschbetonplattenbelag Gartensondernutzungsfläche Wohnung Nr. 2: Terrasse südlich Wohnhaus mit Naturstein- oder Waschbetonplattenbelag, Gartenwege aus Waschbetonplattenbelag, Granitsteinpflaster. Betonsteinpflaster oder Pflaster aus Kieselsteinen, rundes Wasserbecken (Durchmesser 1,2 m) aus Beton, ca. 1,80 m tief, Einfassung aus Granitsteinpflaster, Einstiegsleiter aus Edelstahl, Freitreppen aus Natursteinblockstufen oder Granitsteinpflaster, verschiedene Pflanzbeete mit Einfassung aus Natursteintrockenmauern,
Freisitz an der südwestlichen Grundstücksecke mit Betonplattenbelag,Überdachung (ca. 28 m²) an der südwestlichen Grundstücksecke mit Stützen aus Granitstelen, Grenzwand teilweise aus Betonschalungssteinen unverputzt, Pultdach in Holzkonstruktion mit Eindeckung aus Titanzinkblech, Boden aus Betonplattenbelag, Gartenhaus im südöstlichen Grundstücksbereich, Abm. 3,8 x 3,8 m mit Anbau 1,8 x 1,8 m, Boden mit Betonsteinpflaster, Wände aus Holzfachwerk mit Ausmauerung aus Betonblocksteinen, Satteldach in Holzkonstruktion mit Flachdachabdichtung und Dachbegrünung, unterirdischer, stillgelegter Heizöllagertank im nordöstlichen Grundstücksbereich, sonst Grünfläche aus Rasen mit verschiedenen Bäumen, Sträuchern und Pflanzbeeten, tlw. Thujahecke entlang den Grenzen Die Grünflächen, insbesondere die Pflanzbeete befinden sich in einem ungepflegten Zustand. Die Überdachung an der südwestlichen Grundstücksecke ist unfertig und wurde zudem ohne Baugenehmigung errichtet. Die Asphaltflächen nördlich des Wohnhauses sind schadhaft und unvollständig. Das Gartenhaus ist durch einen Brand stark beschädigt und abbruchreif. Die Abbruchkosten in Höhe von ca. 5.000 € werden bei der Wertermittlung wertmindernd in Abzug gebracht.
Premium-Feature
7 Tage kostenlos TestenAls Eigentümer können Sie uns zusätzliche Informationen zu Ihrer Immobilie zur Verfügung stellen, die potentiellen Interessenten helfen könnten. Dies kann sich positiv auf das Versteigerungsergebnis auswirken.
Kontaktieren Sie uns per E-Mail unter info@zvgscout.com mit dem Kennzeichen: 2 K 16-25.
(Berechnet auf Basis des Verkehrswerts als Zuschlagswert)
(verzinster Betrag: 519.300 €)
Alle Angaben und Berechnungen von ZvgScout sind ohne Gewähr.
Detaillierte Kostenaufstellung & Rechner
Musterstraße 12, 12345 Musterstadt
Supermarkt
Schulweg 8, 12345 Musterstadt
Schule
Bahnhofsplatz 1, 12345 Musterstadt
ÖPNV
Alle oben gemachten Angaben ohne Gewähr. ZvgScout übernimmt keine Haftung für die Richtigkeit und Vollständigkeit der dargestellten Informationen.