Gewerbeimmobilie
Memminger Straße 2, 89231 Neu-Ulm
3.730.000 €









































Memminger Straße 2, 89231 Neu-Ulm
Premium-Feature
7 Tage kostenlos TestenLeichte Feuchtigkeitsschäden im Kellerbereich. Sanierungsbedarf an der Außenfassade.
Premium-Feature
7 Tage kostenlos TestenGrundschuld zugunsten der Sparkasse München. Hypothek über 150.000 €.
Premium-Feature
7 Tage kostenlos TestenPremium-Feature
7 Tage kostenlos TestenPremium-Feature
7 Tage kostenlos TestenDas Gebäude befindet sich in einem guten Zustand. Die Fassade wurde vor kurzem renoviert und zeigt keine größeren Mängel. Das Dach ist intakt und wurde 2018 erneuert.
Die Innenräume sind gepflegt und modernisiert. Böden in gutem Zustand, Elektrik entspricht aktuellen Standards. Küche und Badezimmer wurden vor 5 Jahren erneuert.
Die Innenräume sind gepflegt und modernisiert. Böden in gutem Zustand, Elektrik entspricht aktuellen Standards. Küche und Badezimmer wurden vor 5 Jahren erneuert.
Premium-Feature
7 Tage kostenlos TestenMassivbauweise aus dem Jahr 1985. Ziegeldach mit Betondachsteinen. Keller vorhanden und trocken. Fundament in gutem Zustand ohne erkennbare Setzungsrisse.
Regelmäßige Wartung und Pflege erkennbar. Heizungsanlage wurde 2020 gewartet. Fassade in gutem Zustand, letzte Renovierung 2019. Dachrinnen und Fallrohre intakt.
Energetische Sanierung 2018 durchgeführt. Neue Fenster mit Dreifachverglasung installiert. Dämmung der Außenwände nach EnEV-Standard erneuert.
Keine bekannten Baulasten eingetragen. Grundbuch zeigt keine Belastungen bezüglich Baubeschränkungen oder Durchfahrtsrechte.
Premium-Feature
7 Tage kostenlos TestenAuszug aus dem
Gutachten
des Sachverständigen über den Verkehrswert über die Grundstücke in 89231 Neu-Ulm, Memminger Straße 2
Wertermittlungsstichtag: 03.05.2023
Verkehrswert: 3.730.000,- €
Hinweis: Mit Schreiben vom 20.07.2023 teilt die Stadt Neu-Ulm mit, dass sich die Kosten, die die Stadt von einem Erwerber für die Nutzungsrechte fordern wird, schätzungsweise 450.000,- € betragen
Grundstücksbeschreibung
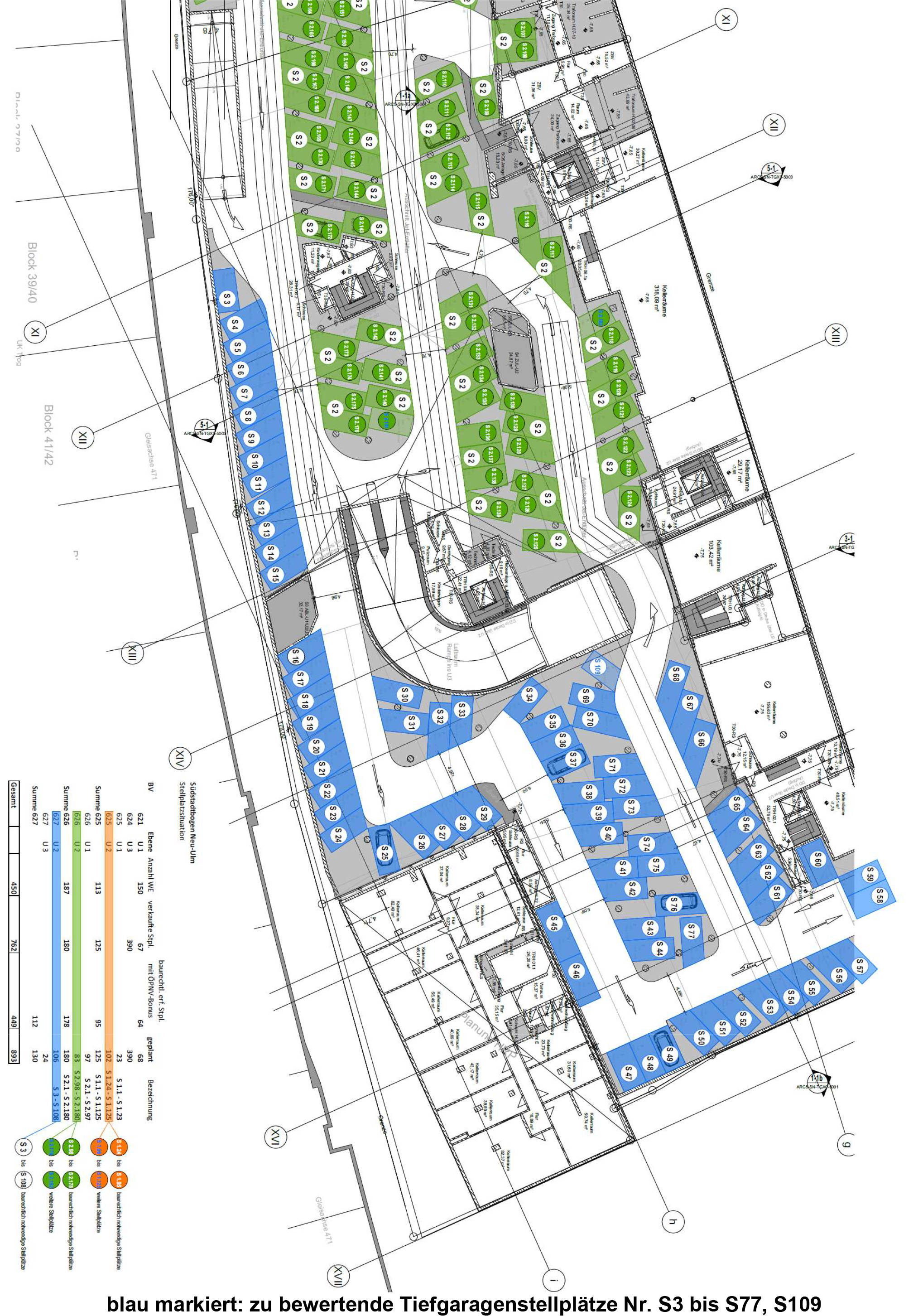
Beschreibung: Auf dem Flurstück ist ein Bürohochhaus mit 13 Vollgeschossen mit insgesamt rund 4000 m² Bürofläche genehmigt. Die Baugenehmigung wurde mit Bescheid vom 08.02.2023 bis zum 20.09.2024 verlängert.
Ortslage: in zentraler Lage von Neu-Ulm, ca. 500m zum Hauptbahnhof, an der Hauptbahnlinie München - Stuttgart
Umgebungsbebauung: Wohn- und Geschäftshäuser
Bebauung: 3 Untergeschosse im Rohbau
Erschließung: voll erschlossen
Grundstücksbezogene Rechte: Stellplatzbenützungsrecht an 24 Tiefgaragenstellplätzen im 3.Untergeschoss der westlich angrenzenden Tiefgarage der Stadt Neu-Ulm
Gebäudebeschreibung
Die nachfolgenden Beschreibungen beschränken sich jeweils auf die drei Untergeschosse. Die Bauarbeiten sind seit ca. 2018 im Stillstand.
Baubeschreibung
Umfassungswände: Stahlbeton
Trennwände: Stahlbeton und Kalksandstein
Geschossdecken: Stahlbeton
Treppen: Stahlbeton
Bau- und Unterhaltungszustand: Rohbau
Premium-Feature
7 Tage kostenlos TestenAls Eigentümer können Sie uns zusätzliche Informationen zu Ihrer Immobilie zur Verfügung stellen, die potentiellen Interessenten helfen könnten. Dies kann sich positiv auf das Versteigerungsergebnis auswirken.
Kontaktieren Sie uns per E-Mail unter info@zvgscout.com mit dem Kennzeichen: 2 K 32-22.
(Berechnet auf Basis des Verkehrswerts als Zuschlagswert)
(verzinster Betrag: 3.357.000 €)
Alle Angaben und Berechnungen von ZvgScout sind ohne Gewähr.
Detaillierte Kostenaufstellung & Rechner
Musterstraße 12, 12345 Musterstadt
Supermarkt
Schulweg 8, 12345 Musterstadt
Schule
Bahnhofsplatz 1, 12345 Musterstadt
ÖPNV
Alle oben gemachten Angaben ohne Gewähr. ZvgScout übernimmt keine Haftung für die Richtigkeit und Vollständigkeit der dargestellten Informationen.