Garage(n)
Nähe Von-Hünefeld-Straße, 89231 Neu- Ulm
11.600 €









































Nähe Von-Hünefeld-Straße, 89231 Neu- Ulm
Premium-Feature
7 Tage kostenlos TestenLeichte Feuchtigkeitsschäden im Kellerbereich. Sanierungsbedarf an der Außenfassade.
Premium-Feature
7 Tage kostenlos TestenGrundschuld zugunsten der Sparkasse München. Hypothek über 150.000 €.
Premium-Feature
7 Tage kostenlos TestenPremium-Feature
7 Tage kostenlos TestenPremium-Feature
7 Tage kostenlos TestenDas Gebäude befindet sich in einem guten Zustand. Die Fassade wurde vor kurzem renoviert und zeigt keine größeren Mängel. Das Dach ist intakt und wurde 2018 erneuert.
Die Innenräume sind gepflegt und modernisiert. Böden in gutem Zustand, Elektrik entspricht aktuellen Standards. Küche und Badezimmer wurden vor 5 Jahren erneuert.
Die Innenräume sind gepflegt und modernisiert. Böden in gutem Zustand, Elektrik entspricht aktuellen Standards. Küche und Badezimmer wurden vor 5 Jahren erneuert.
Premium-Feature
7 Tage kostenlos TestenMassivbauweise aus dem Jahr 1985. Ziegeldach mit Betondachsteinen. Keller vorhanden und trocken. Fundament in gutem Zustand ohne erkennbare Setzungsrisse.
Regelmäßige Wartung und Pflege erkennbar. Heizungsanlage wurde 2020 gewartet. Fassade in gutem Zustand, letzte Renovierung 2019. Dachrinnen und Fallrohre intakt.
Energetische Sanierung 2018 durchgeführt. Neue Fenster mit Dreifachverglasung installiert. Dämmung der Außenwände nach EnEV-Standard erneuert.
Keine bekannten Baulasten eingetragen. Grundbuch zeigt keine Belastungen bezüglich Baubeschränkungen oder Durchfahrtsrechte.
Premium-Feature
7 Tage kostenlos TestenAuszug aus dem
Gutachten
des Sachverständigen über den Verkehrswert über die Miteigentumsanteile an dem Grundstück, verbunden mit dem Sondereigentum an Tiefgaragenstellplätzen in 89231 Neu-Ulm, Nähe Von-Hünefeld-Straße
Wertermittlungsstichtag: 03.05.2023
Verkehrswert: 13 Stellplätze zu je 11.600,00€
Grundstücksbeschreibung
Ortslage: in zentraler Lage von Neu-Ulm, ca. 500m zum Hauptbahnhof, an Hauptbahnlinie München - Stuttgart
Umgebungsbebauung: Wohn- und Geschäftshäuser
Bebauung: Wohnhausanlage
Erschließung: voll erschlossen
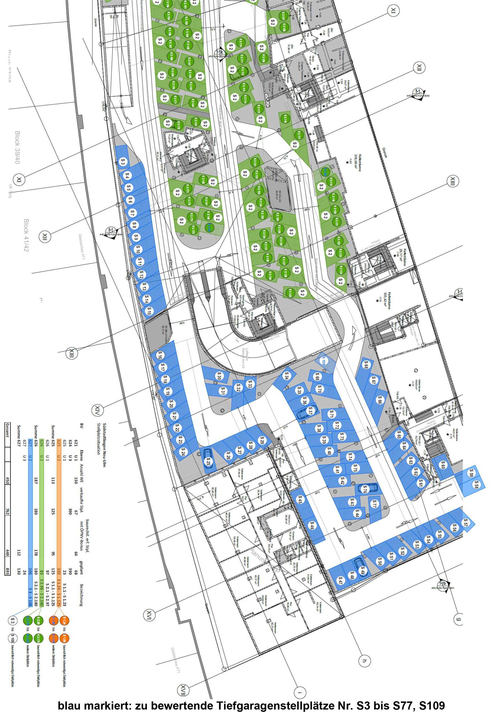
Beschreibung: Das Flurstück ist Teil einer größeren, aus mehreren Flurstücken bestehenden Wohnanlage mit 3 Untergeschossen und Wohnblocks mit 7 bis 8 Vollgeschossen. Mit dem Flurstück ist das Sondernutzungsrecht an den zu bewertenden, insgesamt 107 Tiefgaragenstellplätzen mit je 2,39/1000 Miteigentumsanteilen verbunden.
Gebäudebeschreibung
Tiefgarage
Beschreibung: Die Tiefgarage ist im Bau befindlich. Der Rohbau ist im Wesentlichen abgeschlossen und der haustechnische Ausbau hat in Teilbereichen begonnen. Die zu bewertenden Tiefgaragenstellplätze befinden sich im 2. Untergeschoss. Jedes Untergeschoss hat eine eigene Tiefgaragenzufahrt. Die Tiefgaragenzufahrten erfolgen von der Von-Hünefeld-Straße. Die Bauarbeiten sind noch nicht abgeschlossen.
Hinweis: Die Parkplätze S25 und S26 entfallen, da an ihrer Stelle ein Fluchttreppenhaus notwendig wird, solange das Bürohaus nicht realisiert ist.
Baubeschreibung
Umfassungswände: Stahlbeton
Trennwände: Stahlbeton
Geschossdecken: Stahlbeton
Treppen: Stahlbeton
Abfahrtsrampen: Stahlbeton
Bau- und Unterhaltungszustand: Rohbau, mit dem haustechnischen Ausbau teilweise begonnen
Art: Bei den Stellplätzen handelt es sich um Senkrechtparker bzw. nahezu Senkrechtparker.
Hinweis: Für einen Erwerber der Immobilien ist von besonderer Wichtigkeit für seine
Kaufpreisüberlegungen zu wissen, dass mit deren Erwerb Forderungen von Seiten der Stadt Neu-Ulm und von Seiten der Wohneigentümergemeinschaft-Tiefgarage gegenüber dem jeweiligen Erwerber geltend gemacht werden. Mit Schreiben vom 20.07.2023 teilt die Stadt Neu-Ulm mit, dass sich die Kosten, die die Stadt von einem Erwerber für die Nutzungsrechte fordern wird, schätzungsweise 450.000,- € betragen.
Wohnhaus
Baubeschreibung (Die nachfolgenden Beschreibungen beschränken sich jeweils auf die drei Untergeschosse. Die Bauarbeiten sind seit ca. 2018 im Stillstand.)
Umfassungswände: Stahlbeton
Trennwände: Stahlbeton und Kalksandstein
Geschossdecken: Stahlbeton
Treppen: Stahlbeton
Bau- und Unterhaltungszustand: Rohbau
Premium-Feature
7 Tage kostenlos TestenAls Eigentümer können Sie uns zusätzliche Informationen zu Ihrer Immobilie zur Verfügung stellen, die potentiellen Interessenten helfen könnten. Dies kann sich positiv auf das Versteigerungsergebnis auswirken.
Kontaktieren Sie uns per E-Mail unter info@zvgscout.com mit dem Kennzeichen: 2 K 32-22-2.
(Berechnet auf Basis des Verkehrswerts als Zuschlagswert)
(verzinster Betrag: 10.440 €)
Alle Angaben und Berechnungen von ZvgScout sind ohne Gewähr.
Detaillierte Kostenaufstellung & Rechner
Musterstraße 12, 12345 Musterstadt
Supermarkt
Schulweg 8, 12345 Musterstadt
Schule
Bahnhofsplatz 1, 12345 Musterstadt
ÖPNV
Alle oben gemachten Angaben ohne Gewähr. ZvgScout übernimmt keine Haftung für die Richtigkeit und Vollständigkeit der dargestellten Informationen.
Weitere Garage(n) in ähnlicher Preisklasse