Eigentumswohnung
Breslauer Straße 8, 89231 Neu-Ulm, Ludwigsfeld
225.000 €




















Breslauer Straße 8, 89231 Neu-Ulm, Ludwigsfeld
Premium-Feature
7 Tage kostenlos TestenLeichte Feuchtigkeitsschäden im Kellerbereich. Sanierungsbedarf an der Außenfassade.
Premium-Feature
7 Tage kostenlos TestenGrundschuld zugunsten der Sparkasse München. Hypothek über 150.000 €.
Premium-Feature
7 Tage kostenlos TestenPremium-Feature
7 Tage kostenlos TestenPremium-Feature
7 Tage kostenlos TestenDas Gebäude befindet sich in einem guten Zustand. Die Fassade wurde vor kurzem renoviert und zeigt keine größeren Mängel. Das Dach ist intakt und wurde 2018 erneuert.
Die Innenräume sind gepflegt und modernisiert. Böden in gutem Zustand, Elektrik entspricht aktuellen Standards. Küche und Badezimmer wurden vor 5 Jahren erneuert.
Die Innenräume sind gepflegt und modernisiert. Böden in gutem Zustand, Elektrik entspricht aktuellen Standards. Küche und Badezimmer wurden vor 5 Jahren erneuert.
Premium-Feature
7 Tage kostenlos TestenMassivbauweise aus dem Jahr 1985. Ziegeldach mit Betondachsteinen. Keller vorhanden und trocken. Fundament in gutem Zustand ohne erkennbare Setzungsrisse.
Regelmäßige Wartung und Pflege erkennbar. Heizungsanlage wurde 2020 gewartet. Fassade in gutem Zustand, letzte Renovierung 2019. Dachrinnen und Fallrohre intakt.
Energetische Sanierung 2018 durchgeführt. Neue Fenster mit Dreifachverglasung installiert. Dämmung der Außenwände nach EnEV-Standard erneuert.
Keine bekannten Baulasten eingetragen. Grundbuch zeigt keine Belastungen bezüglich Baubeschränkungen oder Durchfahrtsrechte.
Premium-Feature
7 Tage kostenlos TestenAuszug aus dem
Gutachten
des Sachverständigen über den Verkehrswert für die Eigentumswohnung Nr. 68 in 89231 Neu-Ulm, Ludwigsfeld, Breslauer Straße 8
Wertermittlungsstichtag: 29.09.2024
Verkehrswert: Wohnung 225.000,00 €
Grundstücksbeschreibung
Mikrolage Das Bewertungsobjekt befindet sich im Nordosten des Neu-Ulmer Stadtteils Ludwigsfeld. Bushaltestelle, Kirche, Einkaufsmöglichkeiten und der Ludwigsfelder Baggersee sind auch fußläufig erreichbar. Mit den öffentlichen Verkehrsmitteln sind des Weiteren der Bahnhof und die Neu-Ulmer Innenstadt sowie öffentliche Einrichtungen wie Schulen usw. gut zu erreichen.
Beurteilung der Lage: Das Grundstück befindet sich in verkehrsgünstiger Lage, umgeben von zahlreichen Mehrfamilienhäusern. Die Lage ist insgesamt ordentlich.
Immissionen Beim Ortstermin konnten keine störenden Lärm-, Staub- oder Geruchsimmissionen festgestellt werden.
Nachfolgend wird davon ausgegangen, dass die in einem Wohngebiet zulässigen Grenzwerte in der Regel nicht überschritten werden.
Erschließung Das Grundstück wird von Westen über die öffentlich gewidmete „Danziger Straße" erschlossen. Im Süden verläuft die Breslauer Straße.
Laut der Stadt Neu-Ulm bestehen hinsichtlich des Erschließungsbeitrages nach §§ 127 ff. BauGB keine Forderungen mehr.
Bezüglich Verbesserungsmaßnahmen wurden keine Aussagen getroffen. Nachfolgend wird davon ausgegangen, dass diese in absehbarer Zeit nicht geplant sind, sodass das Grundstück derzeit als erschließungsbeitrags- und kostenerstattungsbetragsfrei (frei) angesehen werden kann. Das Gebäude ist an die öffentlichen Ver- und Entsorgungsleitungen, Wasser, Abwasser, Fernwärme, Strom und Telekommunikation angeschlossen.
Stellplätze Auf dem Grundstück befinden sich ein oberirdischer Parkplatz sowie darunter eine Tiefgarage.
Gebäudebeschreibung
Allgemeines Die Gemeinschaftsflächen des Gebäudes konnten besichtigt werden. Der Zugang zur Wohnung war nicht möglich. Entsprechend basieren die nachfolgenden Beschreibungen auf Annahmen, den Angaben aus der Baubeschreibung bzw. der Gebäudebesichtigung.
Rohbau Das Gebäude ist in massiver Bauweise errichtet. Das Dach ist als Flachdach ausgeführt. Der Dachaufbau ist nicht bekannt. Die Fassade ist mit Waschbetonfertigteilen verkleidet.
Art des Gebäudes und des Wohnungseigentums Bei dem Gebäude handelt es sich um ein 19-geschossiges, vollunterkellertes Gebäude mit 90 Wohneinheiten und Flachdach. Auf dem Grundstück befindet sich ferner eine Tiefgarage mit oberirdischem Parkdeck.
Gemeinschaftseigentum
Wandbekleidungen: Epoxidharz oder Rohbeton, gestrichen.
Deckenbekleidungen: Rohbeton, gestrichen.
Bodenbeläge: Linoleum, Estrich, Betonwerkstein.
Türen: Haustüre: Aluminiumrahmentüre mit Isolierglas.
Türen Treppe-Flur: Aluminiumrahmentüre mit Drahtfadenverbundglas.
Fenster: Kunststofffenster mit Isolierverglasung.
Treppen: KG-DG: Zweiläufige Stahlbetonpodesttreppen mit Stahlgeländer. Die Trittstufen sind mit Edelstahlplatten belegt. Vom Treppenhaus gelangt man in den jeweiligen Etagenflur.
Keller: Einzelne Kellerräume sind über Blechwände abgetrennt.
Haustechnik:
Heizungsinstallation: Fernwärme. Die Übergabestation und Pumpen befinden sich im Keller.
Sanitärinstallation: Im Heizungskeller befinden sich drei Warmwasserspeicher mit je 1.500 l Nenninhalt.
Elektroinstallation: Der Stromanschluss wird im Technikraum im EG ins Haus geführt. Hier befinden sich auch die Panzersicherungen. Einzelne Zählerplätze für die Wohnungen sind etagenweise im Technikraum vorhanden. Im Keller befindet sich ein Notstromaggregat, Fabrikat Heinke, Baujahr 1974. Die Steuerung des Aggregats ist neuern Datums.
Aufzuganlage: Zwei Aufzüge, Fabrikat Kanzler, 600 kg Traglast bzw. 8 Personen, Baujahr 1973, Umbaujahr 2011, sind montiert.
Sondereigentum
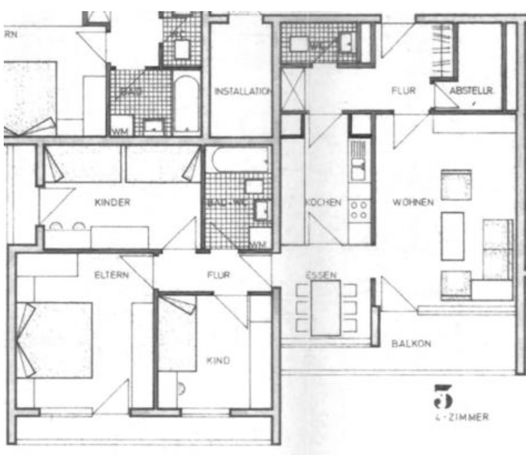
Bei dem Bewertungsobjekt handelt es sich um eine 4,5-Zimmer-Eigentumswohnung mit ca. 88 m² Wohnfläche im 14. Obergeschoss und um einen Tiefgaragenstellplatz in Neu-Ulm-Ludwigsfeld. Der Zuschnitt der Wohnung ist gemäß den Plänen gut. Die Wohnung befindet sich in einem Hochhaus aus dem Baujahr ca. 1973. Zur Wohnung gehört das Sondernutzungsrecht am Kellerraum K3. Die Tiefgarage befindet sich vor dem Hochhaus.
Ausbau
Fenster: Kunststofffenster mit Isolierverglasungen.
Türen: Wohnungseingangstüre: Lackierte Holztüre in Stahlumfassungszarge mit Türspion.
Der weitere Ausbau ist nicht bekannt.
Haustechnik:
Heizungsinstallation: Zur Heizungsanlage ist nichts bekannt.
Sanitärinstallation: In der Wohnung befindet sich laut Plan ein Gäste-WC sowie ein Badezimmer. Weiteres ist nicht bekannt.
Elektroinstallation: Hierzu ist nichts bekannt.
Beurteilung Wohnung: Der Zustand der Wohnung ist aufgrund der fehlenden Innenbesichtigung unbekannt. Das Gebäude weißt insgesamt einen hohen Instandhaltungsbedarf auf.
Außenanlagen
Parkdeck und Hof sind gepflastert. Die Außenanlagen sind mit Bäumen und Bü-schen bepflanzt.
Premium-Feature
7 Tage kostenlos TestenAls Eigentümer können Sie uns zusätzliche Informationen zu Ihrer Immobilie zur Verfügung stellen, die potentiellen Interessenten helfen könnten. Dies kann sich positiv auf das Versteigerungsergebnis auswirken.
Kontaktieren Sie uns per E-Mail unter info@zvgscout.com mit dem Kennzeichen: 2 K 49-24.
(Berechnet auf Basis des Verkehrswerts als Zuschlagswert)
(verzinster Betrag: 202.500 €)
Alle Angaben und Berechnungen von ZvgScout sind ohne Gewähr.
Detaillierte Kostenaufstellung & Rechner
Musterstraße 12, 12345 Musterstadt
Supermarkt
Schulweg 8, 12345 Musterstadt
Schule
Bahnhofsplatz 1, 12345 Musterstadt
ÖPNV
Alle oben gemachten Angaben ohne Gewähr. ZvgScout übernimmt keine Haftung für die Richtigkeit und Vollständigkeit der dargestellten Informationen.
Weitere Eigentumswohnung in ähnlicher Preisklasse