Mehrfamilienhaus
Friedenstraße 4, 89312 Neu-Ulm
841.100 €



































Friedenstraße 4, 89312 Neu-Ulm
Premium-Feature
7 Tage kostenlos TestenLeichte Feuchtigkeitsschäden im Kellerbereich. Sanierungsbedarf an der Außenfassade.
Premium-Feature
7 Tage kostenlos TestenGrundschuld zugunsten der Sparkasse München. Hypothek über 150.000 €.
Premium-Feature
7 Tage kostenlos TestenPremium-Feature
7 Tage kostenlos TestenPremium-Feature
7 Tage kostenlos TestenDas Gebäude befindet sich in einem guten Zustand. Die Fassade wurde vor kurzem renoviert und zeigt keine größeren Mängel. Das Dach ist intakt und wurde 2018 erneuert.
Die Innenräume sind gepflegt und modernisiert. Böden in gutem Zustand, Elektrik entspricht aktuellen Standards. Küche und Badezimmer wurden vor 5 Jahren erneuert.
Die Innenräume sind gepflegt und modernisiert. Böden in gutem Zustand, Elektrik entspricht aktuellen Standards. Küche und Badezimmer wurden vor 5 Jahren erneuert.
Premium-Feature
7 Tage kostenlos TestenMassivbauweise aus dem Jahr 1985. Ziegeldach mit Betondachsteinen. Keller vorhanden und trocken. Fundament in gutem Zustand ohne erkennbare Setzungsrisse.
Regelmäßige Wartung und Pflege erkennbar. Heizungsanlage wurde 2020 gewartet. Fassade in gutem Zustand, letzte Renovierung 2019. Dachrinnen und Fallrohre intakt.
Energetische Sanierung 2018 durchgeführt. Neue Fenster mit Dreifachverglasung installiert. Dämmung der Außenwände nach EnEV-Standard erneuert.
Keine bekannten Baulasten eingetragen. Grundbuch zeigt keine Belastungen bezüglich Baubeschränkungen oder Durchfahrtsrechte.
Premium-Feature
7 Tage kostenlos TestenAuszug aus dem
Gutachten
des Sachverständigen über das bebaute Grundstück in 89312 Neu-Ulm, Friedenstraße 4
Verkehrswert: 841.100,00 €
Wertermittlungsstichtag: 03.04.2025
Grundstücksbeschreibung
Ortsbeschreibung
Neu-Ulm ist die Kreisstadt des Landkreises Neu-Ulm mit Landratsamt und sonstigen Verwaltungseinrichtungen. Neu-Ulm verfügt über alle Geschäfte und Einrichtungen eines Mittelzentrums.
Neu-Ulm stellt mit der unmittelbar angrenzenden Stadt Ulm mit seinen zusammen ca, 190,000 Einwohnern einen bedeutenden Wirtschaftsstandort dar. In Neu-Ulm sind ca. 63.000 Einwohner wohnhaft.
Beschreibung des Grundstücks Die beiden Flurstücke Nrn. 217/2 und 223 grenzen aneinander und bilden eine wirtschaftliche Einheit Sie werden deshalb nachfolgend als ein Grundstück beschrieben.
Ortslage in zentraler Lage von Neu-Ulm
Umgebungsbebauung Blockrandbebauung mit mehrgeschossigen Wohnhäusern, im Erdgeschoss oftmals mit gewerblicher Nutzung
Grundstückzuschnitt rechteckähnlicher Zuschnitt
Grundstücksfläche Oberfläche im Norden von der Friedenstraße erschlossen
Bebauung 4-Familienhaus, der vordem Wohnhaus gelegen Grundstücksbereich wird als öffentlicher Bürgersteig genutzt.
Untergrundbeschaffenheit Aussagen über die Tragfähigkeit des Untergrundes sowie den Grundwasserststand werden nicht getroffen. Es wird nachfolgend davon ausgegangen, dass auf Grund der Beschaffenheit des Untergrundes und den Grundwasserverhältnissen keine über das ortsübliche Maß hinausgehenden Aufwendungen für die bauliche Nutzung des Grundstücks erforderlich sind.
Erschließung voll erschlossen
Planungsrecht Der Bebauungsplan M70 weist das Grundstück innerhalb eines Besonderen Wohngebiets WB aus, in dem in den Obergeschossen nur Wohnen zulässig ist
Gebäudebeschreibung
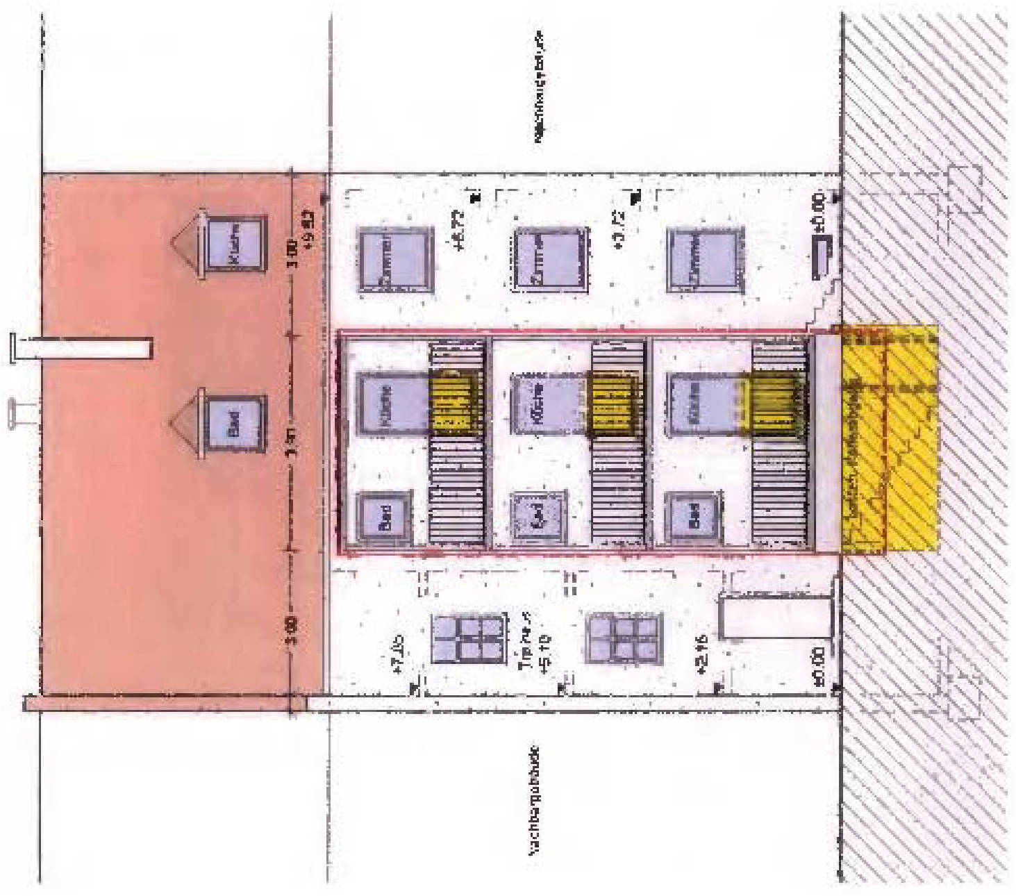
4-Familienhaus
Die Bebauung besteht aus einem Wohnhaus, bestehend aus Kellergeschoss, Erdgeschoss sowie 1. bis 3. Obergeschoss und Oachgeschoss mit je einer Wohnung pro Etage.
Urbaujahr um 1900
Wiederaufbau ca. 1946 (gemäß Datum der Bauantragsunterlagen geschätzt)
Um- u. Ausbauten / Modernisierungen Angaben nach freier Schätzung des Verfassers auf Grundlage vorliegender Unterlagen: ca. 2000 wurde das Gebäude durchgreifend modernisiert und hierbei
Vermietungsfläche Die Vermietungsfläche wurde auf Grundlage der beiliegenden Bauantragspläne überschlägig ermittelt.
Gesamtwohnfläche. überschlägig ca. 262,6 m²
Bau- und Unterhaltungszustand im Wesentlichen durchschnittlich. Nicht besichtigt werden konnten die Wohnungen im 1 und 2. Obergeschoss.
Wegen Unwägbarkeiten beim Zustand der nicht besichtigten Wohnungen wird bei der nachfolgenden Bestimmung des Verkehrswerts ein Risikoabschlag
vorgenommen.
Bauweise
Kellerumfassungswände 30 cm Stampfbeton
Umfassungswände Ziegelmauerwerk, verputzt
Innenwände Mauerwerk, verputzt
Decken Holzbalkendecken, Gewölbedecke über KG
Geschosstreppe vom KG ins EG Betontreppe mit Granitbelag; vom EG Dis DG Holzwangentreppen mit Granittritt- und Setzstufen; Holzstabgeländer mit Holzhandlauf; vom DG in Dachspitz einfache Holztreppe mit Holztritt- und Setzstufen
Dach zimmermannsmäßige Satteldachkonstruktion mit Gauben, Dachneigung ca. 45 Grad; das 1. Dachgeschoss zu einer Wohnung ausgebaut; der Dachspitz wurde ebenfalls zu Wohnraum ausgebaut.
Dachdeckung Biberdeckung
Spenglerarbeiten Titanzinkblech
Fenster Kunststofffenster mit 2-Scheiben-lsolisrverglasung, handbetriebene Kunststoffrollladen Holzrahmentüre mit Glasausschnitt
Hauseingangstüre
Nachfolgende Beschreibung der Innenausstattung erfolgt aufgrund der Besichtigung der Wohnungen im Erd- und Dachgeschoss, Bei den Wohnungen in den beiden Obergeschossen wird eine gleichartige Ausstattung unterstellt
Innentüren Holztürblätter mit Holzzargen, weiß beschichtet
Innenwandflächen verputzt, Sanitärzellen gefliest, Fliesenschilde in den Küchen
Deckenflächen verputzt
Böden KG: Betonestrich; Wohnbereich: Laminatbelag, Fliesenbelag in Küchen und Sanitärzellen
Heizung Fertigheizkörper, betrieben über Gastherme mit Erdgasanschluss im KG
Sanitär zentrale Warmwasseraufbereitung im KG über Gastherme; Sanitärzellen in einfacher, zeitgemäßer Ausstallung:
Elektro durchschnittliche, zeitgemäße Ausstattung
Fassadengestaltung Putzfassade mit Vollwärmeschutz
Außenanlagen
Die Freifläche auf der Straßenseite ist als öffentlicher Bürgerstein ausgebildet. Die Freifläche im Osten ist in etwa zur Hälfte mit Betonpflastersteinen befestigt und bietet Zugang zu einer Holzgerätehütte. Die östliche Hälfte ist als Rasenfläche angelegt.
Premium-Feature
7 Tage kostenlos TestenAls Eigentümer können Sie uns zusätzliche Informationen zu Ihrer Immobilie zur Verfügung stellen, die potentiellen Interessenten helfen könnten. Dies kann sich positiv auf das Versteigerungsergebnis auswirken.
Kontaktieren Sie uns per E-Mail unter info@zvgscout.com mit dem Kennzeichen: 2 K 83-24.
(Berechnet auf Basis des Verkehrswerts als Zuschlagswert)
(verzinster Betrag: 756.990 €)
Alle Angaben und Berechnungen von ZvgScout sind ohne Gewähr.
Detaillierte Kostenaufstellung & Rechner
Musterstraße 12, 12345 Musterstadt
Supermarkt
Schulweg 8, 12345 Musterstadt
Schule
Bahnhofsplatz 1, 12345 Musterstadt
ÖPNV
Alle oben gemachten Angaben ohne Gewähr. ZvgScout übernimmt keine Haftung für die Richtigkeit und Vollständigkeit der dargestellten Informationen.