Grundstück
Nähe Arnulstr., 89312 Neu-Ulm
18.900 €



































Nähe Arnulstr., 89312 Neu-Ulm
Premium-Feature
7 Tage kostenlos TestenLeichte Feuchtigkeitsschäden im Kellerbereich. Sanierungsbedarf an der Außenfassade.
Premium-Feature
7 Tage kostenlos TestenGrundschuld zugunsten der Sparkasse München. Hypothek über 150.000 €.
Premium-Feature
7 Tage kostenlos TestenPremium-Feature
7 Tage kostenlos TestenPremium-Feature
7 Tage kostenlos TestenDas Gebäude befindet sich in einem guten Zustand. Die Fassade wurde vor kurzem renoviert und zeigt keine größeren Mängel. Das Dach ist intakt und wurde 2018 erneuert.
Die Innenräume sind gepflegt und modernisiert. Böden in gutem Zustand, Elektrik entspricht aktuellen Standards. Küche und Badezimmer wurden vor 5 Jahren erneuert.
Die Innenräume sind gepflegt und modernisiert. Böden in gutem Zustand, Elektrik entspricht aktuellen Standards. Küche und Badezimmer wurden vor 5 Jahren erneuert.
Premium-Feature
7 Tage kostenlos TestenMassivbauweise aus dem Jahr 1985. Ziegeldach mit Betondachsteinen. Keller vorhanden und trocken. Fundament in gutem Zustand ohne erkennbare Setzungsrisse.
Regelmäßige Wartung und Pflege erkennbar. Heizungsanlage wurde 2020 gewartet. Fassade in gutem Zustand, letzte Renovierung 2019. Dachrinnen und Fallrohre intakt.
Energetische Sanierung 2018 durchgeführt. Neue Fenster mit Dreifachverglasung installiert. Dämmung der Außenwände nach EnEV-Standard erneuert.
Keine bekannten Baulasten eingetragen. Grundbuch zeigt keine Belastungen bezüglich Baubeschränkungen oder Durchfahrtsrechte.
Premium-Feature
7 Tage kostenlos TestenAuszug aus dem
Gutachten
des sachverständigen über das Grundstück in 89312 Neu-Ulm, Nähe Arnulstr.
Verkehrswert: 18.900,00 €
Wertermittlungsstichtag: 03.04.2025
Grundstücksbeschreibung
Ortsbeschreibung
Neu-Ulm ist die Kreisstadt des Landkreises Neu-Ulm mit Landratsamt und sonstigen Verwaltungseinrichtungen. Neu-Ulm verfügt über alle Geschäfte und Einrichtungen eines Mittelzentrums.
Neu-Ulm stellt mit der unmittelbar angrenzenden Stadt Ulm mit seinen zusammen ca, 190,000 Einwohnern einen bedeutenden Wirtschaftsstandort dar. In Neu-Ulm sind ca. 63.000 Einwohner wohnhaft.
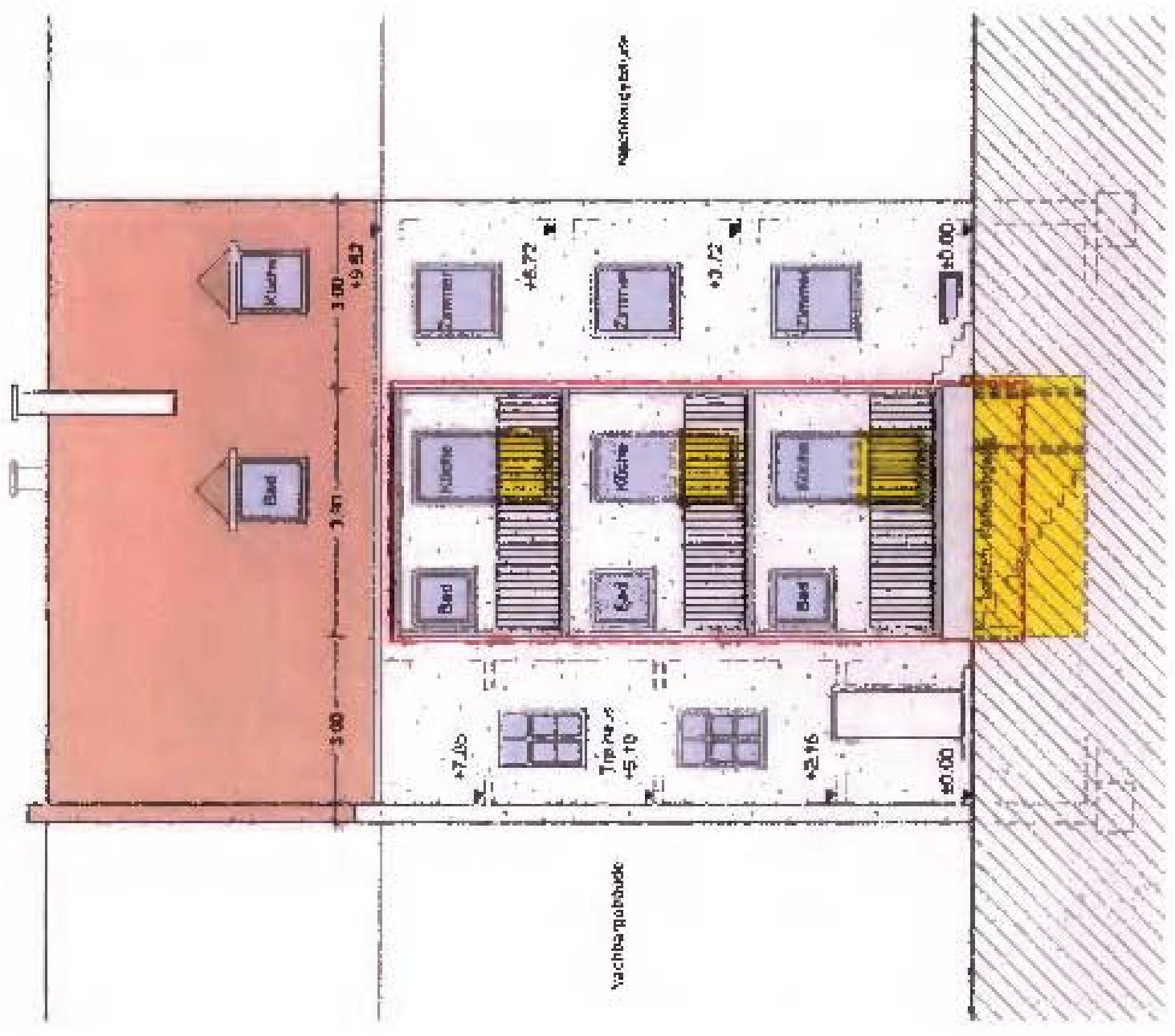
Beschreibung des Grundstücks Die beiden Flurstücke Nrn. 217/2 und 223 grenzen aneinander und bilden eine wirtschaftliche Einheit Sie werden deshalb nachfolgend als ein Grundstück beschrieben.
Ortslage in zentraler Lage von Neu-Ulm
Umgebungsbebauung Blockrandbebauung mit mehrgeschossigen Wohnhäusern, im Erdgeschoss oftmals mit gewerblicher Nutzung
Grundstückzuschnitt rechteckähnlicher Zuschnitt
Grundstücksfläche Oberfläche im Norden von der Friedenstraße erschlossen
Bebauung 4-Familienhaus, der vordem Wohnhaus gelegen Grundstücksbereich wird als öffentlicher Bürgersteig genutzt.
Untergrundbeschaffenheit Aussagen über die Tragfähigkeit des Untergrundes sowie den Grundwasserstand werden nicht getroffen
Es wird nachfolgend davon ausgegangen, dass auf Grund der Beschaffenheit des Untergrundes und den Grundwasserverhältnissen keine über das ortsübliche Maß hinausgehenden Aufwendungen für die bauliche Nutzung des Grundstücks erforderlich sind.
Erschließung voll erschlossen
Planungsrecht Der Bebauungsplan M70 weist das Grundstück innerhalb eines Besonderen Wohngebiets WB aus, in dem in den Obergeschossen nur Wohnen zulässig ist
Premium-Feature
7 Tage kostenlos TestenAls Eigentümer können Sie uns zusätzliche Informationen zu Ihrer Immobilie zur Verfügung stellen, die potentiellen Interessenten helfen könnten. Dies kann sich positiv auf das Versteigerungsergebnis auswirken.
Kontaktieren Sie uns per E-Mail unter info@zvgscout.com mit dem Kennzeichen: 2 K 83-24-1.
(Berechnet auf Basis des Verkehrswerts als Zuschlagswert)
(verzinster Betrag: 17.010 €)
Alle Angaben und Berechnungen von ZvgScout sind ohne Gewähr.
Detaillierte Kostenaufstellung & Rechner
Musterstraße 12, 12345 Musterstadt
Supermarkt
Schulweg 8, 12345 Musterstadt
Schule
Bahnhofsplatz 1, 12345 Musterstadt
ÖPNV
Alle oben gemachten Angaben ohne Gewähr. ZvgScout übernimmt keine Haftung für die Richtigkeit und Vollständigkeit der dargestellten Informationen.