Gewerbeimmobilie
Goethestraße 3, 84032 Landshut
93.000 €























Goethestraße 3, 84032 Landshut
Premium-Feature
7 Tage kostenlos TestenLeichte Feuchtigkeitsschäden im Kellerbereich. Sanierungsbedarf an der Außenfassade.
Premium-Feature
7 Tage kostenlos TestenGrundschuld zugunsten der Sparkasse München. Hypothek über 150.000 €.
Premium-Feature
7 Tage kostenlos TestenPremium-Feature
7 Tage kostenlos TestenPremium-Feature
7 Tage kostenlos TestenDas Gebäude befindet sich in einem guten Zustand. Die Fassade wurde vor kurzem renoviert und zeigt keine größeren Mängel. Das Dach ist intakt und wurde 2018 erneuert.
Die Innenräume sind gepflegt und modernisiert. Böden in gutem Zustand, Elektrik entspricht aktuellen Standards. Küche und Badezimmer wurden vor 5 Jahren erneuert.
Die Innenräume sind gepflegt und modernisiert. Böden in gutem Zustand, Elektrik entspricht aktuellen Standards. Küche und Badezimmer wurden vor 5 Jahren erneuert.
Premium-Feature
7 Tage kostenlos TestenMassivbauweise aus dem Jahr 1985. Ziegeldach mit Betondachsteinen. Keller vorhanden und trocken. Fundament in gutem Zustand ohne erkennbare Setzungsrisse.
Regelmäßige Wartung und Pflege erkennbar. Heizungsanlage wurde 2020 gewartet. Fassade in gutem Zustand, letzte Renovierung 2019. Dachrinnen und Fallrohre intakt.
Energetische Sanierung 2018 durchgeführt. Neue Fenster mit Dreifachverglasung installiert. Dämmung der Außenwände nach EnEV-Standard erneuert.
Keine bekannten Baulasten eingetragen. Grundbuch zeigt keine Belastungen bezüglich Baubeschränkungen oder Durchfahrtsrechte.
Premium-Feature
7 Tage kostenlos TestenAuszug aus dem
Gutachten
des Sachverständigen über den Verkehrswert der Gewerbeeinheit Nr. 5 in der Anlage 84032 Landshut, Goethestraße 3
Wertermittlungsstichtag: 17.04.2025
Verkehrswert: 93.000,-- €
Hinweis: Zum selben Termin werden weitere Objekte dieses Grundstücks versteigert (siehe Aktenzeichen 3 K 104/24#1-3)
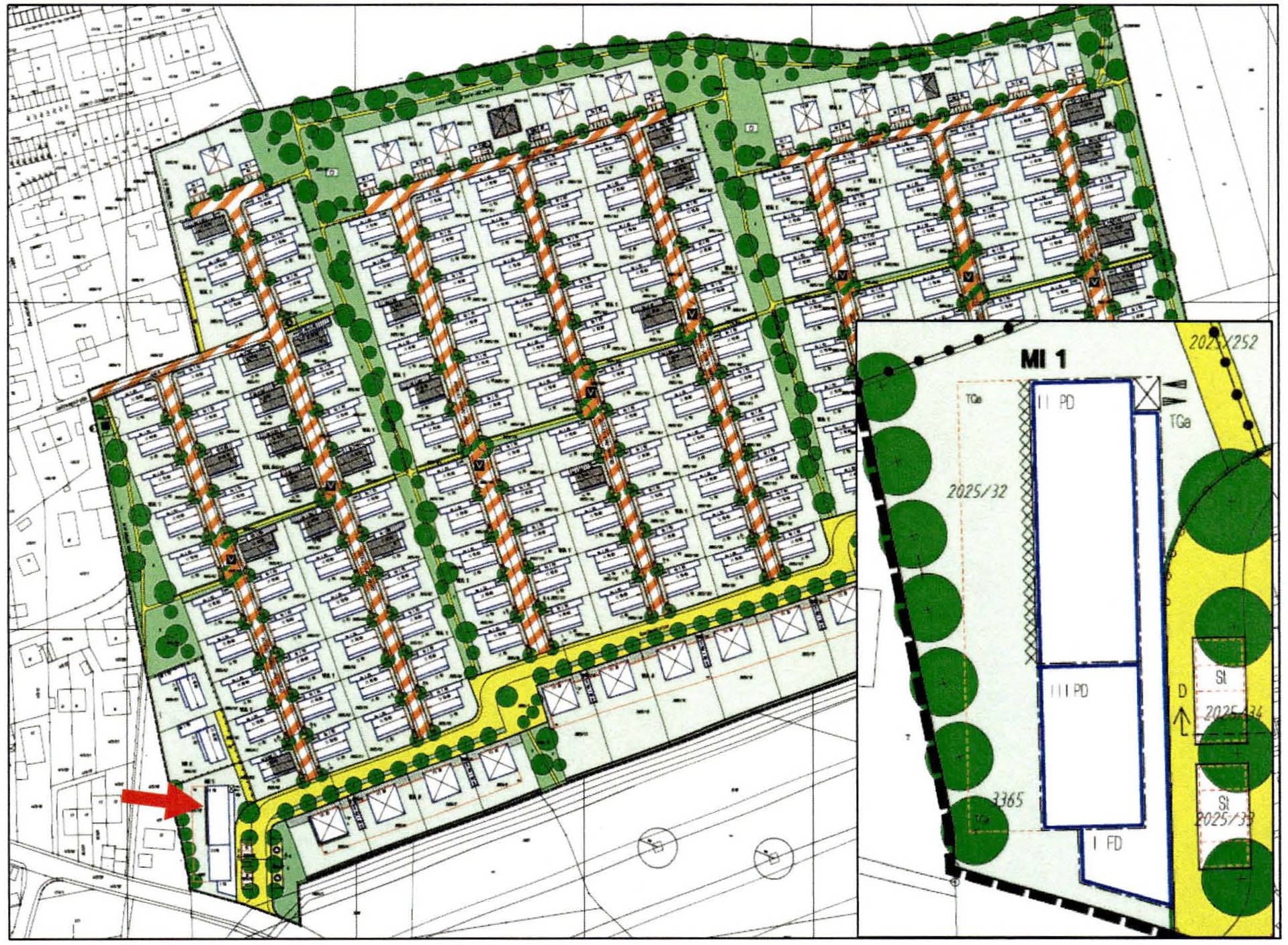
Grundstücksbeschreibung
Hausverwaltung Es lagen Protokolle der Eigentümerversammlungen 2023 und 2024 zur Bewertung vor. Von der Hausverwaltung wurde mitgeteilt: Monatliches Hausgeld Gewerbeeinheit Nr. 5: 232 €
Mikrolage Der Stadtteil Wolfgang bildet das nordwestliche Stadtgebiet, nördlich des Hauptbahnhofs. (...) Die umliegende Bebauung besteht aus bis zu dreigeschossigen kleineren Wohnanlagen und freistehenden Ein- bis Zweifamilienhäusern. Südlich der Eichenstraße schließen Acker- bzw. Grünflächen an. Die Geschäftslage ist als unterdurchschnittlich zu qualifizieren. Das Verkehrsaufkommen auf der Goethestraße ist durchschnittlich.
Erschließung Das Grundstück ist ortsüblich durch die ausgebaute Goethestraße (Straßendeckung mit Asphaltierung mit zweiseitigem Gehweg) sowie durch Kanal, Wasser, Gas und Strom erschlossen. Erschließungskosten fallen nach Angabe der Stadtverwaltung zum Stichtag nicht mehr an.
Gebäudebeschreibung
Gemäß den vorliegenden Unterlagen wurde das Geschäftshaus im Jahr 2004 errichtet. Seither erfolgten außer den üblichen Instandhaltungsarbeiten keine wesentlichen baulichen Veränderungen. Das Gebäude ist voll unterkellert und besteht im Übrigen aus Erdgeschoss und Obergeschoss. Die Anlage umfasst insgesamt 5 Gewerbeeinheiten (im EG und OG) und eine Kellereinheit. Im Tiefgaragengeschoss befinden sich 13 Tiefgaragenstellplätze.
Grundkonstruktion: Massivbauweise; Kellerumfassungswände aus Stahlbeton, sonstige Umfassungs- und Zwischenwände aus Ziegelmauerwerk (Wandstärke der Umfassungswände 0= 36,5 cm).
Decken: Stahlbetondecken.
Dach: Pultdach mit Betonpfannendeckung, Regenrinnen und Fallleitungen aus verzinktem Blech.
Treppe: Außentreppe: Metallwangentreppe mit Metallgeländer
Fenster: Gewerbeeinheit Nr. 5: Kleines Kunststofffenster mit Isolierverglasung im Bad, keine Rollos.
Türen: Gewerbeeinheit Nr. 5: Eingangstüre (überdeckt, ebenerdig): Kunststoffkonstruktion mit Oberlichte, Isolierverglasung und festverglastem Seitenteil; im Innenbereich: glatte weißbeschichtete Türblätter, z.T. mit Glasausschnitt.; Gewerbeeinheit Nr. 6: feuerhemmende Metalltüre.
Böden: Gewerbeeinheit Nr. 5: durchgehend Fliesenbelag. Kellerraum Nr. 6: beschichteter Estrich.
Decken- und Wandbehandlung: Fassade mit verriebenem Putz und Anstrich, im Innenbereich Gewerbehandlung Nr. 5 überwiegend glatter Wand- und Deckenputz, Wandfliesen raumhoch im Dusch-Bad und ca. 2 m hoch im WC; Tiefgarage: Sichtbeton mit Anstrich.
Technische Installation
Hausanschlüsse: Das Gebäude ist an die öffentlichen Leitungen für Kanal, Wasser, Gas und Strom angeschlossen.
Elektroinstallation: Elektrische Brenn- und Anschlussstellen sind dem Baualter entsprechend im durchschnittlichen Umfang vorhanden.
Heizung: Gaszentralheizung mit zentraler Warmwasserbereitung, Wärmeverteilung über Heizkörper.
Tiefgarage: Zufahrt mit Betonverbundsteinpflaster belegt, nicht überdeckt, elektrisch betriebenes Leichtmetalltor, Rampe mit Estrich, Ampelanlage.
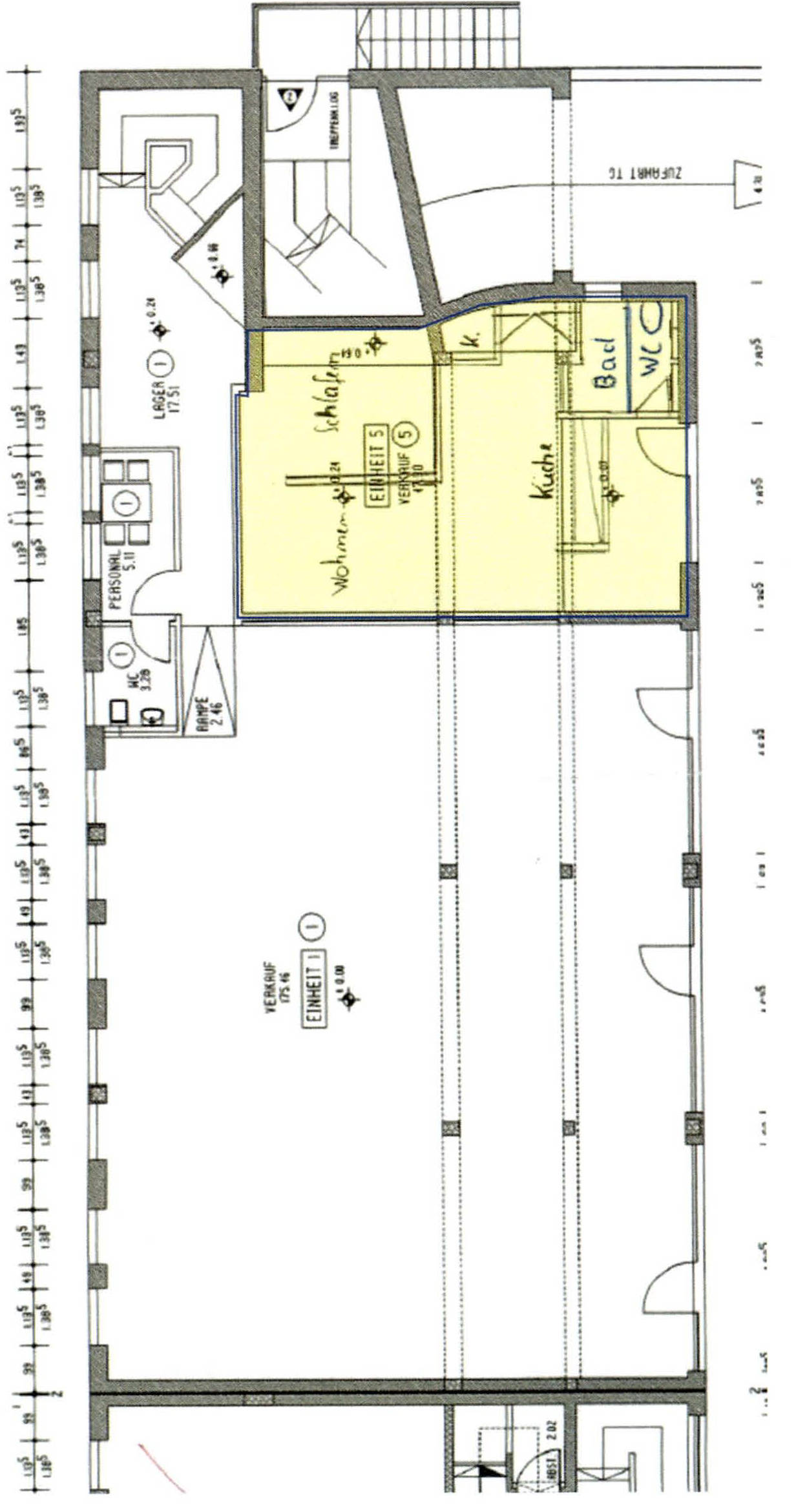
Gewerbeeinheit Nr. 5
Die zu bewertende Gewerbeeinheit Nr. 5 liegt im Erdgeschoss an der Nordostseite des Gebäudes und ist nach Osten in Richtung Goethestraße ausgerichtet. Der Eingang befindet sich an der Ostseite des Gebäudes. Gemäß Aufteilungsplan handelt es sich um eine Gewerbefläche, bestehend aus einem Verkaufsraum (mit Differenzstufe bzw. sog. Höhensprung), Kammer, Vorraum und WC. Wie bereits erwähnt erfolgte die Nutzung zum Wertermittlungsstichtag als "Wohn-Appartement" mit einem gering veränderten Grundriss: Der Verkaufsraum wurde in einen Wohnbereich mit Küchenzeile und einen Schlafbereich aufgeteilt; neben dem WC wurde ein kleines Duschbad eingebaut.
Nutzfläche laut Aufteilungsplan rd. 50,50 m²
Außenanlagen
Keine erkennbare Einfriedung. Hauszugang mit Betonsteinpflaster belegt.
Beurteilung
Die zu bewertende Gewerbeeinheit Nr. 5 wird als Wohnung für Flüchtlinge genutzt. Für Ladenflächen in dieser Lage besteht nur eine sehr eingeschränkte Nachfrage.
Premium-Feature
7 Tage kostenlos TestenAls Eigentümer können Sie uns zusätzliche Informationen zu Ihrer Immobilie zur Verfügung stellen, die potentiellen Interessenten helfen könnten. Dies kann sich positiv auf das Versteigerungsergebnis auswirken.
Kontaktieren Sie uns per E-Mail unter info@zvgscout.com mit dem Kennzeichen: 3 K 104-24 Amtsgericht Landshut.
(Berechnet auf Basis des Verkehrswerts als Zuschlagswert)
(verzinster Betrag: 83.700 €)
Alle Angaben und Berechnungen von ZvgScout sind ohne Gewähr.
Detaillierte Kostenaufstellung & Rechner
Musterstraße 12, 12345 Musterstadt
Supermarkt
Schulweg 8, 12345 Musterstadt
Schule
Bahnhofsplatz 1, 12345 Musterstadt
ÖPNV
Alle oben gemachten Angaben ohne Gewähr. ZvgScout übernimmt keine Haftung für die Richtigkeit und Vollständigkeit der dargestellten Informationen.