Eigentumswohnung
Löschenbrandstraße 22, 84032 Landshut
452.500 €









































Löschenbrandstraße 22, 84032 Landshut
Premium-Feature
7 Tage kostenlos TestenLeichte Feuchtigkeitsschäden im Kellerbereich. Sanierungsbedarf an der Außenfassade.
Premium-Feature
7 Tage kostenlos TestenGrundschuld zugunsten der Sparkasse München. Hypothek über 150.000 €.
Premium-Feature
7 Tage kostenlos TestenPremium-Feature
7 Tage kostenlos TestenPremium-Feature
7 Tage kostenlos TestenDas Gebäude befindet sich in einem guten Zustand. Die Fassade wurde vor kurzem renoviert und zeigt keine größeren Mängel. Das Dach ist intakt und wurde 2018 erneuert.
Die Innenräume sind gepflegt und modernisiert. Böden in gutem Zustand, Elektrik entspricht aktuellen Standards. Küche und Badezimmer wurden vor 5 Jahren erneuert.
Die Innenräume sind gepflegt und modernisiert. Böden in gutem Zustand, Elektrik entspricht aktuellen Standards. Küche und Badezimmer wurden vor 5 Jahren erneuert.
Premium-Feature
7 Tage kostenlos TestenMassivbauweise aus dem Jahr 1985. Ziegeldach mit Betondachsteinen. Keller vorhanden und trocken. Fundament in gutem Zustand ohne erkennbare Setzungsrisse.
Regelmäßige Wartung und Pflege erkennbar. Heizungsanlage wurde 2020 gewartet. Fassade in gutem Zustand, letzte Renovierung 2019. Dachrinnen und Fallrohre intakt.
Energetische Sanierung 2018 durchgeführt. Neue Fenster mit Dreifachverglasung installiert. Dämmung der Außenwände nach EnEV-Standard erneuert.
Keine bekannten Baulasten eingetragen. Grundbuch zeigt keine Belastungen bezüglich Baubeschränkungen oder Durchfahrtsrechte.
Premium-Feature
7 Tage kostenlos TestenAuszug aus dem
Gutachten
des Sachverständigen über den Verkehrswert für Wohnung Nr. 2 im 1. und 2. Dachgeschoss samt Balkon und zwei Kellerräumen, im Aufteilungsplan mit Nr. 2 bezeichnet, sowie Sondernutzungsrechte an Gartenfläche in 84032 Landshut, Löschenbrandstraße 22
Wertermittlungsstichtag: 15.04.2025
Verkehrswert: Wohnung Nr. 2: 430.000 € Verkehrswert gesamt: 392.500€
Hinweis: Zum selben Termin wird ein weiteres Objekt versteigert ( siehe Aktenzeichen 3 K 23/25)
Grundstücksbeschreibung
Sonstige nicht eingetragene Rechte und Lasten am Grundstück Wie bereits erläutert, (siehe 2.2 Teilungserklärung im Gutachten) sind die Sondernutzungsrechte an Garage G1 , Garage G2, Carport C1 und Außenstellplatz S1 als "Gemeinschaftseigentum" wertmäßig zu berücksichtigen.
Mikrolage Der Ortsteil Löschenbrand befindet sich im nordwestlichen Stadtgebiet, westlich des Hauptbahnhofs. (...) Das Wohnhaus mit den zu bewertenden Wohnungen befindet sich an der Löschenbrandstraße (Stadtteil Wolfgang) unmittelbar zur Grenze Stadtteil West und der Flutmulde im Süden. (...) Die umliegende Bebauung besteht überwiegend aus Ein- und Zweifamilienhäusern sowie Doppelhäusern, südlich (rd. 30 m Entfernung) befindet sich die Schio-Brücke, welche die Flutmulde quert. Die Wohnlage ist deutlich durch die Verkehrslärmimmissionen der vorbeiführenden Löschenbrandstraße beeinträchtigt.
Topographie Das Gelände fällt nach Norden leicht ab (die südlich angelegte Gartenfläche liegt knapp 1m höher als die nördliche Hoffläche).
Erschließungszustand Das Eckgrundstück ist ortsüblich durch die ausgebaute Löschenbrandstraße (asphaltierte Straßendecke, beidseitiger Gehweg) und den Weg "An der Flutmulde" (asphaltierter Fahrrad- und Fußgängerweg) sowie durch Kanal, Wasser und Strom erschlossen. Erschließungskosten fielen nach Angabe der Stadtverwaltung Landshut zum Stichtag nicht mehr an.
Überschwemmungsgefährdete Gebiete Das Anwesen mit den zu bewertenden Wohnungen liegt innerhalb eines im Geoportal Bayern ausgewiesenen überschwemmungsgefährdeten Gebietes. Die Hochwassergefahrenflächen HQextrem zeigen, welche Gebiete bei einem Extremhochwasser (seltenes Hochwasser) betroffen sind.
Gebäudebeschreibung
vorhandene Bebauung Die vorhandene Bebauung besteht aus einem Zweifamilienwohnhaus mit Doppelgarage und Carport.
Bauzeit und grundrissliche Gliederung
Bauliche Ausführung (Die Beschreibung gilt für die Wohnung Nr. 1, Wohnung Nr. 2 und das Gemeinschaftseigentum.)
Grundkonstruktion: Massivbauweise; Kellerumfassungswände vermutlich aus Stampfbeton, sonstige Umfassungs- und Zwischenwände vermutlich aus Ziegelmauerwerk (Wandstärke der Umfassungswände (d=30cm); Anbau: Massivbauweise, Umfassungs- und Zwischenwände aus Ziegelmauerwerk (d=30cm; Kommunwand d=17,5cm)
Decken: Altbestand: UG: Betondecke, EG: vermutlich Betondecke, DG: Holzbalkendecke. Anbau: EG: Stahlbetondecke, DG: z.T. Holzbalkendecke, Dachspitz: Sichtdachstuhl.
Dach: Satteldach mit Betonpfannendeckung; westlich eine und östlich zwei Schleppgauben mit seitlicher Kupferblechverkleidung, westlich eine Giebelgaube; Regenrinnen und Fallleitungen aus Kupferblech.
Treppen: Treppenhaus: Betontreppe mit Fliesenbelag, Metallgeländer; interne Treppe / Wohnung Nr. 2: Metallwangentreppe mit Holzstufen und Metallgeländer (Wohnzimmer), leiterartige Holztreppe (Kinderzimmer).
Fenster: Kunststofffenster mit Isolierverglasung, überwiegend Natursteinbänke innen, Alufensterbleche außen; nachträglich eingebaute Kunststoffrollos; Kunststoffdachflächenfenster im Dachgeschoss (z.T. mit Innenbeschattung);
Türen: Hauseingang (überdeckt, Podeststufe ): Leichtmetallkonstruktion mit Isolierverglasung; im Innenbereich Wohnungseingangs- und Innentüren: überwiegend weißbeschichtete Türblätter, Ganzglas-Schiebetüre zwischen Ess- und Wohnzimmer jeweils in Wohnung Nr. 1 und Nr. 2);
Böden: Wohnung Nr. 2: 1.DG: überwiegend Fliesenbelag; in den Schlafräumen: Parkett bzw. Laminat; 2.DG: Korkparkett bzw. Laminat; Treppenhaus: Fliesenbelag;
Decken- und Wandbehandlung: Fassade mit Putz und Anstrich; in Innenbereich: Decken und Wände mit Putz bzw. Strukturputz und gestrichen, Wohnung Nr. 2: Dachschrägen im 1.- und 2.DG: überwiegend mit Gipskarton und Anstrich, teil mit Holzschalung; Treppenhaus: Putz mit Anstrich.
Technische Installation
Hausanschlüsse: Das Gebäude ist an die öffentlichen Leitungen für Wasser, Kanal und Strom angeschlossen.
Elektroinstallation: Elektrische Brenn- und Anschlussstellen sind dem Baualter und der Nutzung entsprechend im üblichen Umfang vorhanden. Klingelanlage.
Sanitärinstallation: Wohnung Nr. 2: Bad: Acrylwanne, Dusche mit Kabine, Doppelwaschtisch mit Unterbau, Hänge-WC mit Unterputz-Spülkasten, Handtuchheizkörper; WC: Hänge-WC mit Unterputz-Spülkasten, Waschbecken; Wasch keller
Heizung: Pellet-Heizungsanalage; Wärmeverteilung überwiegend über Heizkörper, Fußbodenheizung im Wohnzimmer (Wohnung Nr. 1 und Nr. 2); Kachelofen im Wohnzimmer (Wohnung Nr. 2); Funktionsfähigkeit konnte nicht geprüft werden.
Zubehör: Wohnung Nr. 2: Einbauküche (Anschaffungszeit nicht bekannt): Ober- und Unterschränke, Spülbecken, Ceran-Kochfeld , Dunstabzugshaube, Backofen, Geschirrspülmaschine, Mikrowelle, Kühlschrank; Einbauschrank im Kinderzimmer.
Balkon: Holzkonstruktion mit Holzgeländer und Holzwangentreppe zum Garten.
Wintergarten: Holzkonstruktion mit Isolierverglasung;
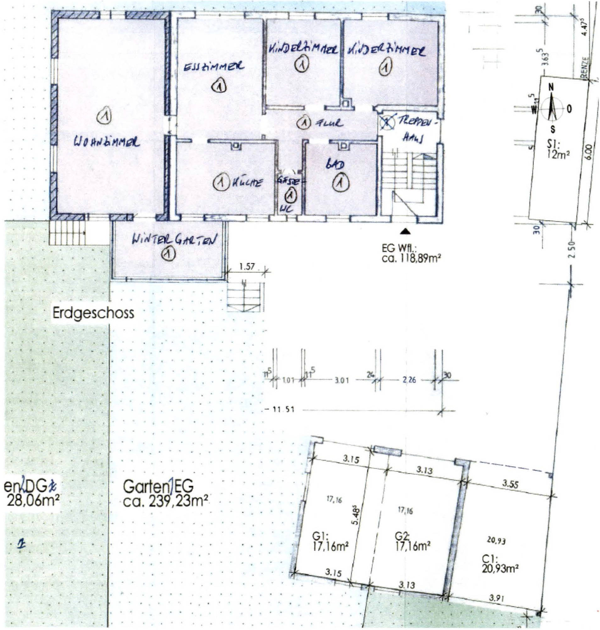
Wohnung Nr. 2
Die 5,5-Zimmer-Wohnung Nr. 2 befindet sich im Dachgeschoss und Dachspitz. Im Dachgeschoss (1 .DG, analog Grundriss EG-Wohnung) sind alle Räume vom innen liegenden Wohnungsflur erschlossen: zwei Schlafräume und Essdiele (jeweils Westausrichtung zur Straße), Wohnzimmer mit "offenen" Dachstuhl (West-/Ost-/Südausrichtung, Zugang über Essdiele), Küche, WC und Bad (jeweils Ostausrichtung). Im Wohnzimmer und Küche befindet sich der Zugang zum Ostbalkon. Im Dachspitz (2.DG) sind zwei Räume (hoher Dachschrägenanteil) und eine Galerie "schlauchartig" angeordnet. Der Zugang erfolgt über eine sehr steile leiterartige Treppe im Kinderzimmer und über eine weitere Treppe im Wohnzimmer.
1.DG-Wohnfläche laut Plan: rd. 100 m²
2.DG-Wohnfläche laut Plan: rd. 41,50 m²
Keller
Im Kellergeschoss (Altbestand) sind vier Abstellräume, Heizungsraum, Pellet-Lagerraum und Flur vorhanden. Wie bereits erläutert, ist der Anbau nicht unterkellert.
Fenster: Keller: Metallfenster z.T. mit einfacher Verglasung und Mäusegitter.
Türen: z.T. feuerhemmende Metalltüren, z.T. einfache Holzbretter-Türen.
Böden: Estrich.
Doppelgarage und Carport
Im nordöstlichen Grundstückseck befindet sich eine Doppelgarage mit zwei Pkw-Stellplätzen und ein Carport.
Doppelgarage Massivbauweise (Wandstärke der Umfassungswände d = 24 cm); Fassade mit Strukturputz und Anstrich; Satteldach mit Betonpfannendeckung, Regenrinnen und Fallleitungen aus Kupferblech, zwei Metallkipptore, Glasbausteinfenster; Estrich, Metallgitterwand als Trennung für zwei Pkw-Stellplätze, Stromanschluss.
Außenanlagen
Premium-Feature
7 Tage kostenlos TestenAls Eigentümer können Sie uns zusätzliche Informationen zu Ihrer Immobilie zur Verfügung stellen, die potentiellen Interessenten helfen könnten. Dies kann sich positiv auf das Versteigerungsergebnis auswirken.
Kontaktieren Sie uns per E-Mail unter info@zvgscout.com mit dem Kennzeichen: 3 K 23-25-1 Amtsgericht Landshut.
(Berechnet auf Basis des Verkehrswerts als Zuschlagswert)
(verzinster Betrag: 407.250 €)
Alle Angaben und Berechnungen von ZvgScout sind ohne Gewähr.
Detaillierte Kostenaufstellung & Rechner
Musterstraße 12, 12345 Musterstadt
Supermarkt
Schulweg 8, 12345 Musterstadt
Schule
Bahnhofsplatz 1, 12345 Musterstadt
ÖPNV
Alle oben gemachten Angaben ohne Gewähr. ZvgScout übernimmt keine Haftung für die Richtigkeit und Vollständigkeit der dargestellten Informationen.
Weitere Eigentumswohnung in ähnlicher Preisklasse