Einfamilienhaus
Sättelstraße 36, 95183 Feilitzsch, Zedtwitz
382.000 €














Sättelstraße 36, 95183 Feilitzsch, Zedtwitz
Premium-Feature
7 Tage kostenlos TestenLeichte Feuchtigkeitsschäden im Kellerbereich. Sanierungsbedarf an der Außenfassade.
Premium-Feature
7 Tage kostenlos TestenGrundschuld zugunsten der Sparkasse München. Hypothek über 150.000 €.
Premium-Feature
7 Tage kostenlos TestenPremium-Feature
7 Tage kostenlos TestenPremium-Feature
7 Tage kostenlos TestenDas Gebäude befindet sich in einem guten Zustand. Die Fassade wurde vor kurzem renoviert und zeigt keine größeren Mängel. Das Dach ist intakt und wurde 2018 erneuert.
Die Innenräume sind gepflegt und modernisiert. Böden in gutem Zustand, Elektrik entspricht aktuellen Standards. Küche und Badezimmer wurden vor 5 Jahren erneuert.
Die Innenräume sind gepflegt und modernisiert. Böden in gutem Zustand, Elektrik entspricht aktuellen Standards. Küche und Badezimmer wurden vor 5 Jahren erneuert.
Premium-Feature
7 Tage kostenlos TestenMassivbauweise aus dem Jahr 1985. Ziegeldach mit Betondachsteinen. Keller vorhanden und trocken. Fundament in gutem Zustand ohne erkennbare Setzungsrisse.
Regelmäßige Wartung und Pflege erkennbar. Heizungsanlage wurde 2020 gewartet. Fassade in gutem Zustand, letzte Renovierung 2019. Dachrinnen und Fallrohre intakt.
Energetische Sanierung 2018 durchgeführt. Neue Fenster mit Dreifachverglasung installiert. Dämmung der Außenwände nach EnEV-Standard erneuert.
Keine bekannten Baulasten eingetragen. Grundbuch zeigt keine Belastungen bezüglich Baubeschränkungen oder Durchfahrtsrechte.
Premium-Feature
7 Tage kostenlos Testen
Grundbucheintragung:
Eingetragen im Grundbuch des Amtsgerichts Hof von Zedtwitz
|
Gemarkung |
Flurstück |
Wirtschaftsart u. Lage |
Anschrift |
Hektar |
Blatt |
|
Zedtwitz |
651/6 |
Gebäude- und Freifläche |
Sättelstraße 36 |
0,0936 |
951 |
Objektbeschreibung/Lage (lt Angabe d. Sachverständigen):
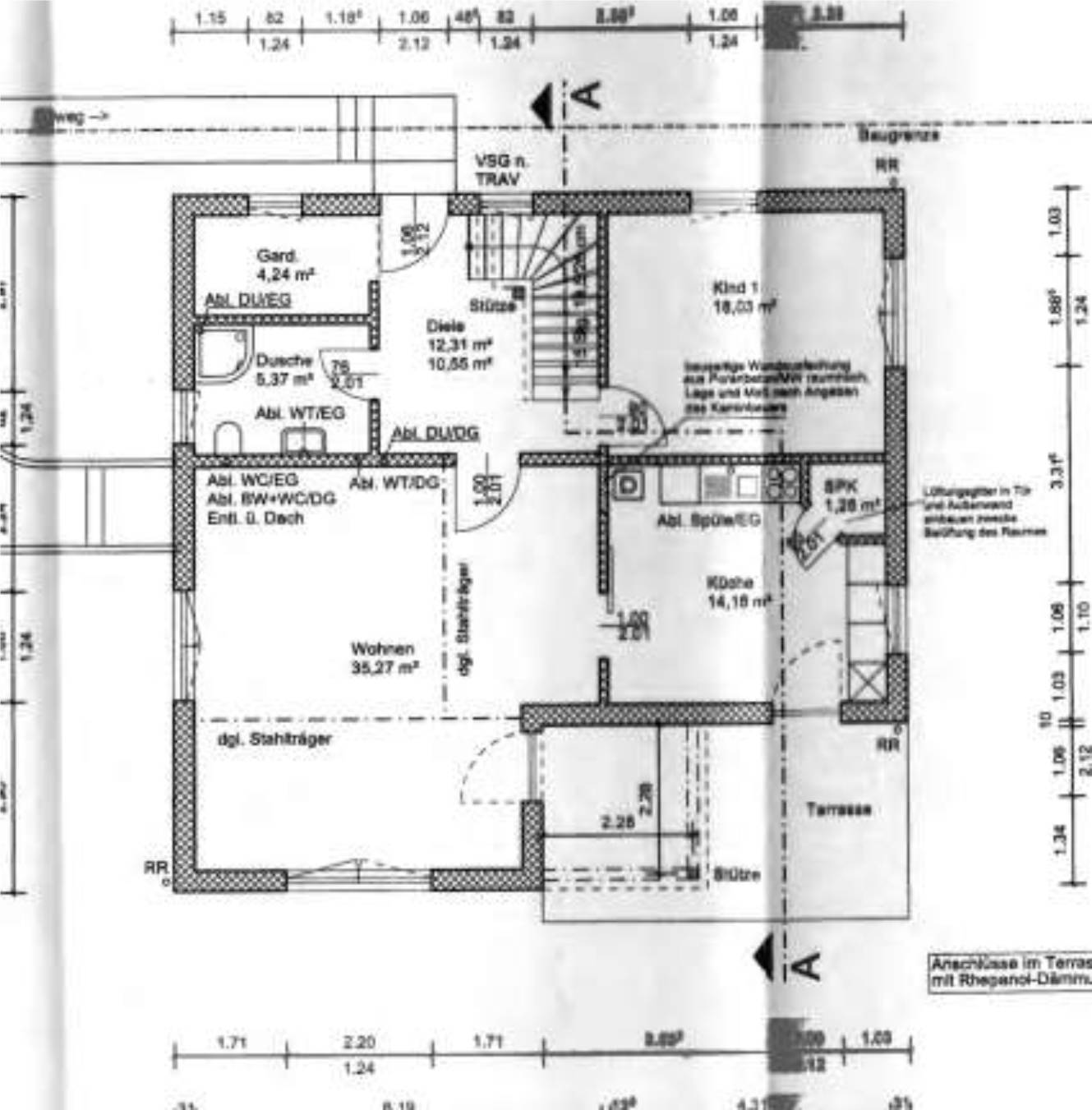
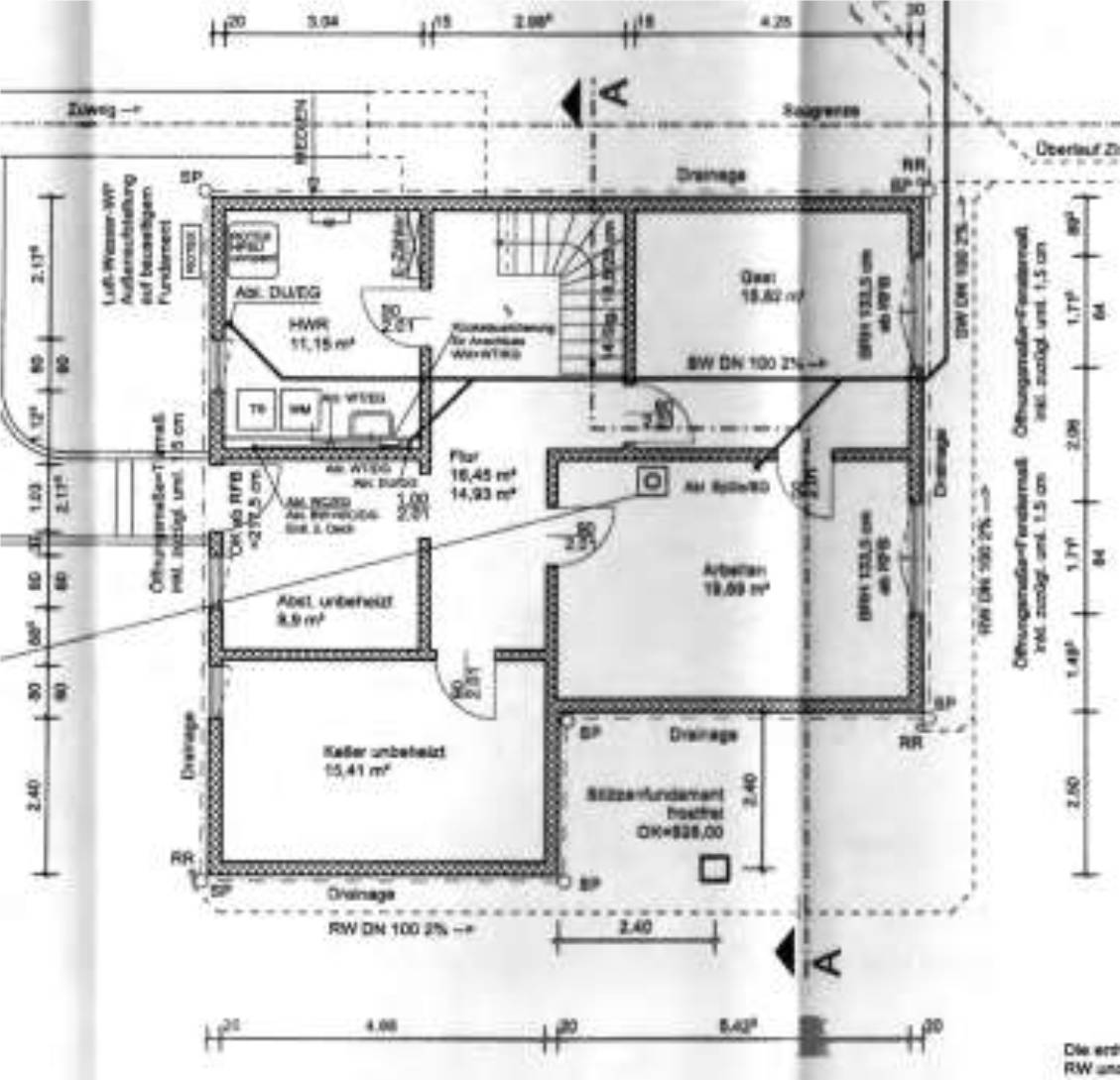
Einfamilienhaus;
Weitere Informationen unter www.zvg-portal.de
Der Versteigerungsvermerk ist am 21.01.2025 in das Grundbuch eingetragen worden.
Aufforderung:
Rechte, die zur Zeit der Eintragung des Versteigerungsvermerks aus dem Grundbuch nicht ersichtlich waren, sind spätestens im Versteigerungstermin vor der Aufforderung zur Abgabe von Geboten anzumelden und, wenn der Gläubiger widerspricht, glaubhaft zu machen, widrigenfalls sie bei der Feststellung des geringsten Gebotes nicht berücksichtigt und bei der Verteilung des Versteigerungserlöses dem Anspruch des Gläubigers und den übrigen Rechten nachgesetzt werden.
Wer ein Recht hat, das der Versteigerung des Grundstücks oder des nach § 55 ZVG mithaftenden Zubehörs entgegensteht, wird aufgefordert, vor der Erteilung des Zuschlags die Aufhebung oder einstweilige Einstellung des Verfahrens herbeizuführen, widrigenfalls für das Recht der Versteigerungserlös an die Stelle des versteigerten Gegenstandes tritt.
Hinweis:
Es ist zweckmäßig, bereits drei Wochen vor dem Termin eine genaue Berechnung der Ansprüche an Kapital, Zinsen und Kosten der Kündigung und der die Befriedigung aus dem Grundstück bezweckenden Rechtsverfolgung mit Angabe des beanspruchten Ranges schriftlich einzureichen oder zu Protokoll der Geschäftsstelle zu erklären.
Dies ist nicht mehr erforderlich, wenn bereits eine Anmeldung vorliegt und keine Änderungen eingetreten sind. Die Ansprüche des Gläubigers gelten auch als angemeldet, soweit sie sich aus dem Zwangsversteigerungsantrag ergeben.
Gemäß §§ 67 - 70 ZVG kann im Versteigerungstermin für ein Gebot Sicherheit verlangt werden.
Die Sicherheit beträgt 10 % des Verkehrswertes und ist sofort zu leisten. Sicherheitsleistung durch Barzahlung ist ausgeschlossen.
Bietvollmachten müssen öffentlich beglaubigt sein.
Premium-Feature
7 Tage kostenlos TestenAls Eigentümer können Sie uns zusätzliche Informationen zu Ihrer Immobilie zur Verfügung stellen, die potentiellen Interessenten helfen könnten. Dies kann sich positiv auf das Versteigerungsergebnis auswirken.
Kontaktieren Sie uns per E-Mail unter info@zvgscout.com mit dem Kennzeichen: K0004-2025-hof.
(Berechnet auf Basis des Verkehrswerts als Zuschlagswert)
(verzinster Betrag: 343.800 €)
Alle Angaben und Berechnungen von ZvgScout sind ohne Gewähr.
Detaillierte Kostenaufstellung & Rechner
Musterstraße 12, 12345 Musterstadt
Supermarkt
Schulweg 8, 12345 Musterstadt
Schule
Bahnhofsplatz 1, 12345 Musterstadt
ÖPNV
Alle oben gemachten Angaben ohne Gewähr. ZvgScout übernimmt keine Haftung für die Richtigkeit und Vollständigkeit der dargestellten Informationen.
Weitere Einfamilienhaus in ähnlicher Preisklasse