Eigentumswohnung (3 bis 4 Zimmer)
Herzogin-Clara-Straße 24, 38442 Wolfsburg-Fallerselben
206.000 €


Herzogin-Clara-Straße 24, 38442 Wolfsburg-Fallerselben
Premium-Feature
7 Tage kostenlos TestenLeichte Feuchtigkeitsschäden im Kellerbereich. Sanierungsbedarf an der Außenfassade.
Premium-Feature
7 Tage kostenlos TestenGrundschuld zugunsten der Sparkasse München. Hypothek über 150.000 €.
Premium-Feature
7 Tage kostenlos TestenPremium-Feature
7 Tage kostenlos TestenPremium-Feature
7 Tage kostenlos TestenDas Gebäude befindet sich in einem guten Zustand. Die Fassade wurde vor kurzem renoviert und zeigt keine größeren Mängel. Das Dach ist intakt und wurde 2018 erneuert.
Die Innenräume sind gepflegt und modernisiert. Böden in gutem Zustand, Elektrik entspricht aktuellen Standards. Küche und Badezimmer wurden vor 5 Jahren erneuert.
Die Innenräume sind gepflegt und modernisiert. Böden in gutem Zustand, Elektrik entspricht aktuellen Standards. Küche und Badezimmer wurden vor 5 Jahren erneuert.
Premium-Feature
7 Tage kostenlos TestenMassivbauweise aus dem Jahr 1985. Ziegeldach mit Betondachsteinen. Keller vorhanden und trocken. Fundament in gutem Zustand ohne erkennbare Setzungsrisse.
Regelmäßige Wartung und Pflege erkennbar. Heizungsanlage wurde 2020 gewartet. Fassade in gutem Zustand, letzte Renovierung 2019. Dachrinnen und Fallrohre intakt.
Energetische Sanierung 2018 durchgeführt. Neue Fenster mit Dreifachverglasung installiert. Dämmung der Außenwände nach EnEV-Standard erneuert.
Keine bekannten Baulasten eingetragen. Grundbuch zeigt keine Belastungen bezüglich Baubeschränkungen oder Durchfahrtsrechte.
Premium-Feature
7 Tage kostenlos TestenSatteldach, gedeckt mit Tonziegeln
Heizung: Zentralheizung über Fernwärmeanschluss, Flachheizkörper mit Thermostatventilen
Warmwasser: Durchlauferhitzer im Bad
Elektroinstallation: Standardausstattung, teilweise 2013 erneuert
Böden: Vinyl, Laminat, Fliesen
Fenster: Kunststofffenster mit Isolierverglasung
Sanitärausstattung: Badewanne, Handwaschbecken, WC
Das Objekt wurde am 10.06.2025 im Rahmen eines Ortstermins besichtigt und begutachtet. Die Bewertung erfolgte unter Einbeziehung von Bauakten, Grundbuchauszug, Katasterunterlagen und weiteren relevanten Dokumenten.
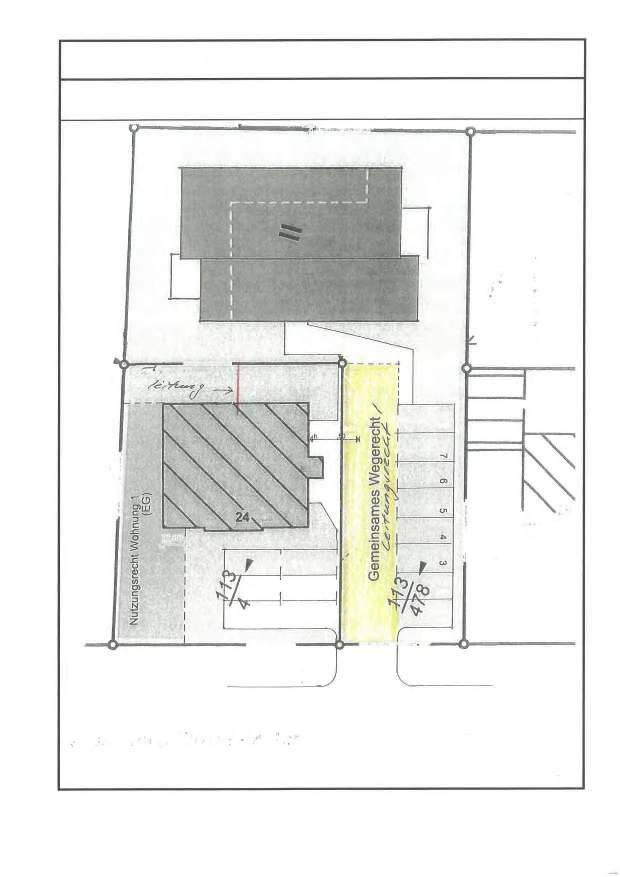
Die Wohnung Nr. 1 liegt im Erdgeschoss eines Mehrfamilienhauses mit insgesamt drei Eigentumswohnungen. Sie verfügt über ca. 102,87 m² Wohnfläche mit folgender Raumaufteilung: Flur, zwei Kinderzimmer, Küche, Wohnzimmer, Bad und Schlafzimmer. Der Grundriss ist bautypisch bis individuell, die Belichtung in den Wohn- und Schlafräumen ist als gut bis ausreichend einzustufen.
Die Bodenbeläge bestehen hauptsächlich aus Vinyl, Laminat bzw. Fliesen. Die Wände und Decken sind verputzt und gestrichen, teilweise mit moderner Einbau- und indirekter Beleuchtung. Die Fenster sind Kunststofffenster mit Isolierverglasung, die Türen meist originale Vollholztüren. Das Bad ist mit einer Badewanne, Waschbecken und WC ausgestattet. Die Einbauküche ist von mittlerer bis guter Qualität. Der allgemeine Zustand der Wohnung ist normal, kleinere Schimmelstellen wurden behandelt, temporärer Schädlingsbefall ("Papierfischchen") wird angegeben. Zur Wohnung gehört ein Kellerraum mit etwa 10 m².
Das Gebäude wurde ca. 1904 errichtet, fiktives Baujahr durch Modernisierungen 1976, zweigeschossig mit ausgebautem Dachgeschoss, massiv gebaut, halb unterkellert. Die Außenfassade besteht aus Klinkermauerwerk, die Decken sind als Kappendecken (KG) bzw. Holzbalkendecken ausgeführt. Die Erschließung ist vollständig vorhanden. Instandsetzungs- und Modernisierungsmaßnahmen umfassen unter anderem Erneuerung des Daches (2013), Umstellung auf Fernwärme, Sanierung der Bäder (2013, 2022), Bodenbeläge und Elektroinstallation, neue Fensterelemente und Hauseingangstür. Ein Fahrstuhl ist nicht vorhanden, das Treppenhaus ist teilweise original, teilweise modernisiert.
Die Außenanlagen umfassen Einfriedungen aus Stabmattenzaun, befestigte Hoffläche mit Betonverbundsteinen sowie Gartenanlagen. Zum Sondereigentum gehört ein Doppel-Stellplatz sowie das Sondernutzungsrecht an einem nördlichen Grundstücksstreifen.
Zum Wertermittlungs-Stichtag war die Wohnung vermietet und wurde als Wohnraum genutzt. Die Wohnung ist inzwischen nicht mehr vermietet, sondern leerstehend.
Satteldach, gedeckt mit Tonziegeln
Heizung: Zentralheizung über Fernwärmeanschluss, Flachheizkörper mit Thermostatventilen
Warmwasser: Durchlauferhitzer im Bad
Elektroinstallation: Standardausstattung, teilweise 2013 erneuert
Böden: Vinyl, Laminat, Fliesen
Fenster: Kunststofffenster mit Isolierverglasung
Sanitärausstattung: Badewanne, Handwaschbecken, WC
Verkehrswert: 206.000 EUR
Premium-Feature
7 Tage kostenlos TestenAls Eigentümer können Sie uns zusätzliche Informationen zu Ihrer Immobilie zur Verfügung stellen, die potentiellen Interessenten helfen könnten. Dies kann sich positiv auf das Versteigerungsergebnis auswirken.
Kontaktieren Sie uns per E-Mail unter info@zvgscout.com mit dem Kennzeichen: 19 K 2-25-4-zimmer-wohnung-1126321.
(Berechnet auf Basis des Verkehrswerts als Zuschlagswert)
(verzinster Betrag: 185.400 €)
Alle Angaben und Berechnungen von ZvgScout sind ohne Gewähr.
Detaillierte Kostenaufstellung & Rechner
Musterstraße 12, 12345 Musterstadt
Supermarkt
Schulweg 8, 12345 Musterstadt
Schule
Bahnhofsplatz 1, 12345 Musterstadt
ÖPNV
Alle oben gemachten Angaben ohne Gewähr. ZvgScout übernimmt keine Haftung für die Richtigkeit und Vollständigkeit der dargestellten Informationen.