Eigentumswohnung (3 bis 4 Zimmer)
Cranzer Straße 1, 21680 Stade
86.000 €













Cranzer Straße 1, 21680 Stade
Premium-Feature
7 Tage kostenlos TestenLeichte Feuchtigkeitsschäden im Kellerbereich. Sanierungsbedarf an der Außenfassade.
Premium-Feature
7 Tage kostenlos TestenGrundschuld zugunsten der Sparkasse München. Hypothek über 150.000 €.
Premium-Feature
7 Tage kostenlos TestenPremium-Feature
7 Tage kostenlos TestenPremium-Feature
7 Tage kostenlos TestenDas Gebäude befindet sich in einem guten Zustand. Die Fassade wurde vor kurzem renoviert und zeigt keine größeren Mängel. Das Dach ist intakt und wurde 2018 erneuert.
Die Innenräume sind gepflegt und modernisiert. Böden in gutem Zustand, Elektrik entspricht aktuellen Standards. Küche und Badezimmer wurden vor 5 Jahren erneuert.
Die Innenräume sind gepflegt und modernisiert. Böden in gutem Zustand, Elektrik entspricht aktuellen Standards. Küche und Badezimmer wurden vor 5 Jahren erneuert.
Premium-Feature
7 Tage kostenlos TestenMassivbauweise aus dem Jahr 1985. Ziegeldach mit Betondachsteinen. Keller vorhanden und trocken. Fundament in gutem Zustand ohne erkennbare Setzungsrisse.
Regelmäßige Wartung und Pflege erkennbar. Heizungsanlage wurde 2020 gewartet. Fassade in gutem Zustand, letzte Renovierung 2019. Dachrinnen und Fallrohre intakt.
Energetische Sanierung 2018 durchgeführt. Neue Fenster mit Dreifachverglasung installiert. Dämmung der Außenwände nach EnEV-Standard erneuert.
Keine bekannten Baulasten eingetragen. Grundbuch zeigt keine Belastungen bezüglich Baubeschränkungen oder Durchfahrtsrechte.
Premium-Feature
7 Tage kostenlos TestenDas Objekt wurde am Wertermittlungsstichtag nur von außen besichtigt. Die Bewertung der Wohnung erfolgte auf Grundlage der Außenbesichtigung, Unterlagen und Annahmen, da eine Innenbesichtigung nicht möglich war.
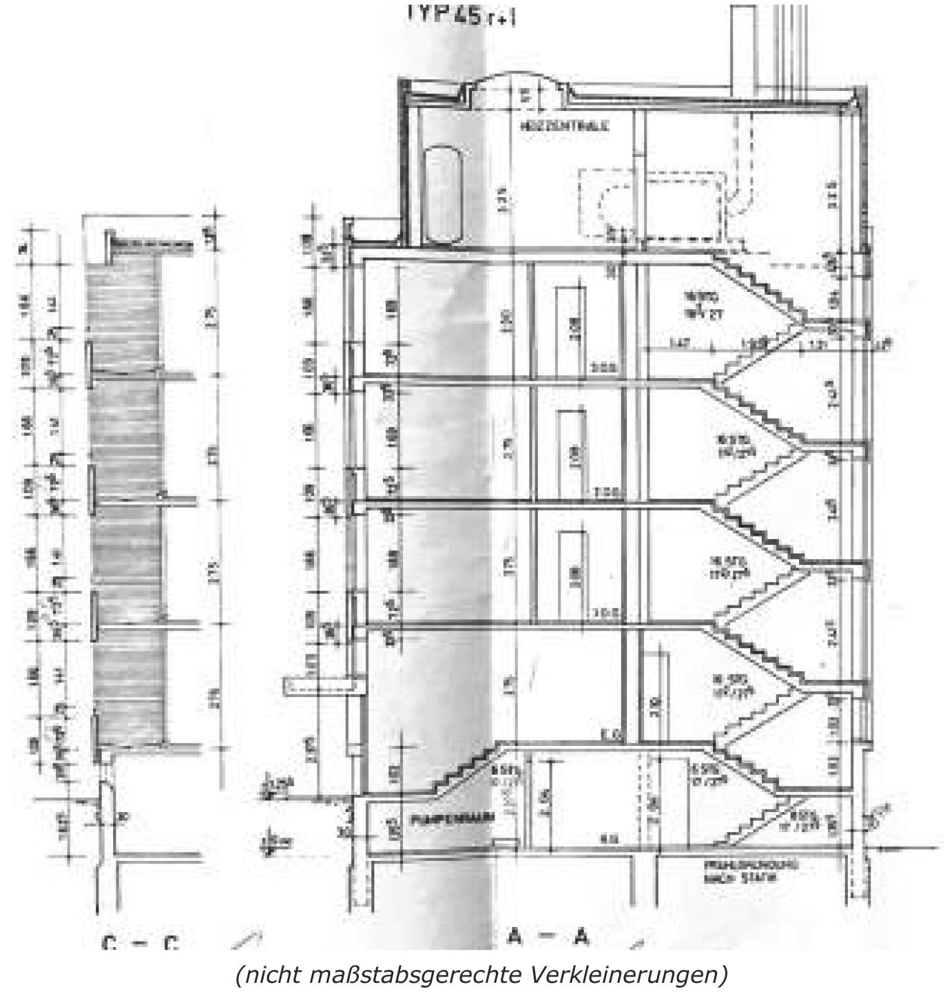
Die Wohnung befindet sich im 3. Geschoss (2. OG links) und verfügt über circa 89 m² Wohnfläche. Sie besteht aus Wohn-/Esszimmer, Schlafzimmer, zwei weiteren Zimmern, Küche, Abstellraum, Bad/WC, separatem WC, Flur, Diele/Garderobe sowie zwei Loggien/Balkonen. Die Raumaufteilung ist marktüblich, der Grundriss zweckmäßig gestaltet und bietet durch die Balkone eine gute Belichtung. Die Wohnung wird als einfach bis mittel ausgestattet eingeschätzt. Ein zugeordneter Abstellraum im Keller ist vorhanden. Aufgrund fehlender Innenbesichtigung können zum Zustand der Wohnung keine abschließenden Angaben gemacht werden.
Das Gebäude wurde 1974 in Massivbauweise auf Pfahlgründung errichtet und umfasst sieben Eingänge mit insgesamt 56 Wohnungen. Jede Etage ist mit zwei Wohnungen belegt. Das Gebäude verfügt über Keller, Hochparterre und drei Obergeschosse. Die Fassade ist ein Sicht-/Verblendmauerwerk, die Fenster (2004 erneuert) sind aus Kunststoff mit Zweischeibenverglasung. Ein Aufzug ist nicht vorhanden. Die Beheizung erfolgt über Fernwärme. Die Instandhaltung des Gemeinschaftseigentums wurde regelmäßig durchgeführt. Der Zustand des Gebäudes ist dem Baujahr entsprechend gepflegt, eine normale Instandhaltung ist erkennbar.
Zum Wertermittlungs-Stichtag war das Objekt offenbar eigengenutzt.
Verkehrswert: 86.000,00 €
Premium-Feature
7 Tage kostenlos TestenAls Eigentümer können Sie uns zusätzliche Informationen zu Ihrer Immobilie zur Verfügung stellen, die potentiellen Interessenten helfen könnten. Dies kann sich positiv auf das Versteigerungsergebnis auswirken.
Kontaktieren Sie uns per E-Mail unter info@zvgscout.com mit dem Kennzeichen: 71 K 4-25-4-zimmer-eigentumswohnung-1125035.
(Berechnet auf Basis des Verkehrswerts als Zuschlagswert)
(verzinster Betrag: 77.400 €)
Alle Angaben und Berechnungen von ZvgScout sind ohne Gewähr.
Detaillierte Kostenaufstellung & Rechner
Musterstraße 12, 12345 Musterstadt
Supermarkt
Schulweg 8, 12345 Musterstadt
Schule
Bahnhofsplatz 1, 12345 Musterstadt
ÖPNV
Alle oben gemachten Angaben ohne Gewähr. ZvgScout übernimmt keine Haftung für die Richtigkeit und Vollständigkeit der dargestellten Informationen.