Sonstiges, Wohnungseigentum mit Garage in einem Zweifamilienwohnhaus
Hechelscheid 43/43a, 52152 Simmerath, Steckenborn
110.000 €









































Hechelscheid 43/43a, 52152 Simmerath, Steckenborn
Premium-Feature
7 Tage kostenlos TestenLeichte Feuchtigkeitsschäden im Kellerbereich. Sanierungsbedarf an der Außenfassade.
Premium-Feature
7 Tage kostenlos TestenGrundschuld zugunsten der Sparkasse München. Hypothek über 150.000 €.
Premium-Feature
7 Tage kostenlos TestenPremium-Feature
7 Tage kostenlos TestenPremium-Feature
7 Tage kostenlos TestenDas Gebäude befindet sich in einem guten Zustand. Die Fassade wurde vor kurzem renoviert und zeigt keine größeren Mängel. Das Dach ist intakt und wurde 2018 erneuert.
Die Innenräume sind gepflegt und modernisiert. Böden in gutem Zustand, Elektrik entspricht aktuellen Standards. Küche und Badezimmer wurden vor 5 Jahren erneuert.
Die Innenräume sind gepflegt und modernisiert. Böden in gutem Zustand, Elektrik entspricht aktuellen Standards. Küche und Badezimmer wurden vor 5 Jahren erneuert.
Premium-Feature
7 Tage kostenlos TestenMassivbauweise aus dem Jahr 1985. Ziegeldach mit Betondachsteinen. Keller vorhanden und trocken. Fundament in gutem Zustand ohne erkennbare Setzungsrisse.
Regelmäßige Wartung und Pflege erkennbar. Heizungsanlage wurde 2020 gewartet. Fassade in gutem Zustand, letzte Renovierung 2019. Dachrinnen und Fallrohre intakt.
Energetische Sanierung 2018 durchgeführt. Neue Fenster mit Dreifachverglasung installiert. Dämmung der Außenwände nach EnEV-Standard erneuert.
Keine bekannten Baulasten eingetragen. Grundbuch zeigt keine Belastungen bezüglich Baubeschränkungen oder Durchfahrtsrechte.
Premium-Feature
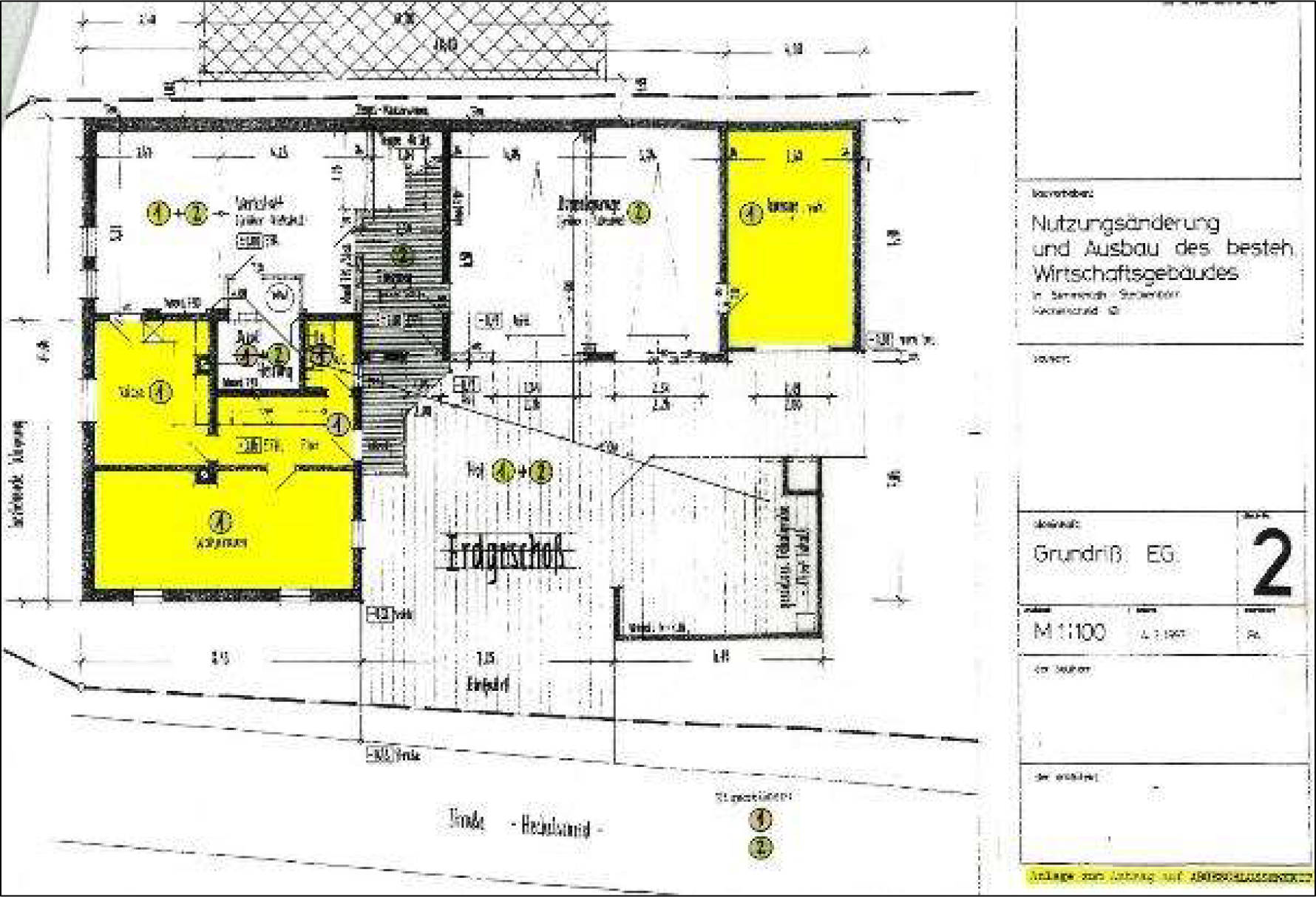
7 Tage kostenlos TestenEs handelt sich um Wohnungseigentum mit Garage in einem Zweifamilienwohnhaus. Das 719 m² große bebaute Grundstück befindet sich in 52152 Simmerath, Hechelscheid 43/43a. Die Bebauung besteht aus einer vermutlich 1923 errichteten ehemaligen Hofstelle. Das Gebäude ist zweigeschossig mit Teilunterkellerung und überwiegend ausgebauten Dachgeschoss.
Die zu versteigernde Eigentumswohnung befindet sich im früheren Wohnteil der ehemaligen Hofstelle. Die sachverständig ermittelte Wohnfläche beträgt ca. 102 m². Zu dem Sondereigentum gehört eine Garage. Es besteht sowohl an dem Sondereigentum als auch am gemeinschaftlichen Eigentum ein Investitionsbedarf.
Es wird auf folgendes hingewiesen:
Die Örtlichkeit weicht von der Teilungserklärung und den Aufteilungsplänen in folgenden Bereichen ab:
Der Eingangsvorbau zu der Wohnung 1 ist nicht mit Nr. 1 gekennzeichnet und ist daher gemeinschaftliches Eigentum.
Das ausgebaute Dachgeschoss über dem Obergeschoss der Wohnung 1 ist nicht mit Nr. 1 gekennzeichnet und ist daher gemeinschaftliches Eigentum.
Das nach der Teilungserklärung ausgebaute Dachgeschoss über dem Obergeschoss der Wohnung 2 ist nicht mit Nr. 2 gekennzeichnet und ist daher gemeinschaftliches Eigentum Eine Baugenehmigung liegt vor.
Ein nach der Teilungserklärung im Erdgeschoss an die Garage 1 angebauter Pferdestall (Nutzer Eigentümer Wohnung 2) ist keinem Sondereigentum zugewiesen und ist daher gemeinschaftliches Eigentum. Eine Baugenehmigung liegt vor.
Ein nach der Teilungserklärung errichteter Paddock vor dem Pferdestall ist keinem Sondereigentum zugewiesen und ist daher gemeinschaftliches Eigentum.
Ein vorhandener Carport ist keinem Sondereigentum zugewiesen und ist daher gemeinschaftliches Eigentum.
Sondernutzugsrechte sind nicht vereinbart.
Ein im Keller der Wohnung 1 installierter Festbrennstoffkessel ist außer Betrieb. Die Beheizung erfolgt derzeit über eine ölbefeuerte Zentralheizung (Standort Heizraum Erdgeschoss – gemeinschaftliches Eigentum).
Im Keller des Wohnungseigentums 1 befindet sich die Wasseruhr für das gesamte
Anwesen. Die Wohnung 2 verfügt über einen Zwischenzähler.
Vor einer vermögenswirksamen Disposition wird dringend empfohlen die Teilungserklärung und die Aufteilungspläne einzusehen.
Premium-Feature
7 Tage kostenlos TestenAls Eigentümer können Sie uns zusätzliche Informationen zu Ihrer Immobilie zur Verfügung stellen, die potentiellen Interessenten helfen könnten. Dies kann sich positiv auf das Versteigerungsergebnis auswirken.
Kontaktieren Sie uns per E-Mail unter info@zvgscout.com mit dem Kennzeichen: 0013K0001-2025-monschau.
(Berechnet auf Basis des Verkehrswerts als Zuschlagswert)
(verzinster Betrag: 99.000 €)
Alle Angaben und Berechnungen von ZvgScout sind ohne Gewähr.
Detaillierte Kostenaufstellung & Rechner
Musterstraße 12, 12345 Musterstadt
Supermarkt
Schulweg 8, 12345 Musterstadt
Schule
Bahnhofsplatz 1, 12345 Musterstadt
ÖPNV
Alle oben gemachten Angaben ohne Gewähr. ZvgScout übernimmt keine Haftung für die Richtigkeit und Vollständigkeit der dargestellten Informationen.