Einfamilienhaus, Einliegerwohnung
Sonnenstraße 4a, 56864 Bad Bertrich
220.000 €

























Sonnenstraße 4a, 56864 Bad Bertrich
Premium-Feature
7 Tage kostenlos TestenLeichte Feuchtigkeitsschäden im Kellerbereich. Sanierungsbedarf an der Außenfassade.
Premium-Feature
7 Tage kostenlos TestenGrundschuld zugunsten der Sparkasse München. Hypothek über 150.000 €.
Premium-Feature
7 Tage kostenlos TestenPremium-Feature
7 Tage kostenlos TestenPremium-Feature
7 Tage kostenlos TestenDas Gebäude befindet sich in einem guten Zustand. Die Fassade wurde vor kurzem renoviert und zeigt keine größeren Mängel. Das Dach ist intakt und wurde 2018 erneuert.
Die Innenräume sind gepflegt und modernisiert. Böden in gutem Zustand, Elektrik entspricht aktuellen Standards. Küche und Badezimmer wurden vor 5 Jahren erneuert.
Die Innenräume sind gepflegt und modernisiert. Böden in gutem Zustand, Elektrik entspricht aktuellen Standards. Küche und Badezimmer wurden vor 5 Jahren erneuert.
Premium-Feature
7 Tage kostenlos TestenMassivbauweise aus dem Jahr 1985. Ziegeldach mit Betondachsteinen. Keller vorhanden und trocken. Fundament in gutem Zustand ohne erkennbare Setzungsrisse.
Regelmäßige Wartung und Pflege erkennbar. Heizungsanlage wurde 2020 gewartet. Fassade in gutem Zustand, letzte Renovierung 2019. Dachrinnen und Fallrohre intakt.
Energetische Sanierung 2018 durchgeführt. Neue Fenster mit Dreifachverglasung installiert. Dämmung der Außenwände nach EnEV-Standard erneuert.
Keine bekannten Baulasten eingetragen. Grundbuch zeigt keine Belastungen bezüglich Baubeschränkungen oder Durchfahrtsrechte.
Premium-Feature
7 Tage kostenlos TestenAuszug aus dem
Gutachten
des Sachverständigen über den Verkehrswert für das mit einem Einfamilienhaus mit Einliegerwohnung bebaute Grundstück in 56864 Bad Bertrich, Sonnenstraße 4a
Wertermittlungsstichtag: 04.09.2025
Verkehrswert: 220.000,00€
Grundstücksbeschreibung
innerörtliche Lage: Das Bewertungsobjekt liegt am nördlichen Rand von Bad Bertrich an der Sonnenstraße in einer Höhenlage, die eine gute Aussicht nach Südosten ermöglicht. Geschäfte des täglichen Bedarfs sind in Lutzerath und Zell vorhanden. Weiterführende Schulen gibt es in Lutzerath oder Ulmen (Realschule Plus) sowie in Zell (Integrierte Gesamtschule). Die Verbandsgemeindeverwaltung befindet sich in Ulmen. Öffentliche Verkehrs-mittel (Bushaltestellen) sind in fußläufiger Entfernung vorhanden (Haltestellen „Schwanenteich" und „Kurzentrum", jeweils 650 m entfernt).
Bei der Lage des Bewertungsobjekts handelt es sich um eine gute Wohnlage. Als Geschäftslage ist die Lage nicht geeignet.
Art der Bebauung und Nutzungen in der Straße und im Ortsteil: Im Umfeld des Bewertungsgrundstücks befinden sich gastgewerbliche sowie wohnbauliche Nutzungen; überwiegend aufgelockerte, zweigeschossige Bauweise; im Nordwesten grenzt das Bewertungsgrundstück an unbebaute Baugrundstücke ; Hinweise: Unmittelbar angrenzend befindet sich ein Haus der Deutschen Venen-Akademie, das jedoch seit dem 1. Januar 2022 ungenutzt ist. In der unmittelbaren Nachbarschaft ist ebenso ein Kindergarten vorhanden.
Topografie: Hanglage; von der Straße nach Nordwesten ansteigend, rd. 195 m ü.NN
Erschließung, Baugrund etc.
Straßenart: Anliegerstraße (Sackgasse); Straße mit geringem Verkehr
Straßenausbau: voll ausgebaut, Fahrbahn aus Bitumen; Gehwege nicht vorhanden
Stromversorgung: Das zu bewertende Grundstück ist an das öffentliche Stromversorgungsnetz angeschlossen. Die Anbindung erfolgt über ein Erdkabel.
Wasserversorgung: Laut schriftlicher Mitteilung der Verbandsgemeindeverwaltung Ulmen vom 09.09.2025 ist das Grundstück an die öffentliche Wasserversorgung angebunden.
Abwasserbeseitigung: Nach schriftlicher Mitteilung der Verbandsgemeindeverwaltung Ulmen vom 09.09.2025 ist das Grundstück an die öffentliche Abwasserbeseitigung angebunden.
Breitbandanschluss: Laut schriftlicher Auskunft der Kreiswerke in Cochem vom 24.09.2025 verfügt das Grundstück über keinen Breitbandanschluss (Glasfaser). Bad Bertrich wird im nächsten Jahr durch GlasfaserPlus (Netzbetreiber Deutsche Telekom) eigenwirtschaftlich ausgebaut. Sofern an der Adresse ein kostenfreier Glasfaseranschluss gewünscht ist, muss der Eigentümer vor der Bauphase über die Deutsche Telekom aktiv werden.
Grenzverhältnisse, nachbarliche Gemeinsamkeiten: keine Grenzbebauung des Wohnhauses; rückwärtiger Grundstücksteil durch Zaun eingefriedet
Baugrund, Grundwasser (soweit augenscheinlich ersichtlich) und Einflüsse durch Starkregen: Es handelt sich um gewachsenen, normal tragfähigen Baugrund. Eine unmittelbare Gefahr durch Hochwasser besteht nicht. Es ist jedoch nicht auszuschließen, dass das Grundstück bei außergewöhnlichen oder extremen Starkregenereignissen von der Bergseite aus durch den gebündelten Abfluss von Niederschlagswasser beeinträchtigt werden kann.
Gebäudebeschreibung
Einfamilienhaus mit Einliegerwohnung
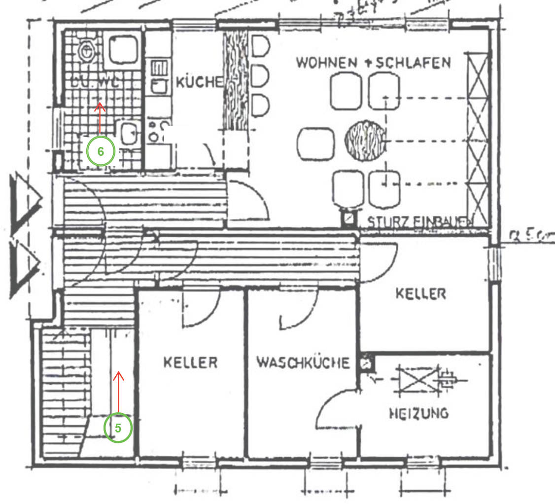
Gebäudeart: Einfamilienhaus mit Einliegerwohnung im Erdgeschoss; zweigeschossig; Keller im rückwärtigen Bereich der Erdgeschossebene; der Dachraum ist nicht ausgebaut
Baujahr: um 1983 (unter Berücksichtigung der Erstellung der Bauantragsunterlagen)
Energieeffizienz: Ein Energieausweis liegt nicht vor.
Außenansicht: rau verputzt (Kunstharzputz) und gestrichen (leichter Unterhaltungsstau und leichte Rissbildungen); Sockel Kunststoffputz
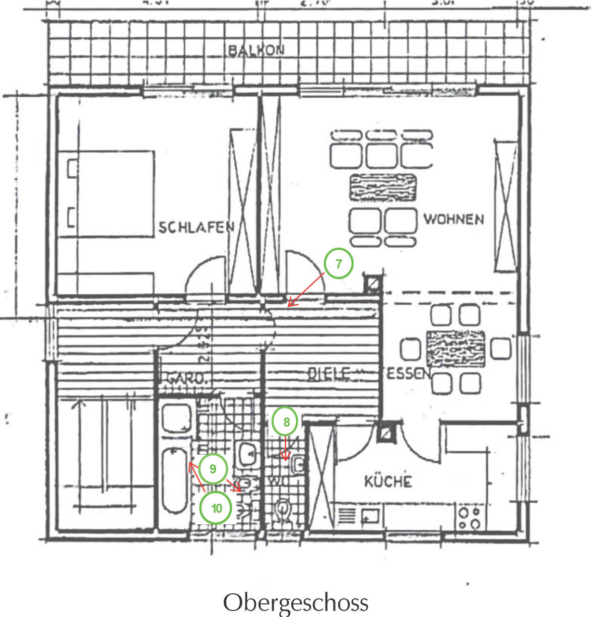
Nutzungseinheiten, Raumaufteilung
Gebäudekonstruktion
Konstruktionsart: Massivbau
Fundamente: Beton
Umfassungswände: Mauerwerk, Bisotherm im Wohnbereich, Kellersteine im Kellerbereich (gemäß Baubeschreibung aus den Bauantragsunterlagen)
Innenwände: Mauerwerk, Bimsstein (gemäß Baubeschreibung aus den Bauantragsunterlagen)
Geschossdecken: Stahlbeton mit Estrichbelag (gemäß Baubeschreibung aus den Bauantragsunterlagen)
Treppen:
Hauseingang(sbereich):
Eingangstür aus Holz, mit Lichtausschnitt (Standard um 1983), Hauseingang gepflegt
Dach:
Allgemeine technische Gebäudeausstattung
Elektroinstallation: durchschnittliche Ausstattung; im Obergeschoss Gegensprechanlage und Türöffner vorhanden
Heizung: Zentralheizung, Gaskessel aus den 1980er Jahren; zusätzlicher Kaminanschluss für einen Ofen im Wohnzimmer im OG; tlw. Stahlradiatoren und tlw. Flachheizkörper mit Thermostatventilen
Warmwasserversorgung: zentral über Heizung
Raumausstattungen und Ausbauzustand
Bodenbeläge: Laminat (tlw. leichte Stoßschäden); Küchen: Laminat; WC, Bäder: Fliesen, im Bad im OG Laminat in Holzoptik; Treppenraum: Steinplatten; Balkon: Spaltplatten
Wandbekleidungen: Raufaser auf Putz; tlw. Verblender in Bruchsteinoptik im Bereich des Kamins und einer weiteren Wand im Wohnzimmer im OG; Küchen: Fliesen an Objektwand; sonst Raufaser; WC, Bäder: Fliesen, im Gäste-WC (OG) ca. 1,50 m hoch, darüber Raufaser, sonst Fliesen raumhoch
Deckenbekleidungen: verputzt und gestrichen, überwiegend mit Raufaser
Fenster: Fenster und Fenstertüren aus Holz (außen tlw. erheblicher Unterhaltungsstau) mit Isolierverglasung (mittlerer Standard um 1983); Rollläden aus Kunststoff; Fensterbänke innen aus Naturstein, außen aus Aluminium
Türen:
Sanitäre Installation
besondere Einrichtungen: keine vorhanden
Küchenausstattung Nicht in der Wertermittlung enthalten.
besondere Bauteile: Balkon mit Geländer
Bauschäden und Baumängel: leichte Rissbildungen im Bereich der Außenmauern; der Kamin für den Ofen ist im Bereich des Kellers schadhaft (Rissbildungen) und versottet augenscheinlich
wirtschaftliche Wertminderungen: keine
Allgemeinbeurteilung: Der bauliche Zustand ist gut. Es besteht jedoch Unterhaltungsstau an Teilen der Außengewerke (Holzfenster und -fenstertüren sowie Dachrinnen). Für die Wertermittlung ist zu unterstellen, dass gemäß GEG die oberste Geschossdecke bzw. die Dachfläche gedämmt und der Gaskessel erneuert werden.
Nebengebäude
Außenanlagen
Versorgungs- und Entwässerungsanlagen vom Hausanschluss bis an das öffentliche Netz, Stützmauern, Wegebefestigung, befestigte Stellplatzfläche unter dem Carport, Terrassen im Erd- und Obergeschoss; Einfriedungen, Gartenanlagen und Pflanzungen
Premium-Feature
7 Tage kostenlos TestenAls Eigentümer können Sie uns zusätzliche Informationen zu Ihrer Immobilie zur Verfügung stellen, die potentiellen Interessenten helfen könnten. Dies kann sich positiv auf das Versteigerungsergebnis auswirken.
Kontaktieren Sie uns per E-Mail unter info@zvgscout.com mit dem Kennzeichen: 13 K 13-24.
(Berechnet auf Basis des Verkehrswerts als Zuschlagswert)
(verzinster Betrag: 198.000 €)
Alle Angaben und Berechnungen von ZvgScout sind ohne Gewähr.
Detaillierte Kostenaufstellung & Rechner
Musterstraße 12, 12345 Musterstadt
Supermarkt
Schulweg 8, 12345 Musterstadt
Schule
Bahnhofsplatz 1, 12345 Musterstadt
ÖPNV
Alle oben gemachten Angaben ohne Gewähr. ZvgScout übernimmt keine Haftung für die Richtigkeit und Vollständigkeit der dargestellten Informationen.