Mit einem Wohnhaus (ca. 2018 erbaut) bebautes Grundstück in Stadtlage von Bad Ems
Oberer Flurweg 19, 56130 Bad Ems
740.000 €


























Oberer Flurweg 19, 56130 Bad Ems
Premium-Feature
7 Tage kostenlos TestenLeichte Feuchtigkeitsschäden im Kellerbereich. Sanierungsbedarf an der Außenfassade.
Premium-Feature
7 Tage kostenlos TestenGrundschuld zugunsten der Sparkasse München. Hypothek über 150.000 €.
Premium-Feature
7 Tage kostenlos TestenPremium-Feature
7 Tage kostenlos TestenPremium-Feature
7 Tage kostenlos TestenDas Gebäude befindet sich in einem guten Zustand. Die Fassade wurde vor kurzem renoviert und zeigt keine größeren Mängel. Das Dach ist intakt und wurde 2018 erneuert.
Die Innenräume sind gepflegt und modernisiert. Böden in gutem Zustand, Elektrik entspricht aktuellen Standards. Küche und Badezimmer wurden vor 5 Jahren erneuert.
Die Innenräume sind gepflegt und modernisiert. Böden in gutem Zustand, Elektrik entspricht aktuellen Standards. Küche und Badezimmer wurden vor 5 Jahren erneuert.
Premium-Feature
7 Tage kostenlos TestenMassivbauweise aus dem Jahr 1985. Ziegeldach mit Betondachsteinen. Keller vorhanden und trocken. Fundament in gutem Zustand ohne erkennbare Setzungsrisse.
Regelmäßige Wartung und Pflege erkennbar. Heizungsanlage wurde 2020 gewartet. Fassade in gutem Zustand, letzte Renovierung 2019. Dachrinnen und Fallrohre intakt.
Energetische Sanierung 2018 durchgeführt. Neue Fenster mit Dreifachverglasung installiert. Dämmung der Außenwände nach EnEV-Standard erneuert.
Keine bekannten Baulasten eingetragen. Grundbuch zeigt keine Belastungen bezüglich Baubeschränkungen oder Durchfahrtsrechte.
Premium-Feature
7 Tage kostenlos TestenDas Objekt wurde am 20.02.2025 von außen besichtigt; ein Zugang zum Gebäudeinneren war nicht möglich, und das Grundstück konnte nur teilweise betreten werden. Die Bewertung basiert im Wesentlichen auf den von außen gewonnenen Eindrücken und auf verfügbaren Bauunterlagen.
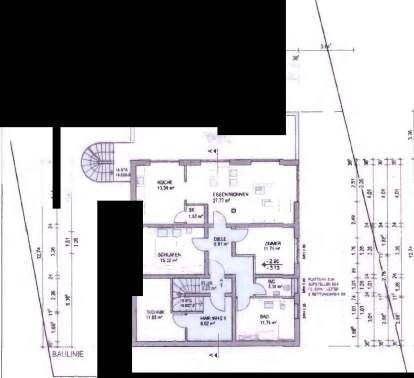
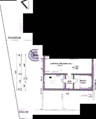
Das Wohnhaus wurde ca. 2018 in massiver Bauweise auf einem 847 m² großen, stark hanglagigen, rechteckigen Grundstück errichtet und ist freistehend. Es besteht aus einem teilweise zu Wohnzwecken ausgebauten Kellergeschoss, einem Erdgeschoss sowie einem komplett ausgebauten Dachgeschoss mit Satteldach und Betondachsteinen. Die Gebäudekonstruktion besteht laut Bauunterlagen aus Hohlblockmauerwerk (Außenwände ca. 36,5 cm stark) mit Stahlbetondecken im Unter- und Erdgeschoss. Die Wärmedämmung entspricht dem Baujahr. Außen zeigt das Gebäude einen Mix aus Putz, Anstrich und Verblendsteinen.
Umbauten nach Fertigstellung umfassen einen nachträglich zu Wohnzwecken ausgebauten Kellerbereich sowie die Errichtung eines Wintergartens mit darüberliegendem Freisitz an der Südseite. Dieser Zustand weicht von den ursprünglichen Genehmigungsunterlagen ab; für das Wintergartenensemble wird ein Rückbau angenommen und entsprechend abgeschlagen.
Wesentliche Modernisierungen wurden seit dem Baujahr nicht durchgeführt. Ein erhöhter Unterhaltungsaufwand besteht, insbesondere ist der Freisitz schadhaft und von Feuchtigkeitsschäden betroffen. Die Grundrissgestaltung gilt als zweckmäßig, die Belichtung und Besonnung als gut. Außenanlagen wie Zugangswege sind in ortsüblichem Umfang vorhanden, Wegebefestigungen aus Betonpflaster.
Das Grundstück hat eine Größe von 847 m² und ist rechteckig zugeschnitten. Es befindet sich in starker Hanglage und fällt von der Straße aus ab. Die Erschließung erfolgt über eine asphaltierte Anliegerstraße mit einseitiger Straßenbeleuchtung und beidseitigen, teilweise sehr schmalen, gepflasterten Gehwegen. Bewuchs und weitere natürliche Eigenschaften sind nicht explizit aufgeführt. Die Einfriedung ist komplett dem Grundstück zugehörig.
Zum Wertermittlungs-Stichtag war das Objekt eigengenutzt und teilweise vermietet; eine der beiden Wohneinheiten galt als vermietet, die andere als eigengenutzt. Unter der Adresse ist außerdem ein Gewerbe gemeldet.
Verkehrswert €: 740.000,00
Premium-Feature
7 Tage kostenlos TestenAls Eigentümer können Sie uns zusätzliche Informationen zu Ihrer Immobilie zur Verfügung stellen, die potentiellen Interessenten helfen könnten. Dies kann sich positiv auf das Versteigerungsergebnis auswirken.
Kontaktieren Sie uns per E-Mail unter info@zvgscout.com mit dem Kennzeichen: 6 K 15-24-wohnhaus-1128064.
(Berechnet auf Basis des Verkehrswerts als Zuschlagswert)
(verzinster Betrag: 666.000 €)
Alle Angaben und Berechnungen von ZvgScout sind ohne Gewähr.
Detaillierte Kostenaufstellung & Rechner
Musterstraße 12, 12345 Musterstadt
Supermarkt
Schulweg 8, 12345 Musterstadt
Schule
Bahnhofsplatz 1, 12345 Musterstadt
ÖPNV
Alle oben gemachten Angaben ohne Gewähr. ZvgScout übernimmt keine Haftung für die Richtigkeit und Vollständigkeit der dargestellten Informationen.