land-/ forstwirtschtl. Flächen
Westerwiese, 24980 Meyn
12.500 €









































Westerwiese, 24980 Meyn
Premium-Feature
7 Tage kostenlos TestenLeichte Feuchtigkeitsschäden im Kellerbereich. Sanierungsbedarf an der Außenfassade.
Premium-Feature
7 Tage kostenlos TestenGrundschuld zugunsten der Sparkasse München. Hypothek über 150.000 €.
Premium-Feature
7 Tage kostenlos TestenPremium-Feature
7 Tage kostenlos TestenPremium-Feature
7 Tage kostenlos TestenDas Gebäude befindet sich in einem guten Zustand. Die Fassade wurde vor kurzem renoviert und zeigt keine größeren Mängel. Das Dach ist intakt und wurde 2018 erneuert.
Die Innenräume sind gepflegt und modernisiert. Böden in gutem Zustand, Elektrik entspricht aktuellen Standards. Küche und Badezimmer wurden vor 5 Jahren erneuert.
Die Innenräume sind gepflegt und modernisiert. Böden in gutem Zustand, Elektrik entspricht aktuellen Standards. Küche und Badezimmer wurden vor 5 Jahren erneuert.
Premium-Feature
7 Tage kostenlos TestenMassivbauweise aus dem Jahr 1985. Ziegeldach mit Betondachsteinen. Keller vorhanden und trocken. Fundament in gutem Zustand ohne erkennbare Setzungsrisse.
Regelmäßige Wartung und Pflege erkennbar. Heizungsanlage wurde 2020 gewartet. Fassade in gutem Zustand, letzte Renovierung 2019. Dachrinnen und Fallrohre intakt.
Energetische Sanierung 2018 durchgeführt. Neue Fenster mit Dreifachverglasung installiert. Dämmung der Außenwände nach EnEV-Standard erneuert.
Keine bekannten Baulasten eingetragen. Grundbuch zeigt keine Belastungen bezüglich Baubeschränkungen oder Durchfahrtsrechte.
Premium-Feature
7 Tage kostenlos TestenAuszug aus dem
Gutachten
des Sachverständigen über den Verkehrswert für die landwirtschaftliche Fläche in Westerwiese, 24980 Meyn
Wertermittlungsstichtag: 22.12.2023
Verkehrswert:12.500,00 €
Hinweis: Zum selben Termin werden weitere Grundstücke versteigert (siehe Aktenzeichen 50 K 11/22#1-3)
Grundstücksbeschreibung
Allgemein Meyn ist eine Gemeinde im Kreis Schleswig-Flensburg in Schleswig-Holstein, zugehörig zum Amt Schafflund, welches im gleichnamigen Nachbarort (Entfernung ca. 4 km) angesiedelt ist. Die Gemeinde erstreckt sich über eine Fläche von ca. 12 km² und wird von etwa 800 Menschen bewohnt. Die Ortsteile Meynfeld- West, Meynfeld-Ost und Gabelshof sind zugehörig. Meyn grenzt im Westen an Schafflund und im Osten an Handewitt.
Wohn- und Geschäftslage Der Norderweg wurde als Zone 30 eingerichtet, zweispurig ausgebaut, asphaltiert und einseitig mit einem abgetrennten Gehweg versehen. Die umliegende Bebauung besteht im Straßenbereich vorwiegend aus Einfamilienhäusern, rückwärtig angrenzend liegen landwirtschaftliche Flächen.
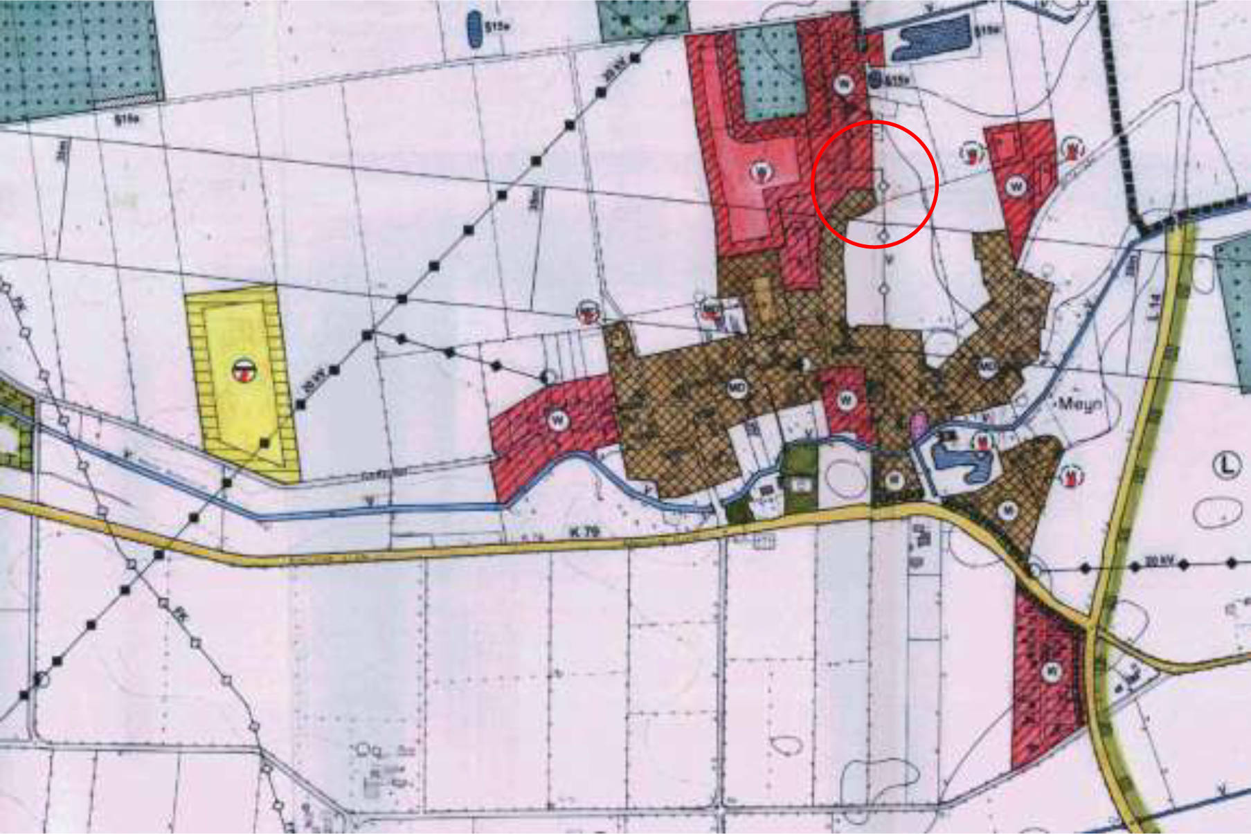
Grundstücksgröße und -zuschnitt Annähernd rechteckige Ausbildung östlich mit einer Zufahrt zur Schafflunder Straße, Geländeoberfläche fällt zum Meyner Mühlenstrom nach Norden leicht ab, Fläche liegt parallel zum straßenseitigen Flurstück 97/1.
Die Flurstücke 92, 93/1, 95, 96/1 und 97/1 liegen zusammenhängend am westlichen Ortsrand bzw. sind durch den Meyner Mühlenstrom unterteilt
Nutzung Die Flurstücke 92, 93/1, 95, 96/1 und 97/1 stellen sich als Grünlandflächen dar
Erschließungszustand Die landwirtschaftlichen Flächen werden zum Teil durch die Schafflunder Straße bzw. durch die Straße Zum Waldbad erschlossen. Hierbei handelt es sich jeweils um ausgebaute und asphaltierte Straßen. Die Flurstücke nördlich und südlich des Meyner Mühlenstroms sind über zwei kleine Brücken miteinander verbunden.
Premium-Feature
7 Tage kostenlos TestenAls Eigentümer können Sie uns zusätzliche Informationen zu Ihrer Immobilie zur Verfügung stellen, die potentiellen Interessenten helfen könnten. Dies kann sich positiv auf das Versteigerungsergebnis auswirken.
Kontaktieren Sie uns per E-Mail unter info@zvgscout.com mit dem Kennzeichen: 50 K 11-22.
(Berechnet auf Basis des Verkehrswerts als Zuschlagswert)
(verzinster Betrag: 11.250 €)
Alle Angaben und Berechnungen von ZvgScout sind ohne Gewähr.
Detaillierte Kostenaufstellung & Rechner
Musterstraße 12, 12345 Musterstadt
Supermarkt
Schulweg 8, 12345 Musterstadt
Schule
Bahnhofsplatz 1, 12345 Musterstadt
ÖPNV
Alle oben gemachten Angaben ohne Gewähr. ZvgScout übernimmt keine Haftung für die Richtigkeit und Vollständigkeit der dargestellten Informationen.