Wohn-/Gewerbeimmobilie
Fitisring 1b, 24943 Flensburg
350.000 €


















Fitisring 1b, 24943 Flensburg
Premium-Feature
7 Tage kostenlos TestenLeichte Feuchtigkeitsschäden im Kellerbereich. Sanierungsbedarf an der Außenfassade.
Premium-Feature
7 Tage kostenlos TestenGrundschuld zugunsten der Sparkasse München. Hypothek über 150.000 €.
Premium-Feature
7 Tage kostenlos TestenPremium-Feature
7 Tage kostenlos TestenPremium-Feature
7 Tage kostenlos TestenDas Gebäude befindet sich in einem guten Zustand. Die Fassade wurde vor kurzem renoviert und zeigt keine größeren Mängel. Das Dach ist intakt und wurde 2018 erneuert.
Die Innenräume sind gepflegt und modernisiert. Böden in gutem Zustand, Elektrik entspricht aktuellen Standards. Küche und Badezimmer wurden vor 5 Jahren erneuert.
Die Innenräume sind gepflegt und modernisiert. Böden in gutem Zustand, Elektrik entspricht aktuellen Standards. Küche und Badezimmer wurden vor 5 Jahren erneuert.
Premium-Feature
7 Tage kostenlos TestenMassivbauweise aus dem Jahr 1985. Ziegeldach mit Betondachsteinen. Keller vorhanden und trocken. Fundament in gutem Zustand ohne erkennbare Setzungsrisse.
Regelmäßige Wartung und Pflege erkennbar. Heizungsanlage wurde 2020 gewartet. Fassade in gutem Zustand, letzte Renovierung 2019. Dachrinnen und Fallrohre intakt.
Energetische Sanierung 2018 durchgeführt. Neue Fenster mit Dreifachverglasung installiert. Dämmung der Außenwände nach EnEV-Standard erneuert.
Keine bekannten Baulasten eingetragen. Grundbuch zeigt keine Belastungen bezüglich Baubeschränkungen oder Durchfahrtsrechte.
Premium-Feature
7 Tage kostenlos TestenBei den Justizbehörden Flensburg finden zur Zeit Umbauarbeiten statt, die die Sitzungssäle betreffen. Es ist daher ein zentrales Saalmanagement eingerichtet worden. Alle Terminierungen lauten standardmäßig auf Saal 0. Der endgültige Terminsort wird ca. 1 Woche vor dem Termin bekannt gegeben. Daher wird gebeten unbedingt unter www.hanmark.de nachzuschauen.
Auszug aus dem
Gutachten
des Sachverständigen über den Verkehrswert für Doppelhaushälfte mit Garage und Bürotrakt, Fitisring 1 b, 24943 Flensburg
Wertermittlungsstichtag: 06.03.2024
Verkehrswert: 350.000 €
Grundstücksbeschreibung
Hinweis: Das Wertermittlungsobjekt wurde (...) von außen durch den Sachverständigen besichtigt.
Allgemein Das Wertermittlungsobjekt befindet sich in der Stadt Flensburg und dort im Fitisring. Der Bereich ist dem Stadtteil Tarup zuzuordnen, welcher am südöstlichen Stadtrand liegt.
Wohn- und Geschäftslage Der Fitisring ist als Spielstraße eingerichtet, ein- bis zweispurig ausgebaut und mit einer Pflasterung versehen. Stellenweise finden sich seitlich Stellplatzstreifen und ein Gehweg. Die unmittelbar umliegende Bebauung besteht westlich vorwiegend aus Einfamilien- und Doppelhäusern, im Bereich zum östlich gelegenen Tastruper Weg sind zudem Mehrfamilienhäuser vorhanden.
Grundstücksgröße und -zuschnitt Das 353 m² große Eckgrundstück weist eine annähernd rechteckige Ausbildung mit einer Abrundung im Straßenbereich und eine nahezu ebene Oberflächenbeschaffenheit auf.
Nutzung Das Grundstück ist mit einer Doppelhaushälfte und einem angegliederten Garagengebäude bebaut. Weiterhin existiert im südlichen Bereich ein eingeschossiger
Flachdachanbau, in dem laut den Zeichnungen ein Büro, ein Flur und ein WC untergebracht sind. Das Gebäude verfügt ansonsten über ein Erdgeschoss und ein Dachgeschoss. Die Garage war, soweit von außen erkennbar, zu Wohnraum ausgebaut. Die nicht überbauten und befestigten Bereiche sind überwiegend als Rasenflächen angelegt.
Erschließungszustand Das Wertermittlungsobjekt wird durch den Fitisring erschlossen. Dabei handelt es sich um eine ein- bis zweispurig ausgelegte und gepflasterte Spielstraße. Folgende Ver- und Entsorgungseinrichtungen sind gemäß Aktenlage örtlich vorhanden:
Gebäudebeschreibung
Das Doppelhaus bzw. die Doppelhaushälfte wurde laut den eingesehenen Bauunterlagen
etwa im Jahr 2015 errichtet. Im Zuge der Baumaßnahmen bzw. nach der Fertigstelllung waren verschiedene Unregelmäßigkeiten und Beanstandungen dokumentiert. Hierzu sind jedoch laut einem Vermerk in der Bauakte aus dem November 2020 keine weiteren Maßnahmen zur Nachverfolgung erforderlich. Bei der Ortsbesichtigung war die Garage augenscheinlich zu Wohnraum ausgebaut. In den Bauakten fanden sich hierzu keine Unterlagen (Nutzungsänderung).
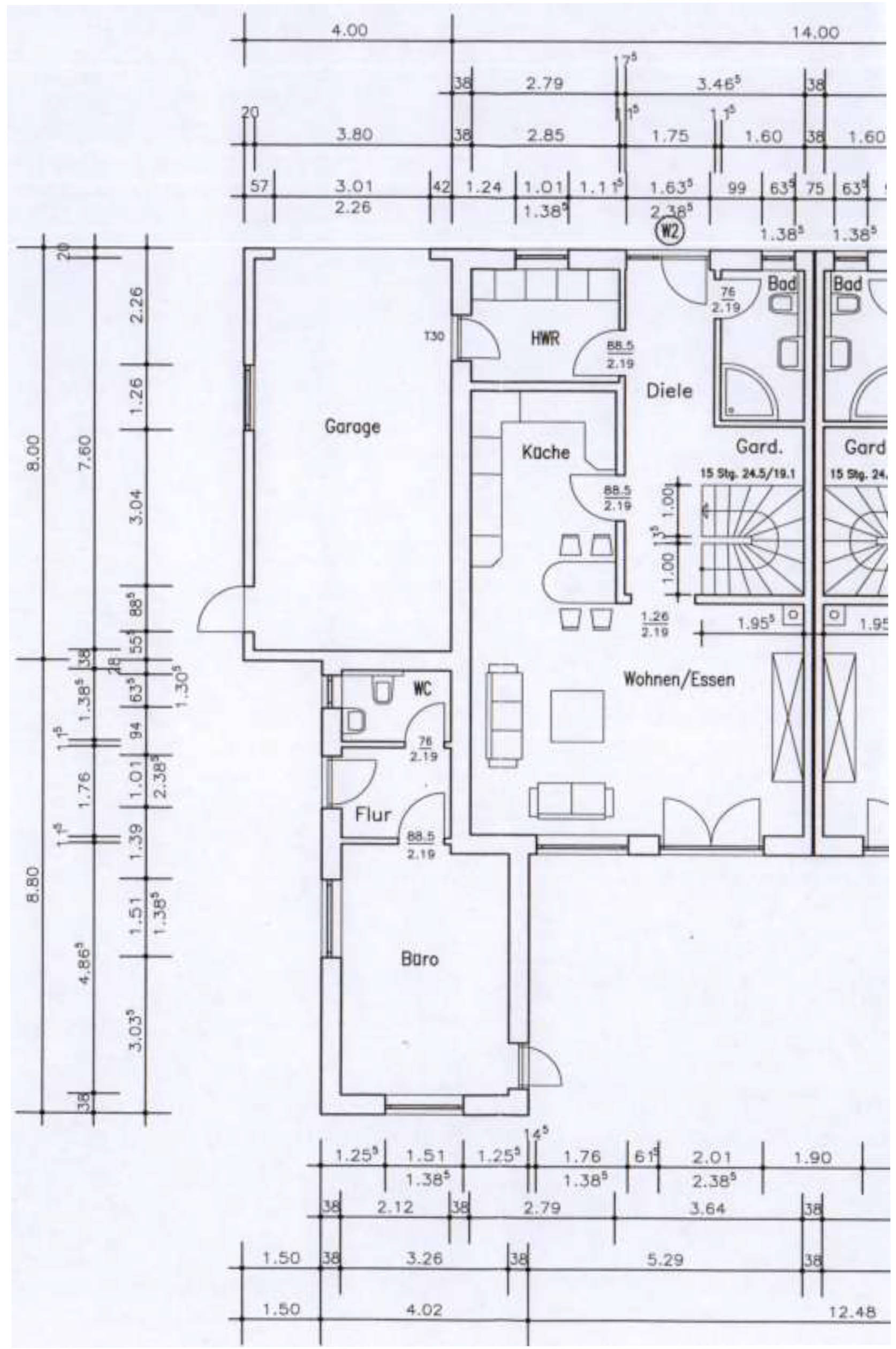
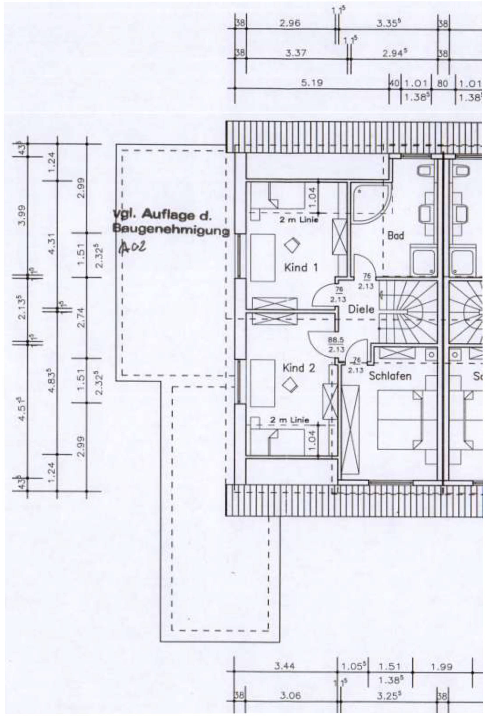
Geschosse: Erdgeschoss, Dachgeschoss
Größe: Die Wohn- und Nutzfläche beläuft sich insgesamt auf rd. 140 m². Hiervon entfallen auf die Wohnfläche im Erd- und Dachgeschoss rd. 118 m² und den Bürobereich im Erdgeschoss rd. 22 m².
Raumaufteilung gemäß Grundrisszeichnungen:
Bauweise
Außenwände: 17,5 cm Porenbetonmauerwerk, 18 cm Dämmung, 2,5 cm Wärmeputz
Innenwände: Wohnungstrennwände: 2 x 17,5 cm Kalksandsteinmauerwerk, 3 cm Dämmung; sonst 11,5 - 17,5 cm Kalksandsteinmauerwerk
Unterer Abschluss: Betonplatte, schwimmender Estrichaufbau
Geschossdecken: 18 - 20 cm Stahlbetondecke, 6 cm Wärmedämmung, 5 - 7 cm Estrich
Dachschrägen: 20 - 24 cm Dachsparren mit Dämmung, 4 - 6 cm Konterlattung mit Dämmung, Gipskartonplatten
Dachform: Satteldach mit Tonpfanneneindeckung, Dachrinne und Fallrohre aus Zinkblech, Unterschläge aus Kunststoff, Stirnverkleidungen aus Plattenwerkstoff; beidseitig Schleppgaube mit Kunstschieferverkleidung
Bürobereich: Flachdachaufbau, Deckenbalken 20 - 24 cm mit Dämmung, OSB-Platten, Dachdichtungsbahnen, unterhalb Gipskartonplatten auf Konterlattung
Geschosstreppe: Nicht bekannt geworden
Innentüren: Nicht bekannt geworden
Fenster: Kunststofffenster mit Isolierverglasung
Außentüren: Wie Fenster
Sanitärinstallation: Nicht bekannt geworden
Elektroinstallation: Nicht bekannt geworden
Heizungsinstallation: Nicht bekannt geworden
Beheizung: Fernwärme laut Bauakte
Sonstiges: Gauben
Raumbeschreibung: Eine detaillierte Beschreibung der Innenräume kann nicht erfolgen, da keine Innenbesichtigung möglich war. Aufgrund der resultierenden Unsicherheiten und Unwägbarkeiten erfolgt ein entsprechender Sicherheitsabschlag.
Zustandseinstufung
Baumängel / -schäden: Gravierende Bauschäden oder Baumängel konnten bei der Außenbesichtigung nicht festgestellt werden.
Einstufung Zustand: Äußerlich mittlerer bzw. durchschnittlicher Zustand, dem Gebäudebaujahr entsprechend.
Sonstiges: Eine Innenbesichtigung des Objektes wurde nicht ermöglicht. Der Bereich der Garage wurde gemäß den Erkenntnissen bei der Außenbesichtigung augenscheinlich zu Wohnraum ausgebaut. Eine Nutzungsänderung hierzu existiert in den Bauakten nicht. Die verputzte Fassade weist punktuell kleinere Fehlstellen bzw. kleinere Unsauberkeiten auf. Zudem findet sich an mehreren Stellen Algenbildung. Die Alu-Sohlbank (Fensterbank) am Fenster der ausgebauten Garage ist augenscheinlich mangelhaft eingebaut. Die Putzflächen unterhalb weisen Feuchtigkeitseintrag auf.
Außenanlagen
Plattierungen: Zugang zum Büro mit Betonsteinpflasterung, Eingangsbereich, Zufahrt zur Garage und Fläche vor dem Gebäude mit Rasengittersteinen
Einfriedung: Vorwiegend offen gehalten, zum östlichen Nachbargrundstück Buschwerk und Sichtschutzzäune
Terrasse: Oberfläche mit Betonsteinpflasterung
Gartenanlage: Rasenflächen
Nebengebäude: Garagengebäude: Mauerwerk mit Putz und Anstrich, Flachdachaufbau, Fenster und seitliche Tür aus Kunststoff mit Isolierverglasung, Sektionaltor zur Auffahrt, Dachrinne und Fallrohre aus Zinkblech
Einstufung: Übliche Gestaltung
Premium-Feature
7 Tage kostenlos TestenAls Eigentümer können Sie uns zusätzliche Informationen zu Ihrer Immobilie zur Verfügung stellen, die potentiellen Interessenten helfen könnten. Dies kann sich positiv auf das Versteigerungsergebnis auswirken.
Kontaktieren Sie uns per E-Mail unter info@zvgscout.com mit dem Kennzeichen: 50 K 31-23.
(Berechnet auf Basis des Verkehrswerts als Zuschlagswert)
(verzinster Betrag: 315.000 €)
Alle Angaben und Berechnungen von ZvgScout sind ohne Gewähr.
Detaillierte Kostenaufstellung & Rechner
Musterstraße 12, 12345 Musterstadt
Supermarkt
Schulweg 8, 12345 Musterstadt
Schule
Bahnhofsplatz 1, 12345 Musterstadt
ÖPNV
Alle oben gemachten Angaben ohne Gewähr. ZvgScout übernimmt keine Haftung für die Richtigkeit und Vollständigkeit der dargestellten Informationen.