Eigentumswohnung
Ostermark 10, 24955 Harrislee
123.000 €















Ostermark 10, 24955 Harrislee
Premium-Feature
7 Tage kostenlos TestenLeichte Feuchtigkeitsschäden im Kellerbereich. Sanierungsbedarf an der Außenfassade.
Premium-Feature
7 Tage kostenlos TestenGrundschuld zugunsten der Sparkasse München. Hypothek über 150.000 €.
Premium-Feature
7 Tage kostenlos TestenPremium-Feature
7 Tage kostenlos TestenPremium-Feature
7 Tage kostenlos TestenDas Gebäude befindet sich in einem guten Zustand. Die Fassade wurde vor kurzem renoviert und zeigt keine größeren Mängel. Das Dach ist intakt und wurde 2018 erneuert.
Die Innenräume sind gepflegt und modernisiert. Böden in gutem Zustand, Elektrik entspricht aktuellen Standards. Küche und Badezimmer wurden vor 5 Jahren erneuert.
Die Innenräume sind gepflegt und modernisiert. Böden in gutem Zustand, Elektrik entspricht aktuellen Standards. Küche und Badezimmer wurden vor 5 Jahren erneuert.
Premium-Feature
7 Tage kostenlos TestenMassivbauweise aus dem Jahr 1985. Ziegeldach mit Betondachsteinen. Keller vorhanden und trocken. Fundament in gutem Zustand ohne erkennbare Setzungsrisse.
Regelmäßige Wartung und Pflege erkennbar. Heizungsanlage wurde 2020 gewartet. Fassade in gutem Zustand, letzte Renovierung 2019. Dachrinnen und Fallrohre intakt.
Energetische Sanierung 2018 durchgeführt. Neue Fenster mit Dreifachverglasung installiert. Dämmung der Außenwände nach EnEV-Standard erneuert.
Keine bekannten Baulasten eingetragen. Grundbuch zeigt keine Belastungen bezüglich Baubeschränkungen oder Durchfahrtsrechte.
Premium-Feature
7 Tage kostenlos TestenBei den Justizbehörden Flensburg finden zur Zeit Umbauarbeiten statt, die die Sitzungssäle betreffen. Es ist daher ein zentrales Saalmanagement eingerichtet worden. Alle Terminierungen lauten standardmäßig auf Saal 0. Der endgültige Terminsort wird ca. 1 Woche vor dem Termin bekannt gegeben. Daher wird gebeten unbedingt unter www.hanmark.de nachzuschauen.
Auszug aus dem
Gutachten
des Sachverständigen über den Verkehrswert für 38.783/1.000.000 Miteigentumsanteil am Grundstück, verbunden mit Sondereigentum an der im Aufteilungsplan mit Nr. 4 bezeichneten Wohnung im 1. Obergeschoss, nebst Keller in Ostermark 10, 24955 Harrislee
Wertermittlungsstichtag: 30.01.2025
Verkehrswert: 123.000€
Hinweis: Das Wertermittlungsobjekt wurde (...) von außen durch den Sachverständigen besichtigt.
Grundstücksbeschreibung
Allgemein Harrislee mit seinen etwa 11.500 Einwohnern ist eine Gemeinde im Norden Schleswig-Holsteins. Sie grenzt im Norden an Dänemark, im Osten an die Flensburger Innenförde und an die Stadt Flensburg, im Süden ebenfalls an die Stadt Flensburg und im Westen an die Gemeinde Handewitt. Harrislee hat weitgehend den Charakter einer Flensburger Vorstadt, ohne jedoch die Eigenständigkeit aufzugeben. Mittelständische Betriebe mit fast allen Handwerkszweigen sowie eine gute Einzelhandelsstruktur prägen das Ortsbild. Verarbeitendes Gewerbe mit überregional tätigen Unternehmen ist vor allem in den Gewerbegebieten angesiedelt. Harrislee liegt in günstiger Lage zur Grenze mit direkter Verbindung zur Autobahn. Eine Besonderheit sind die vor Ort angesiedelten Grenzsupermärkte.
Umwelteinflüsse Aufgrund der Lage ist vorwiegend mit Anliegerverkehr bzw. mit geringem Durchgangsverkehr zu rechnen. Während der Ortsbesichtigung wurden keine außergewöhnlichen Immissionen festgestellt.
Wohn- und Geschäftslage Die Straße Ostermark ist als Zone 30 eingerichtet, zweispurig ausgebaut, asphaltiert und beidseitig mit befestigten Gehwegen versehen. Stellenweise sind im Straßenraum öffentliche und gepflasterte Stellplatzstreifen abgetrennt. Die umliegende Bebauung besteht südlich vorwiegend aus Mehrfamilienhäusern, nördlich der Straße finden sich Einfamilien- und Doppelhäuser.
Bauleitplanung
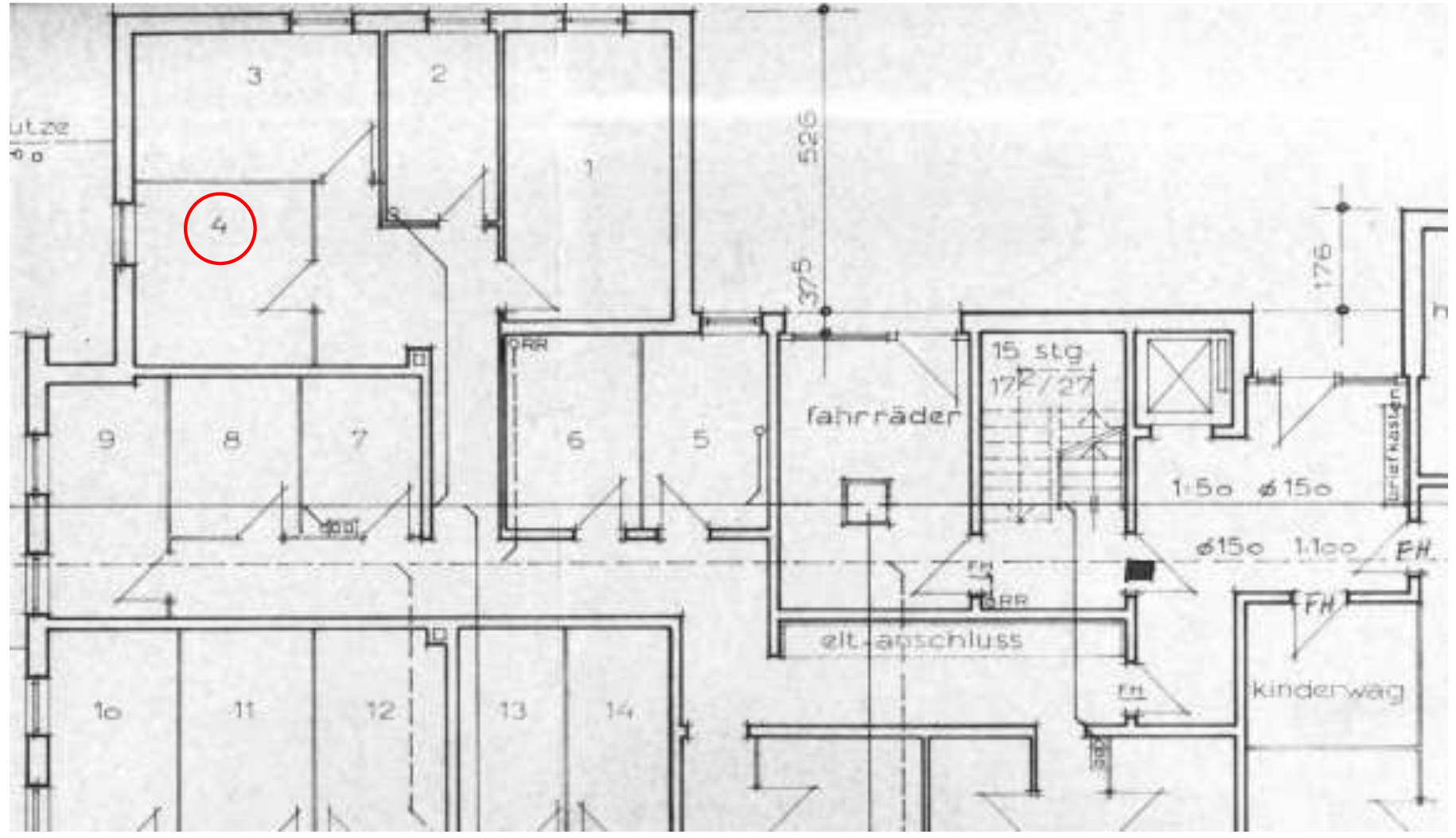
Nutzung Das Grundstück ist mit einem Mehrfamilienhaus mit etwa 28 Wohneinheiten bebaut. Das Gebäude verfügt über ein Kellergeschoss, ein Erdgeschoss und ein 1. bis 3. Obergeschoss. Die zu bewertende Eigentumswohnung Nr. 4 befindet sich im 1. Obergeschoss mit Ausrichtung nach Süden. Der Wohnung sind ein Kellerraum und ein Sondernutzungsrecht an einem Pkw-Stellplatz zugeordnet.
Erschließungszustand Das Wertermittlungsobjekt wird durch die Straße Ostermark erschlossen. Dabei handelt es sich um eine zweispurig ausgelegte und asphaltierte Straße. Folgende Ver- und Entsorgungseinrichtungen sind laut Unterlagen örtlich vorhanden:
Gebäudebeschreibung
Mehrfamilienhaus
Das Mehrfamilienhaus wurde laut den eingesehenen Bauunterlagen etwa im Jahr 1982 in Massivbauweise errichtet.
Geschosse: Kellergeschoss, Erdgeschoss, 1.- 3. Obergeschoss
Raumaufteilung gemäß Bauunterlagen:
Räume Allgemein
Treppenhaus:
Wandverkleidung: Putz und Anstrich
Deckenverkleidung: Putz und Anstrich
Fußboden: Fliesen
Flure:
Wandverkleidung: Putz und Anstrich
Deckenverkleidung: Putz und Anstrich
Fußboden: PVC-Belag
Bauweise, Baugestaltung, Ausstattung und Qualität
Außenwände KG: 37,5 cm Kalksandsteinmauerwerk; sonst: 24 cm Kalksandsteinmauerwerk, 6 cm Dämmung, Luftschicht, Verkleidung mit Asbestzementtafeln auf Unterkonstruktion
Innenwände Wohnungstrennwände: 24 cm Kalksandsteinmauerwerk; sonst: 11,5 - 24 cm Kalksandsteinmauerwerk
Unterer Abschluss Betonsohle, 3,5 cm Estrich
Geschossdecken Stahlbetondecken, 2,5 - 3,5 cm Dämmung, 4,5 cm Estrich
Dachform Flachdachkonstruktion als Stahlbetondecke, 6 cm Wärmedämmung, Dachdichtungsbahnen, Kiesschüttung
Sonstiges Aufzug
Geschosstreppe Massive Treppe mit Kunststeinbelag und Metallgeländer
Innentüren Nicht bekannt geworden
Fenster Kunststofffenster mit Isolierverglasung
Außentüren Metalltür mit Drahtglas
Sanitärinstallation Nicht bekannt geworden
Elektroinstallation Nicht bekannt geworden
Heizungsinstallation Nicht bekannt geworden
Beheizung Fernwärme laut Aktenlage
Wohnung Nr. 4
Größe: Die Wohnfläche der Wohnung Nr. 4 im 1. Obergeschoss beläuft sich auf rd. 63 m².
Raumaufteilung gemäß Bauunterlagen: Diele (rd. 1,8 m²), Flur (rd. 4,3 m²), Abstellraum (rd. 1 m²), Schlafen (rd. 18,3 m²), Bad (rd. 4,3 m²), Küche (rd. 6,3 m²), Wohnen (rd. 23,9 m²), Loggia (rd. 3,3 m² - 1/2 Flächenanteil)
Raumbeschreibung Eine detaillierte Beschreibung der Innenräume der Wohnung kann nicht erfolgen, da keine Innenbesichtigung möglich war.
Zustandseinstufung
Baumängel/ -schäden Gravierende Bauschäden oder Baumängel konnten bei der Außenbesichtigung nicht festgestellt werden.
Einstufung Zustand Äußerlich insgesamt mittlerer bzw. durchschnittlicher Zustand.
Außenanlagen
Plattierungen Auffahrt, Stellplätze und Zugangsbereich mit Betonsteinpflasterung
Einfriedung Bereich der Auffahrt offen gehalten, sonst verschiedene Zäune, Buschwerk und Baumbestand
Gartenanlage Rasenflächen mit Anpflanzungen
Einstufung Übliche Gestaltung
Premium-Feature
7 Tage kostenlos TestenAls Eigentümer können Sie uns zusätzliche Informationen zu Ihrer Immobilie zur Verfügung stellen, die potentiellen Interessenten helfen könnten. Dies kann sich positiv auf das Versteigerungsergebnis auswirken.
Kontaktieren Sie uns per E-Mail unter info@zvgscout.com mit dem Kennzeichen: 50 K 42-24.
(Berechnet auf Basis des Verkehrswerts als Zuschlagswert)
(verzinster Betrag: 110.700 €)
Alle Angaben und Berechnungen von ZvgScout sind ohne Gewähr.
Detaillierte Kostenaufstellung & Rechner
Musterstraße 12, 12345 Musterstadt
Supermarkt
Schulweg 8, 12345 Musterstadt
Schule
Bahnhofsplatz 1, 12345 Musterstadt
ÖPNV
Alle oben gemachten Angaben ohne Gewähr. ZvgScout übernimmt keine Haftung für die Richtigkeit und Vollständigkeit der dargestellten Informationen.